天麒澜轩售楼处电话→天麒澜轩售楼中心首页网站→天麒澜轩楼盘百科详情→24小时电话
扫描到手机,新闻随时看
扫一扫,用手机看文章
更加方便分享给朋友
天麒澜轩售楼处电话:400-8787-098转分机号5678【售楼处位置】
天麒澜轩售楼处电话:400-8787-098转分机号5678【营销中心】
天麒澜轩楼盘详情4008787098-转分机号5678(房价,价格,地址,户型图,交通,周边配套,备案价,楼盘详情,售楼处电话,售楼处地址,最新房源,最新价格,最新动态,最新进展等详情)
同年9月底规划出炉!容积率2.0,拟建14幢13-17F小高层,其中13F的只有一幢,大部分是17F。
总套数833套,体量不小;户型面积段首次曝光,主力建面约110m²、120m²、138m²3大户型。
图源“苏高新集团”,2024年12月发布售楼处电话400-8787-098接通后输入5678【营销中心】
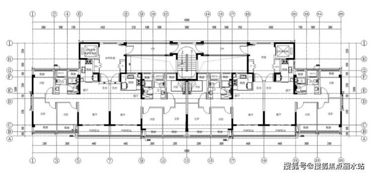
正式户型图暂未出炉!此前规划公示了2#标准层平面图如下,2梯4户,层高达到约3.1米。
户型设计非常有意思,3房+1.5卫,双马桶配置,十分罕见;
餐客厅开间约4.4米,主卧开间约3.3米,其余次卧开间约3米,加上3个大飘窗赠送,提高得房率的同时大大增加采光;
朝南约4.4米开敞阳台,加上约3.1米层高,整个户型的尺度感非常在线。
根据拍地要求,地块内住宅户型面积不小于100平方米,装标不低于1500元/㎡。
值得一提的是,天麒澜轩近期还成功入选了苏州市智能建造试点项目。
未来将为业主带来更智能、便捷、安全的居住体验,引流居住新潮流!

天麒澜轩位于高新区浒墅关经开区(镇)羊柯柜路西、王宴岭路南,西侧即苏州体育训练基地,北侧近有轨电车1号线。

天麒澜轩售楼处电话:400-8787-098转分机号5678【售楼处位置】
天麒澜轩售楼处电话:400-8787-098转分机号5678【营销中心】
天麒澜轩楼盘详情4008787098-转分机号5678(房价,价格,地址,户型图,交通,周边配套,备案价,楼盘详情,售楼处电话,售楼处地址,最新房源,最新价格,最新动态,最新进展等详情)
声明:本文由入驻焦点开放平台的作者撰写,除焦点官方账号外,观点仅代表作者本人,不代表焦点立场。
