万科瑧山境(售楼处) 首页 - 万科瑧山境销售中心 -万科瑧山境价格 - 地址 - 楼盘详情 - 配套 - 电话 - 交房时间 - 配套 - 电话 - 交房时间
扫描到手机,新闻随时看
扫一扫,用手机看文章
更加方便分享给朋友
🌈万科瑧山境售楼处电话☎️400-8787-098转接8999(售楼处)
🌈万科瑧山境营销中心电话:☎️400-8787-098转8999【营销中心】
🌈温馨提示:拨打400电话,听到嘀声后,输入分机号8999即可!
在高端住宅领域,独立入户电梯厅已从“顶配选项”演变为“核心标配”,其设计逻辑直击高净值人群对私密性、仪式感及功能复合化的深层需求。
比如东莞万科瑧山境建面约270㎡户型,豪宅标配的2梯2户设置,带来私梯入户的礼遇,双向开门,尊崇私密归家。

▲建面约270㎡户型图
规划了两条动线,除了主人归家或迎客的礼遇动线外,还规划了工作动线,让家政人员从宅中侧门进入,直达厨房。主动线尊崇归家,仪式感满满;次动线独立入户,丝毫不会打扰主人生活。

▲样板间实景图
现代极简公建化外立面设计,大面玻璃搭配铝材勾勒的建筑线条,远看层次分明,近观细节丰富,构筑出充满格调的玻璃美学立面。
▲万科瑧山境实景图
比如常州万科·瑧湾汇建面约225㎡的天幕行宫,私梯入户,首先是给足了业主尊崇感与私密性;同时也丰富了生活动线,为日常生活提供了更多样的选择方案,使用价值与情绪价值都拉满。

▲建面约225㎡户型图
▲室内设计:李益中空间设计 摄影:ingallery
- 02 -
客厅不仅是家中最重要的会客空间,也是家庭身份、品位、层次的集中体现。引入“LDKB”新型公区打造空间理念,将客厅、餐厅、厨房与阳台实现共融,以大面宽、大视野、大场景,满足高阶人士更高层次的情感与社交需求。
比如成都万科星耀天府建面约203㎡和建面约253㎡户型,均做了双全景舱设计。LDKB一体化的新潮设计,让客厅不再是“孤岛”,一体化的布局消弭了界限感。

▲星耀天府建面约203㎡和建面约253㎡户型图
万科星耀天府大面积的使用曲度铝板和曲面玻璃幕墙,让业内人士忍不住眼前一亮:以钢琴为灵感,凝练优雅的线条感、黑白分明的节奏感,流光琴键立面赋予了建筑韵律之美。
▲星耀天府实景图
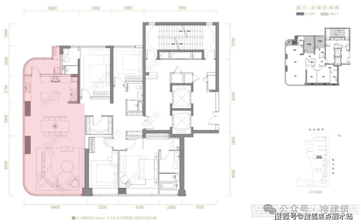
长沙万科滨江一号项目涵盖建面约220-290㎡面积段户型。
我们来看其建面约230平米户型,两梯两户,独立入户,总裁独立式玄关,动静分区,流线分明。通过9个设计亮点体现:私家电梯、百纳小库、社交厨房、C位餐厅、自由巨厅、X空间、南北通厅、超尺度全景阳台、舒适次卧打造百年三代场所。阿尔瓦·阿尔托说“形式必须具有内容,且内容必须与自然系在一起”边户拥有270°转角落地幕墙,让身心无时无刻与自然零距离。

▲万科滨江一号建面约230平米户型

▲万科滨江一号效果图
▲项目总平规划图

🌈万科瑧山境售楼处电话☎️400-8787-098转接8999(售楼处)
🌈万科瑧山境营销中心电话:☎️400-8787-098转8999【营销中心】
🌈温馨提示:拨打400电话,听到嘀声后,输入分机号8999即可!
声明:本文由入驻焦点开放平台的作者撰写,除焦点官方账号外,观点仅代表作者本人,不代表焦点立场。
