武汉湖北科投|万科·光谷锦上售楼处电话→武汉湖北科投|万科·光谷锦上售楼中心首页网站→武汉湖北科投|万科·光谷锦上楼盘百科详情→24小时电话
扫描到手机,新闻随时看
扫一扫,用手机看文章
更加方便分享给朋友
武汉湖北科投|万科·光谷锦上售楼处电话:400-8787-098转分机号5678【售楼处位置】
武汉湖北科投|万科·光谷锦上售楼处电话:400-8787-098转分机号5678【营销中心】
武汉湖北科投|万科·光谷锦上楼盘详情4008787098-转分机号5678(房价,价格,地址,户型图,交通,周边配套,备案价,楼盘详情,售楼处电话,售楼处地址,最新房源,最新价格,最新动态,最新进展等详情)
万科·光谷锦上项目效果图
万科·光谷锦上项目区位图
🔍 基本信息速览
项目
详情
物业类别
普通住宅
参考价格
楼盘概况单价: 16500元/平方米起
楼盘概况总价: 185-259万元/套
项目特色
地铁沿线 品牌地产 改善优选
建筑类别
板楼
装修状况
带装修
产权年限
普通住宅产权70年
环线位置
三至四环
开发商
武汉宜居万耀置业有限公司楼盘地址
东湖高新区高新六路光谷锦曜旁(距佛祖岭地铁站东约800米)开盘时间
2025年6月
交房时间
2026年12月30日售楼地址
武汉·光谷·东湖高新区·高新六路光谷锦曜旁预售许可
武房开预售[2025]148、137、138号
发证时间
2025-05-23、2025-05-30
占地面积
50948平方米建筑面积
132430.95平方米容积率
1.8
绿化率
30%
车位数量
939 (地上:187 个 地下:752个)楼层状况
1#2#3#4#5#7#8#9#均为18F、6#为11F、10#为7+1F价格
均价17000元/平,起价16500元/平物业公司
武汉市万科物业服务有限公司物业费
住宅3.2元/月/平方米
📍 区位与交通售楼处电话400-8787-098接通后输入5678【营销中心】

万科·光谷锦上区位地图
小区四周:南面是高新六路,距离二号线佛祖岭站1.1公里,步行十分钟。
配套:周边学校、医疗、商业较为完善
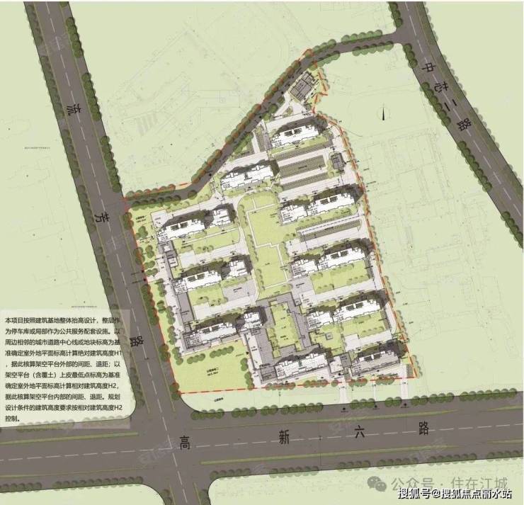
🏗 项目规模与规划
项目规划示意图
武汉湖北科投|万科·光谷锦上售楼处电话:400-8787-098转分机号5678【售楼处位置】
武汉湖北科投|万科·光谷锦上售楼处电话:400-8787-098转分机号5678【营销中心】
武汉湖北科投|万科·光谷锦上楼盘详情4008787098-转分机号5678(房价,价格,地址,户型图,交通,周边配套,备案价,楼盘详情,售楼处电话,售楼处地址,最新房源,最新价格,最新动态,最新进展等详情)
声明:本文由入驻焦点开放平台的作者撰写,除焦点官方账号外,观点仅代表作者本人,不代表焦点立场。
