星河·湖西源启售楼处电话→星河·湖西源启售楼中心首页网站→星河·湖西源启楼盘百科详情→24小时电话
扫描到手机,新闻随时看
扫一扫,用手机看文章
更加方便分享给朋友
🏡苏州星河·湖西源启售楼处电话:400-8787-098输入分机号4444【营销中心】
🏡苏州星河·湖西源启售楼处位置:400-8787-098输入分机号4444【官方电话】
🏡房价特价信息丨优惠政策丨详细解答丨在售房源丨在售户型图丨项目介绍丨周边配套丨VR看房丨楼盘图丨沙盘图丨位置图丨配套图丨售楼处地址丨足不出户丨销售1V1讲解 如有问题欢迎来电咨询,可预约销售人员,专业一对一热情服务,让您用专业眼光去买房
好消息!近园区又一别墅盘要上新了!
就在刚刚!独墅湖西星河Z13地块项目案名正式曝光!就叫星河·湖西源启!
项目位于独墅湖西核芯地段,容积率仅1.25,拟建22栋4F叠加+2栋11F四代宅洋房,其中洋房约143㎡,叠加约167/188㎡。
产品也相当惊艳,配有下沉式会所庭院,四代宅采用首层架空设计,下叠配有地下室,并通过多连廊贯穿,实现无风雨归家等等。
项目预计最快1月底首开,价格的话,可以参考附近龙湖九里璟园洋房3.2w,地缘及近园区改善客户可以提前准备起来了!
星河·湖西源启,前身为苏地2025-WG-Z13号地块。
今年7月土拍中,苏州星鸿(星河&天鸿伟业)以总价约6.72亿竞得,成交楼面价14400元/㎡。

🏡苏州星河·湖西源启售楼处电话:400-8787-098输入分机号4444【营销中心】
🏡苏州星河·湖西源启售楼处位置:400-8787-098输入分机号4444【官方电话】
容积率仅1.25,是郭巷难得低密地块;根据规划,拟建24幢住宅,包括22栋4F叠加+2栋11F洋房!其中洋房为四代宅。
鸟瞰效果图,以实际交付为准

根据总平面,分别在东、西、北三侧设置有出入口;北侧林家潭路是主出入口。
更加惊喜的是,项目所有楼栋首层全架空设计,其中叠加首层“地上架空车库”,洋房首层架空打造多功能主题泛会所,强化社区功能。
并且打造多连廊贯穿,真正实现无风雨归家!


🏡苏州星河·湖西源启售楼处电话:400-8787-098输入分机号4444【营销中心】
🏡苏州星河·湖西源启售楼处位置:400-8787-098输入分机号4444【官方电话】
规划平面图,以实际交付为准
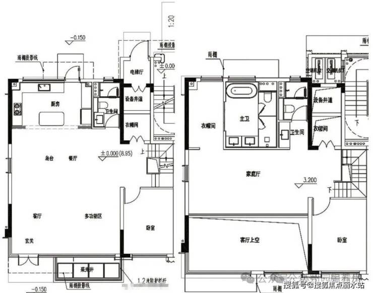
户型同步公示!据爆料,叠加建面约160-180㎡,洋房建面约141㎡,都是改善大户型。
洋房建面约143㎡4房2卫,4开间朝南,整体南向开间约14.5米,客厅开间约5m,主卧套房,北向生活阳台,分奇、偶数层,区别主要在于空中庭院。

🏡苏州星河·湖西源启售楼处电话:400-8787-098输入分机号4444【营销中心】
🏡苏州星河·湖西源启售楼处位置:400-8787-098输入分机号4444【官方电话】
户型过程稿,以最终官方公示为准
7#为4F叠加,下叠建面约180㎡左右,南北双入户,6.7m超大方厅,全卧室朝南设计;二层挑空赠送面积超大。
🏡苏州星河·湖西源启售楼处电话:400-8787-098输入分机号4444【营销中心】
🏡苏州星河·湖西源启售楼处位置:400-8787-098输入分机号4444【官方电话】
户型过程稿,以最终官方公示为准
另据拍地要求:洋房装修交付,装标不低于2000元/㎡。

星河·湖西源启位于吴中区郭巷街道林家潭路南侧、通达路东侧,就在龙湖·九里璟园南侧。
地快位置不错,出门7号线,正宗地铁盘;附近有郭巷实小、苏大附属尹山湖中学等;商业依赖尹山湖的歌林公园等,地铁6站可达苏州中心。
🏡苏州星河·湖西源启售楼处电话:400-8787-098输入分机号4444【营销中心】
🏡苏州星河·湖西源启售楼处位置:400-8787-098输入分机号4444【官方电话】
区位示意图
根据官方规划,该地块南侧还有一宗拟出让宅地,未来居住氛围会更加浓厚。
再往南侧是即将重磅升级的郭巷老街片区,打造集文化、休闲、运动、商业等多元业态于一体的文旅街区,势必将带动周边区域的高质量发展。
作为区域“首个”低密别墅盘,吴中第二个底层全架空,星河·湖西源启的看点还是非常多的!
🏡苏州星河·湖西源启售楼处电话:400-8787-098输入分机号4444【营销中心】
🏡苏州星河·湖西源启售楼处位置:400-8787-098输入分机号4444【官方电话】
🏡房价特价信息丨优惠政策丨详细解答丨在售房源丨在售户型图丨项目介绍丨周边配套丨VR看房丨楼盘图丨沙盘图丨位置图丨配套图丨售楼处地址丨足不出户丨销售1V1讲解 如有问题欢迎来电咨询,可预约销售人员,专业一对一热情服务,让您用专业眼光去买房
声明:本文由入驻焦点开放平台的作者撰写,除焦点官方账号外,观点仅代表作者本人,不代表焦点立场。
