2025最新网站太原【太原万星四合苑】售楼处欢迎您|楼盘详情-样板间/价格/户型-停车位-容积率-小区环境-售楼处地址-定位 -【预约电话】
扫描到手机,新闻随时看
扫一扫,用手机看文章
更加方便分享给朋友
✅太原万星四合苑
✅售楼处电话:400-8787-098接通后输入5555【营销中心电话】
✅温馨提示:拨打400-8787-098电话,听到嘀声后,输入分机号5555即可。
✅网上售楼中心〢尊享售楼处优惠服务〢欢迎来电咨询预约案场内部销售人员〢
✅楼盘项目全面介绍,包含楼盘简介、售楼电话、小区图片、区位优势、交通、周边商业配套、户型图等楼盘详情
又来一个双学区楼盘!开盘五号楼,太原朝阳街万星四合苑
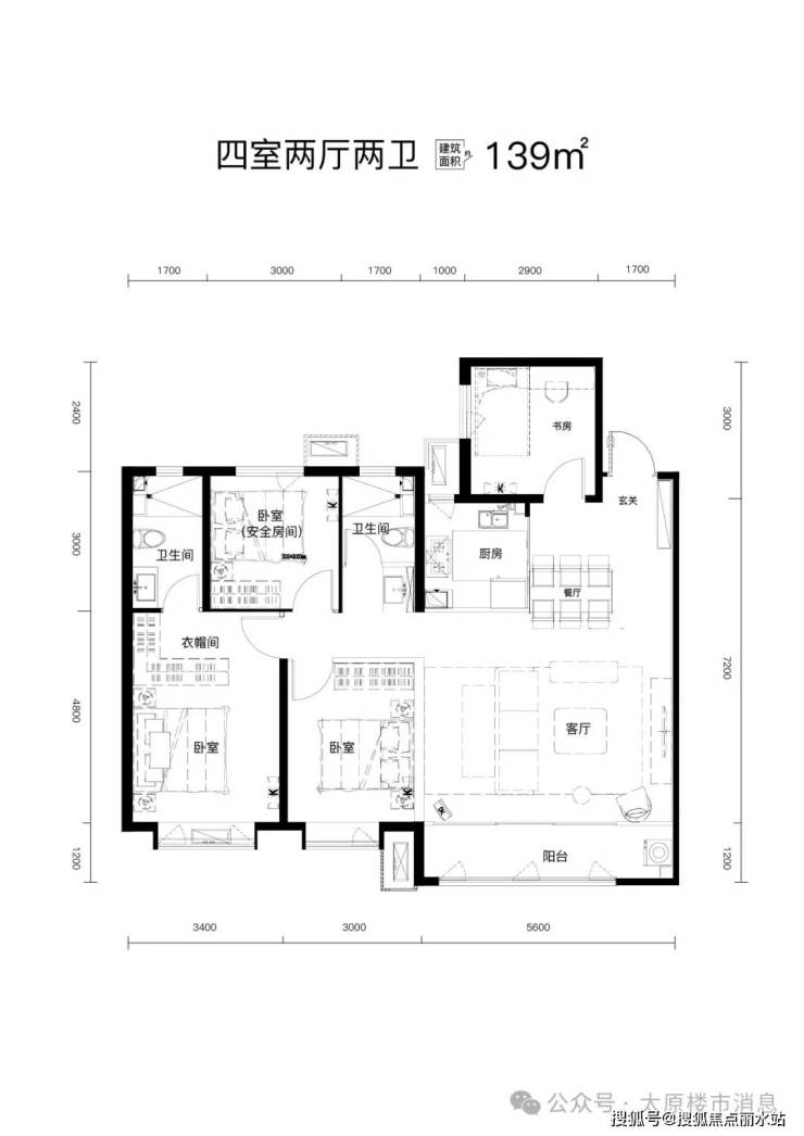
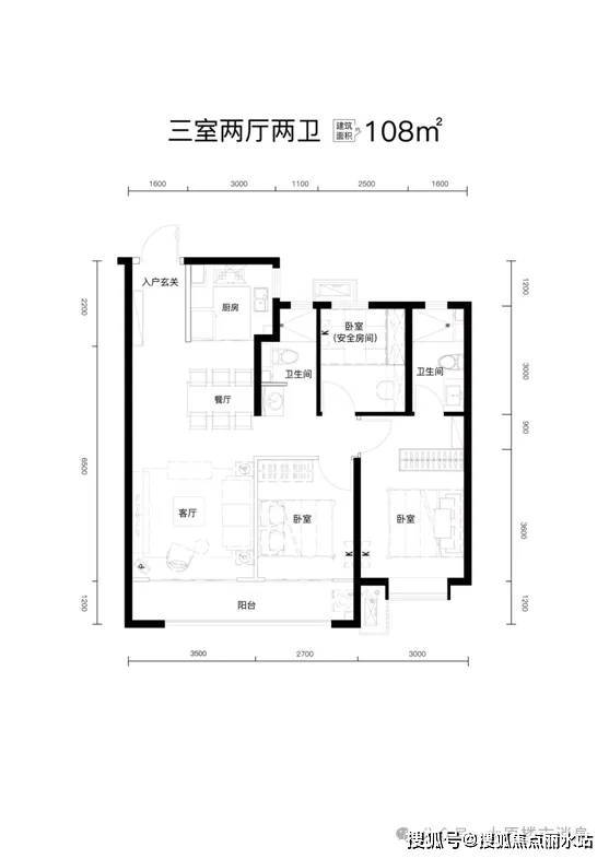
万星四合苑项目,位于太原市迎泽区,朝阳街和东峰路交汇处北侧。开发商是万星集团,之前在太原长风东开发了万星四季城,口碑还很不错。万星四合苑,总共六楼栋,容积率2.9,总户数780户,占地面积3.1万平方米,绿化率35%,建筑面积12万平方米。户型从95平到139平,定位刚需改善楼盘。

万星四合苑项目,9月28日开盘五号楼,层高3米,户型108平(这栋楼上测量面积为110平)和122平(这栋楼上测量面积为123平)。楼间距达到了60米,总高26层。110平,开盘团购优惠后,成交均价为8100平左右,123平,成交均价为8500平左右。

万星四合苑项目,对口三十七中诺德校区,凭网签合同,明年九月份可以报名入学小学一年级。因为三十七中诺德校区是九年一贯制,所以小升初可以正常直升。
💎【便利交通】五横:府东街,五龙口街,朝阳街,南沙河快速路,迎泽东大街。五纵:建设路,东中环,绕城高速,东峰路,东山大道。一轨:地铁一号线(2019年正式开工,项目紧邻朝阳街站,迎泽东大街站)
💎【周边学校】幼儿园:沃德兰东大幼儿园、新天地幼儿园、朝阳幼儿园等;小学:太原市第三十七中附属小学(诺德实验小学)、松庄小学、朝阳街小学等;中学:太原市三十七中中学诺德校区、太原市三十七中朝阳校区等;
💎【周边商业】朝阳商圈{服装城,山姆士,美特好,海旅免税-太原超体)五龙口商圈(多彩城,泰享里等)
💎【医疗配套】三甲医院:山西省人民医院,解放军264医院、山西省中西结合医院、山西省医科大学第二医院;。二甲:太原市人民医院、太原市迎泽区中医医院、太原东华门医院等
💎【周边公园】松庄公园,双塔公园,东山城郊森岭公园
🔥万星四合苑-项目卖点解析
✅
【小区零落差】
【小区微景观】
【人车分流】
【准落地窗】
【酒店式入户大门(双入户)】
【户型解析】
太原万星四合苑
✅售楼处电话:400-8787-098接通后输入5555【营销中心电话】
✅温馨提示:拨打400-8787-098电话,听到嘀声后,输入分机号5555即可。
✅网上售楼中心〢尊享售楼处优惠服务〢欢迎来电咨询预约案场内部销售人员〢
✅楼盘项目全面介绍,包含楼盘简介、售楼电话、小区图片、区位优势、交通、周边商业配套、户型图等楼盘详情
声明:本文由入驻焦点开放平台的作者撰写,除焦点官方账号外,观点仅代表作者本人,不代表焦点立场。
