建发位于段塘的新项目瑞云售楼处电话→售楼中心首页网站→楼盘百科详情→24小时电话
扫描到手机,新闻随时看
扫一扫,用手机看文章
更加方便分享给朋友
建发位于段塘的新项目瑞云售楼处电话:400-8787-098转分机号5678【售楼处位置】
建发位于段塘的新项目瑞云售楼处电话:400-8787-098转分机号5678【营销中心】
建发位于段塘的新项目瑞云楼盘详情4008787098-转分机号5678(房价,价格,地址,户型图,交通,周边配套,备案价,楼盘详情,售楼处电话,售楼处地址,最新房源,最新价格,最新动态,最新进展等详情)
今天看下它的过程稿,现场展厅已有正式稿。
不得不说建发在户型设计上还是很懂宁波人的。即便不是四代宅的几个户型也非常有吸引力。项目所有楼栋都是1梯2户或者2梯2户,这一点也很棒!
139/174平的第四代住宅整体户型一致,露台上有区别。
99平
109平
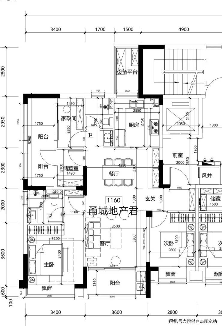
116平
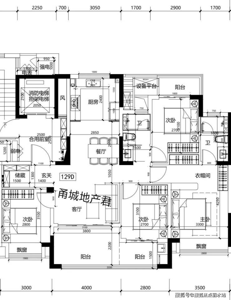
129平
建发位于段塘的新项目瑞云售楼处电话:400-8787-098转分机号5678【售楼处位置】
建发位于段塘的新项目瑞云售楼处电话:400-8787-098转分机号5678【营销中心】
建发位于段塘的新项目瑞云楼盘详情4008787098-转分机号5678(房价,价格,地址,户型图,交通,周边配套,备案价,楼盘详情,售楼处电话,售楼处地址,最新房源,最新价格,最新动态,最新进展等详情)
声明:本文由入驻焦点开放平台的作者撰写,除焦点官方账号外,观点仅代表作者本人,不代表焦点立场。
