联投长江天元(武昌——武昌滨江)售楼处电话→售楼中心首页网站→楼盘百科详情→24小时电话

丽水楼市 2025-10-19 20:36:21
用手机看
扫描到手机,新闻随时看

扫一扫,用手机看文章
更加方便分享给朋友

联投长江天元(武昌——武昌滨江)售楼处电话:400-8787-098转分机号5678【售楼处位置】 联投长江天元(武昌——武昌滨江)售楼处电话:400-8787-098转分机号5678【营销中心】 联投长江天元(武昌——武昌滨江)楼盘详情4008787098-转分机号5678(房价,价

联投长江天元(武昌——武昌滨江)售楼处电话:400-8787-098转分机号5678【售楼处位置】

联投长江天元(武昌——武昌滨江)售楼处电话:400-8787-098转分机号5678【营销中心】

联投长江天元(武昌——武昌滨江)楼盘详情4008787098-转分机号5678(房价,价格,地址,户型图,交通,周边配套,备案价,楼盘详情,售楼处电话,售楼处地址,最新房源,最新价格,最新动态,最新进展等详情)

预计9月首开,预计首推2、3号楼,建面约130、140、170、180平准四代产品,带装修销售,圈存10万可享开盘99折优惠,1号楼主打建面约240平米户型。

一、楼栋规划与户型设计

根据规划,联投时代中心共规划3栋住宅,总高42-43层,以及1栋写字楼、多栋集中式商业街区。

项目首开2号楼、3号楼,2号楼主推建面约180㎡户型,3号楼主推建面约130㎡、140㎡、170㎡户型。

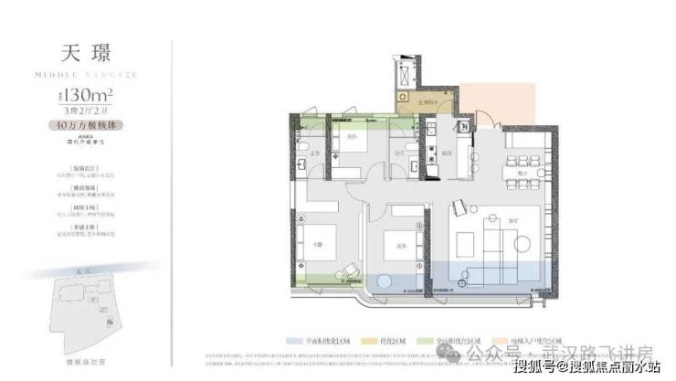
①130㎡户型:三房两厅两卫,3号楼中间户,南北通透,三开间朝南;户型本身的布局还是比较方正的,并且有多处优化空间,厨房外还带一个生活阳台,可以用于后期晾晒,保留客厅阳台的纯粹性。但这一户型北面为连廊,加上客厅朝南设计,基本上没什么看江视野,主打优势是面积小,总价门槛低(项目内最低门槛)

②140㎡户型:四房两厅两卫,该户型南北通透、三开间朝南;因为3号楼的楼栋朝向、位置,属于北向看江,因此,这一户型的北面房间——次卧、儿童房拥有还不错的看江视野(中高楼层以上房源)。客厅空间相当的开阔,动静分区做的也比较好。

③170㎡户型:四房两厅两卫,整个户型的布局与江面基本平行了,对比3号楼另外两个户型,170平户型的看江效果要优秀不少,客厅(270度观景)、主卧、主卫、厨房这几处空间都拥有不错的江景视野,观景面还是比较可观的。不过为了看江,这个户型的进深做的比较大,通透性稍显不足。

④180㎡户型:四房两厅三卫,客厅、北向次卧拥有非常不错的看江视野,并且客厅可以270度观景;另外,东头这一户型的生活阳台、主卧套房也可以看江,观江面更大。但东头户型离3号楼较近,低楼层采光可能有所影响。

联投长江天元(武昌——武昌滨江)售楼处电话:400-8787-098转分机号5678【售楼处位置】

联投长江天元(武昌——武昌滨江)售楼处电话:400-8787-098转分机号5678【营销中心】

联投长江天元(武昌——武昌滨江)楼盘详情4008787098-转分机号5678(房价,价格,地址,户型图,交通,周边配套,备案价,楼盘详情,售楼处电话,售楼处地址,最新房源,最新价格,最新动态,最新进展等详情)

声明:本文由入驻焦点开放平台的作者撰写,除焦点官方账号外,观点仅代表作者本人,不代表焦点立场。