苏州吴中甪直雁云庭(售楼处) 首页 -苏州雁云庭销售中心 - 环境 - 户型 - 价格 - 地址 - 楼盘详情 - 配套 - 电话 - 交房时间 - 配套 - 电话 - 交房时间
扫描到手机,新闻随时看
扫一扫,用手机看文章
更加方便分享给朋友
🏡苏州雁云庭售楼处电话:400-8787-098输入分机号4444【营销中心】
🏡苏州雁云庭售楼处位置:400-8787-098输入分机号4444【官方电话】
🏡房价特价信息丨优惠政策丨详细解答丨在售房源丨在售户型图丨项目介绍丨周边配套丨VR看房丨楼盘图丨沙盘图丨位置图丨配套图丨售楼处地址丨足不出户丨销售1V1讲解 如有问题欢迎来电咨询,可预约销售人员,专业一对一热情服务,让您用专业眼光去买房
价格:待定
总楼栋:8幢4F叠墅+5幢24-25F四代高层产品
容积率:1.8
占地面积:37740.2平
总建筑面积:102549.31平
开发商:斜港置业、吴城置业和甪直房地产开发公司联合
地址:吴中区甪直镇鸣市路南侧、经三路东侧
🏡苏州雁云庭售楼处电话:400-8787-098输入分机号4444【营销中心】
🏡苏州雁云庭售楼处位置:400-8787-098输入分机号4444【官方电话】
项目规划
🏡苏州雁云庭售楼处电话:400-8787-098输入分机号4444【营销中心】
🏡苏州雁云庭售楼处位置:400-8787-098输入分机号4444【官方电话】
价格与定位
项目具体售价待定,周边新房高层均价约2.2万元/平方米以上,叠墅均价约2.8-3万元/平方米
。其四代住宅的设计(如空中庭院、垂直绿化)填补了区域高端市场空白,预计售价可能突破区域天花板
🏡苏州雁云庭售楼处电话:400-8787-098输入分机号4444【营销中心】
🏡苏州雁云庭售楼处位置:400-8787-098输入分机号4444【官方电话】
配套资源

🏡苏州雁云庭售楼处电话:400-8787-098输入分机号4444【营销中心】
🏡苏州雁云庭售楼处位置:400-8787-098输入分机号4444【官方电话】
规划户型出炉
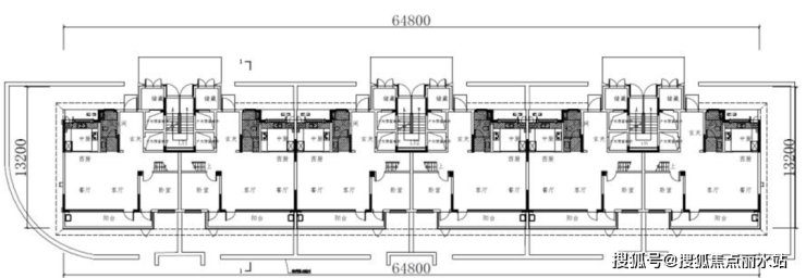
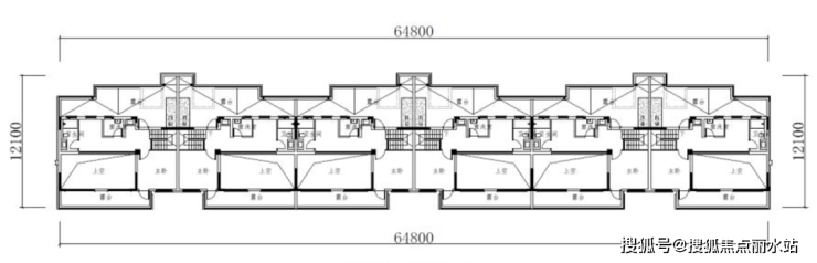
雁云庭此前公示了4#、9#的户型标准层示意图。

4#,4F叠墅





🏡苏州雁云庭售楼处电话:400-8787-098输入分机号4444【营销中心】
🏡苏州雁云庭售楼处位置:400-8787-098输入分机号4444【官方电话】
9#,25F高层,2梯2户


🏡苏州雁云庭售楼处电话:400-8787-098输入分机号4444【营销中心】
🏡苏州雁云庭售楼处位置:400-8787-098输入分机号4444【官方电话】
4房2厅3卫
奇数层

4房2厅3卫
偶数层

雁云庭
吴中甪直首个四代宅
打造8栋4F叠墅+5栋高层四代宅
带空中花园,高赠送
🏡苏州雁云庭售楼处电话:400-8787-098输入分机号4444【营销中心】
🏡苏州雁云庭售楼处位置:400-8787-098输入分机号4444【官方电话】
🏡房价特价信息丨优惠政策丨详细解答丨在售房源丨在售户型图丨项目介绍丨周边配套丨VR看房丨楼盘图丨沙盘图丨位置图丨配套图丨售楼处地址丨足不出户丨销售1V1讲解 如有问题欢迎来电咨询,可预约销售人员,专业一对一热情服务,让您用专业眼光去买房
声明:本文由入驻焦点开放平台的作者撰写,除焦点官方账号外,观点仅代表作者本人,不代表焦点立场。
