澜庭壹号院售楼处电话→澜庭壹号院售楼中心首页网站→澜庭壹号院楼盘百科详情→24小时电话
扫描到手机,新闻随时看
扫一扫,用手机看文章
更加方便分享给朋友
🌈苏州澜庭壹号院售楼处电话☎️400-8787-098转接4444(专人接听)
🌈苏州澜庭壹号院营销中心电话:☎️400-8787-098转4444【营销中心】
🌈温馨提示:拨打400电话,听到嘀声后,输入分机号4444即可!
项目基础档案
项目名称:澜庭壹号院
地块信息:苏地2024-WG-Z31号地块
项目地址:苏州高新区狮山商务创新区向阳路南、大运路西
开发品牌:苏高新集团&绿城管理
住宅指标:占地约3.6万方,容积率1.2,总建约4.4万方
产品规划:17栋3F联排/2栋6F叠加/2栋10F洋房,约205户
户型面积:约115㎡/135㎡墅境洋房;约215㎡/236㎡/259㎡见山叠墅;约271㎡/325㎡/369㎡山水和院
装修状态:洋房精装、墅类毛坯
销售信息:24.11.28拿地,楼面价25155元/平

🌈苏州澜庭壹号院售楼处电话☎️400-8787-098转接4444(专人接听)
🌈苏州澜庭壹号院营销中心电话:☎️400-8787-098转4444【营销中心】
全盘总计205套,又是“一把清”的节奏,效果图惊鸿一瞥!重点是,面积段总价段控制合理,不仅有狮山绝版联排,更有洋房小户型,预计要靠抢!




🌈苏州澜庭壹号院售楼处电话☎️400-8787-098转接4444(专人接听)
🌈苏州澜庭壹号院营销中心电话:☎️400-8787-098转4444【营销中心】
2、狮山绝版小洋房115㎡起!联排院子最大300㎡、上叠露台+下叠院子!带下沉式庭院会所
下面重点来看产品亮点。根据居居拿到的一手爆料——
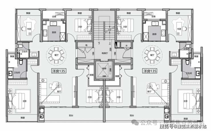
洋房面积段115-135㎡,狮山绝版小洋房??
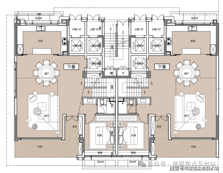
叠加230-275㎡,得房率超90%,客厅挑空,上叠送露台,下叠送院子;
联排最小也要260㎡+,最大370㎡,最大院子超300㎡,得房率相当逆天!!
简单曝光几大户型。合院265㎡4房3厅4卫户型↓二层挑空、三层带露台,超高使用面积。

下叠一层平面图如下:南向面宽约10.3米。

下叠二层平面图如下:客厅挑空,得房率超90%。

🌈苏州澜庭壹号院售楼处电话☎️400-8787-098转接4444(专人接听)
🌈苏州澜庭壹号院营销中心电话:☎️400-8787-098转4444【营销中心】
洋房135㎡3+1房2厅2卫户型图如下:
阳台开间约7.75米,南向开间约11.45米,主卧套房,开间3.7米。

澜庭壹号院未开先火除了有绿城品质加持之外,绝版的地理位置和配套也是重点!
项目具体位于新区狮山商务创新区向阳路南、大运路西,就在建发朗云西侧。周边轨道交通1/5号线汾湖路站、石城站双轨环绕,还可以快速上高架,通达全城。

🌈苏州澜庭壹号院售楼处电话☎️400-8787-098转接4444(专人接听)
🌈苏州澜庭壹号院营销中心电话:☎️400-8787-098转4444【营销中心】
泉屋百货、美罗广场、淮海街都相距不远,东面还有规划中商业服务配套,配套上是比较完备的。
🌈苏州澜庭壹号院售楼处电话☎️400-8787-098转接4444(专人接听)
🌈苏州澜庭壹号院营销中心电话:☎️400-8787-098转4444【营销中心】
教育上附近有苏州外国语学校、高新区第一中学,外国语幼儿园(在建)、狮山实验小学、高新区第一初级中学等优质学府。(*新房不承诺学区,具体以教育局施教区公布为准)
生态环境上,周边天狮湖、狮山公园环绕,公园级居住体验难能可贵。
另外,该地块位置所在片区是狮山商务创新区,未来发展空间巨大。
与项目一路之隔的上市企业总部园,总投资约13.9亿,定位为上市公司企业总部和数字经济企业总部园,2023年已交付竣工,2024年3月陆续入驻,目前总部园已吸引多家企业。
写在后面
「澜庭壹号院」会是狮山非常有质价比的一个项目,这片凝聚了苏州狮山精粹的土地+绿城高端产品,一定会给苏州楼市一个惊艳的答卷。
目前项目展厅已经公开,目前狮山唯一在售别墅,全盘仅205套,预计要抢!苏州富人们可得盯紧了,让我们一起期待吧!
这个项目对于新区、木渎、园区的购房者来说,显然是必看选项,不容错过,非常具有吸引力。
🌈苏州澜庭壹号院售楼处电话☎️400-8787-098转接4444(专人接听)
🌈苏州澜庭壹号院营销中心电话:☎️400-8787-098转4444【营销中心】
🌈温馨提示:拨打400电话,听到嘀声后,输入分机号4444即可!
声明:本文由入驻焦点开放平台的作者撰写,除焦点官方账号外,观点仅代表作者本人,不代表焦点立场。
