首页@武汉恺德雲麓(电话,价格,地址,户型图,交通,周边配套,备案价,楼盘详情,售楼处电话,售楼处地址,最新房源,最新价格,最新动态)
扫描到手机,新闻随时看
扫一扫,用手机看文章
更加方便分享给朋友
☎️武汉恺德雲麓线上预约热线:400-8787-098转分机号6666【已认证】
💖温馨提示:拨打400电话——听到嘀声后——输入分机号6666即可;
✨楼盘最新介绍:备案价、折扣、学区、地铁、交通、户型图、优缺点、得房率、优惠活动、小区图片、开盘时间、交房时间、周边配套、最新详情等咨询
【项目位置】硚口区古田路19号
【产权年限】70年
【交房标准】毛坯
【总占地面积】约1.38万方
【总建筑面积】约7.78万方
【绿化率】30%
【容积率】3.92
【总户数】469户
【车位数量】546 (地上:85 个 地下:461个)
【车位比例】1:1.16
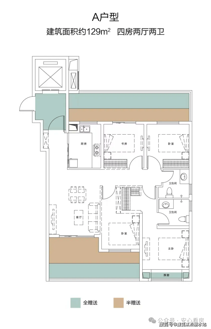
【户型】92-129㎡ 三房/四房
【物业费】尚未公开
【物业公司】武汉市万科物业服务有限公司
区位优势
项目区位图
项目位于硚口区古田板块,地处汉江湾核心地段,距离内环线约2公里,属于新二环。
交通
自驾:项目拥有两环两道四桥,两环是二环线、三环线;两道是解放大道、长丰大道;四桥是古田桥、江汉湾大桥、知音桥、长丰桥,全维路网,畅达全城。
地铁:项目地铁1号线古田二路站直线距离约600米,附近还有23号线(规划中)。

解放大道实拍图
景观
项目到汉江公园直线距离约800米,周边还拥有江滩体育公园、体育公园(在建中)、庆典公园(规划中)、市民滨江休闲公园(规划中)、康养森林公园(规划中)等多个自然景观资源。
江滩体育公园实拍图

学校
项目附近有汉江湾幼儿园、崇仁路小学、十一初、武汉外国语学校小语种基地学校(在建中)及汉江湾国际高中(武汉英中学校)(在建中)。其中:汉江湾国际高中(武汉英中学校),属于全国TOP国际学校,拟办学规模48个班,共2400个学位,预计2025年秋季投入使用。武汉外国语学校小语种基地学校(湖北省重点中学,省级示范学校),规划“小学+初中”九年一贯制公办学校,和万松园本校师资互通,预计2025年9月1日投入使用。
武汉外国语学校小语种基地学校开工图

商圈
距离项目200米就是凯德西城,周边范围内还有麦德龙、山姆会员店、宜家荟聚、星汇维港等大型商业体。
凯德西城实拍图

医疗
项目2公里范围内有武汉市第四医院,其次紧邻的崇仁医院正在规划中。到顶级医疗资源同济医院距离约7公里、协和医院约8.5公里。
武汉市第四医院实拍图

产品亮点
效果图

项目外立面采用现代艺术风格,采用大量的高反玻璃和铝板设计,局部装饰线条和香槟金铝板的造型,呈现出一种超脱世俗的简约纯粹之美。
效果图

温馨感:商街“林涧山水”温馨场景,灼见人文温度
仪式感:入口处“美学雅卷”铺展归家路,步步尊崇
松弛感:中心“水瀑光院”水波荡漾,心绪自轻松
社交感:“光影林廊”摩登会客,激发更多邻里关系发生
静谧感:私享“梦幻花园”,森境在畔,静谧于心
效果图

部分户型采用一梯一户,高配独立电梯厅
南北双阳台、大面宽且赠送率超高,配置南北双花池/花架设计,双花池空间赠送
精研实用空间与享受空间的比例,实现户型空间高赠送,所见即所得
户型内部运用高标的框架设计,让室内空间灵活多变,实现N+1户型拓展
效果图
内部打造-2/-1/1楼三重入户大堂,奢享至臻归家礼遇。
架空层泛会所打造三大艺术场域及七大功能公区,为业主闲暇时间提供社交聚集地。
ART /艺术场:设置邻里互动区,打造未来艺术展、美学沙龙等系列展出活动
SPORT/运动场:设置儿童活动区和运动动健身区,满足儿童游乐、健身等运动健身空间
LIFE/生活场:设置会所休闲区,打造书法、插花、茶艺等多元功能区域
户型鉴赏



☎️武汉恺德雲麓线上预约热线:400-8787-098转分机号6666【已认证】
💖温馨提示:拨打400电话——听到嘀声后——输入分机号6666即可;
✨楼盘最新介绍:备案价、折扣、学区、地铁、交通、户型图、优缺点、得房率、优惠活动、小区图片、开盘时间、交房时间、周边配套、最新详情等咨询
声明:本文由入驻焦点开放平台的作者撰写,除焦点官方账号外,观点仅代表作者本人,不代表焦点立场。
