2025最新网站太原【太原当代著MOMΛ】售楼处欢迎您|楼盘详情-样板间/价格/户型-停车位-容积率-小区环境-售楼处地址-定位 -【预约电话】
扫描到手机,新闻随时看
扫一扫,用手机看文章
更加方便分享给朋友
✅太原当代著MOMΛ
✅售楼处电话:400-8787-098接通后输入5555【营销中心电话】
✅温馨提示:拨打400-8787-098电话,听到嘀声后,输入分机号5555即可。
✅网上售楼中心〢尊享售楼处优惠服务〢欢迎来电咨询预约案场内部销售人员〢
✅楼盘项目全面介绍,包含楼盘简介、售楼电话、小区图片、区位优势、交通、周边商业配套、户型图等楼盘详情
太原当代著MOMA项目,位于龙城大街两侧,分三期开发建设。目前已经是现房状态,其中一期二期为精装修,三期为毛坯。在售户型从117平到181平。对口太师三附小,师院附中,已经开学了,允许转学。一期二期有五恒科技,三期没有五恒科技。三期特价房源,总高14层洋房,一层10923元起一平,实景现房。感兴趣的朋友,抓紧约我实地考察,额外享受团购优惠折扣。
总高14层的小高层,楼间距大,采光好,一层南侧空地可以自己利用。毛坯现房,即买即装修,今年可以入住。小学中学已经开学,感兴趣的家长,抓紧约我看房。
【项目名称】当代著MOMΛ
【项目位置】太原龙城大街
【产权年限】住宅70年
【总建面】约80万㎡
【装修状况】一期二期精装、三期毛坯
【容积率】2.27
【物业费】一期二期3元/平/月,三期2.2元/平/月
【绿化率】30%
【车位配比】1:1.25
【总高】14层
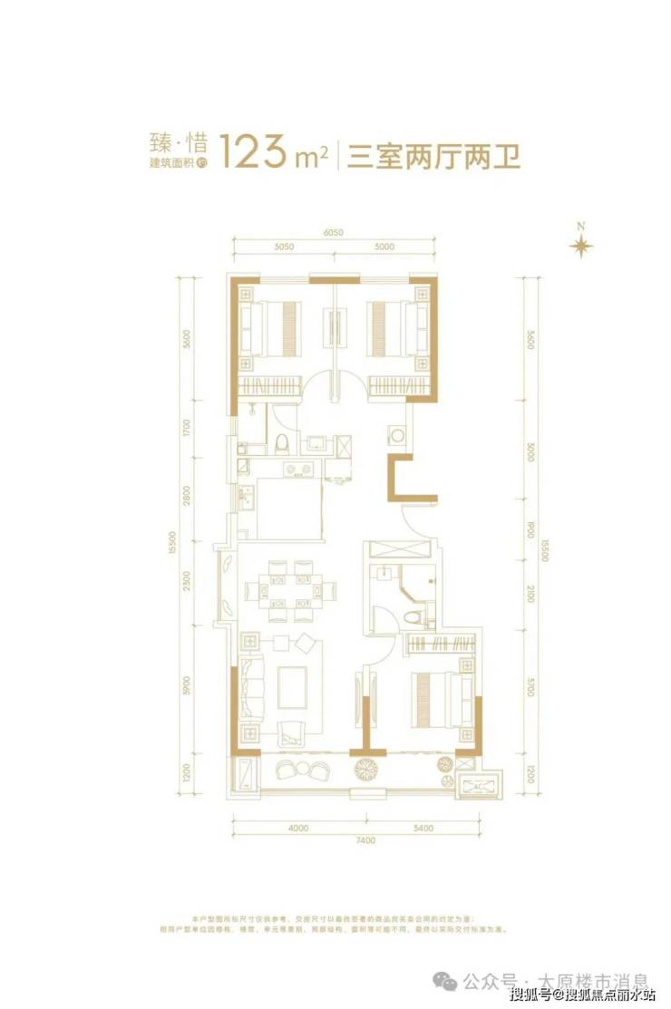
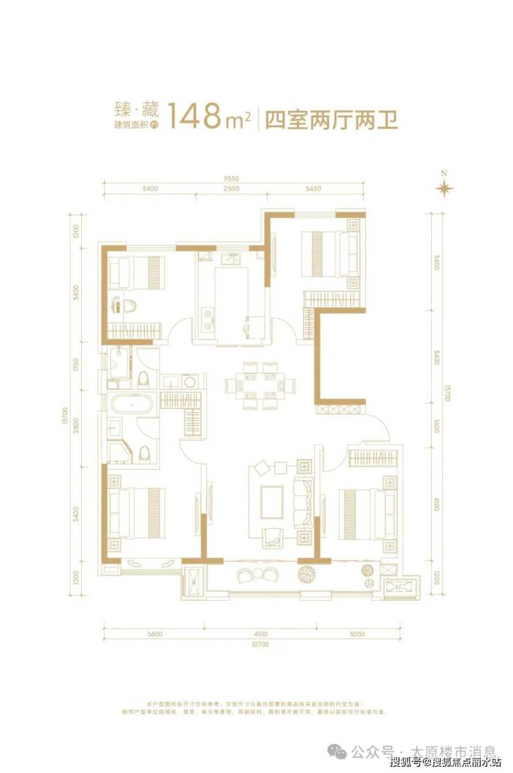
【主力户型】一期精装现房152㎡及181㎡、二期精装现房152㎡、三期117㎡、123㎡、137㎡、148㎡,毛坯现房。
【楼栋总数】一期9栋、二期3栋、三期9栋。
【物业公司】山西第一物业服务有限公司万国府分公司。
【三期分布图】
【户型展示】(建筑面积约)117㎡三室两厅两卫(3期)
(建筑面积约)123㎡三室两厅两卫(3期)
(建筑面积约)137㎡三室两厅两卫(3期)
(建筑面积约)148㎡四室两厅两卫(3期)
(建筑面积约)152㎡三室两厅两卫(2期)
(建筑面积约)180㎡四室两厅两卫(1期)
【在售价格】
一期二期,精装修,二期158三居,部分可选,13500-14300
三期毛坯,现房状态
中间户117平部分可选,均12000-13000
边户123平部分可选,均12500-13000
137平 低,顶层,均13000-13500
144/148平 低,顶层,均13000-13500
✅
能源费 58每平每年 三期没有科技系统
三期物业费2.2元 一期二期3元。
【交通优势】
1.紧邻地铁1号线龙城大街东站,已经开通运营。
2.坐拥龙城大街,太原唯一双向八车道主干道、马练营路,太榆路。
3.紧邻南站/机场,十分钟畅达。
【低密价值】
容积率低,1:1楼间距,公摊小,得房率更高。
总高12-14层,建筑高度不超44米,配有1:1等腰超宽楼距,拥有更多绿地空间和公共活动空间。
太原当代著MOMΛ
✅售楼处电话:400-8787-098接通后输入5555【营销中心电话】
✅温馨提示:拨打400-8787-098电话,听到嘀声后,输入分机号5555即可。
✅网上售楼中心〢尊享售楼处优惠服务〢欢迎来电咨询预约案场内部销售人员〢
✅楼盘项目全面介绍,包含楼盘简介、售楼电话、小区图片、区位优势、交通、周边商业配套、户型图等楼盘详情
声明:本文由入驻焦点开放平台的作者撰写,除焦点官方账号外,观点仅代表作者本人,不代表焦点立场。
