售楼处@太原「太原诺德逸宸云著」楼盘详情・售楼处电话・售楼中心・楼盘地址・项目简介
扫描到手机,新闻随时看
扫一扫,用手机看文章
更加方便分享给朋友
太原诺德逸宸云著
太原诺德逸宸云著售楼处电话:400-8787-098转分机号6666【已认证】
太原诺德逸宸云著营销部电话:400-8787-098转分机号6666【已认证】
✨楼盘基本信息介绍,地址,户型,价格,位置,医疗教育,商业交通配套✨
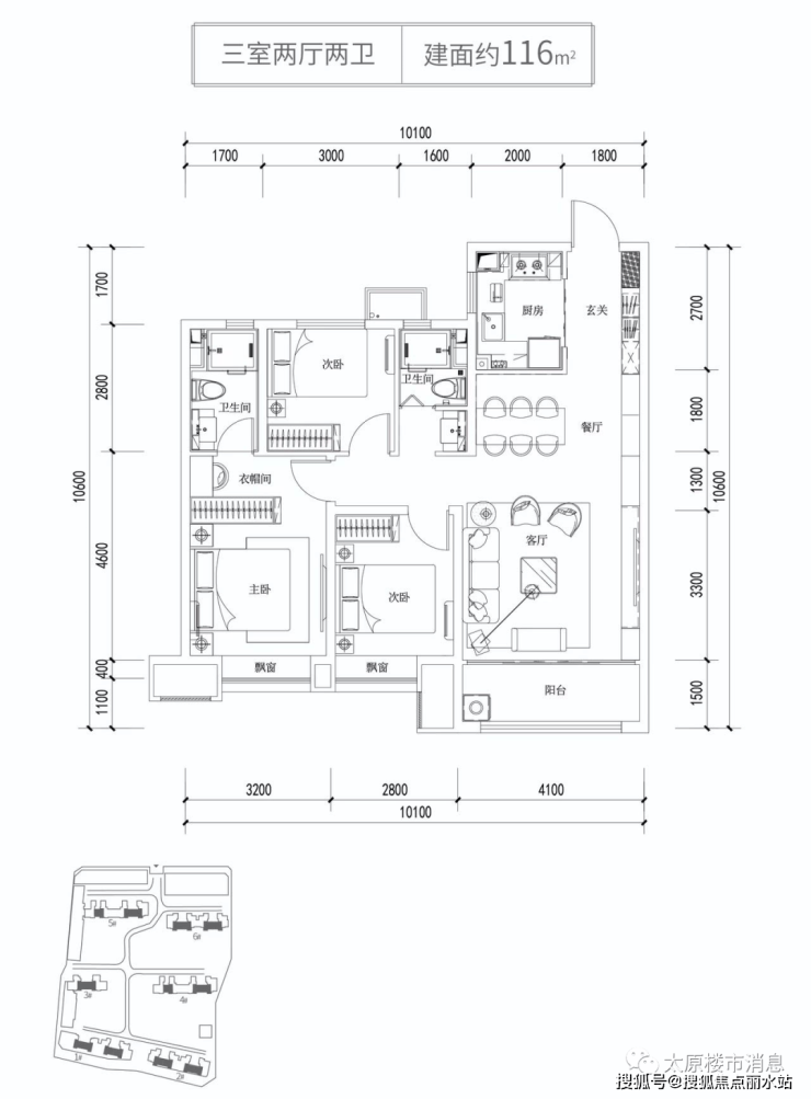
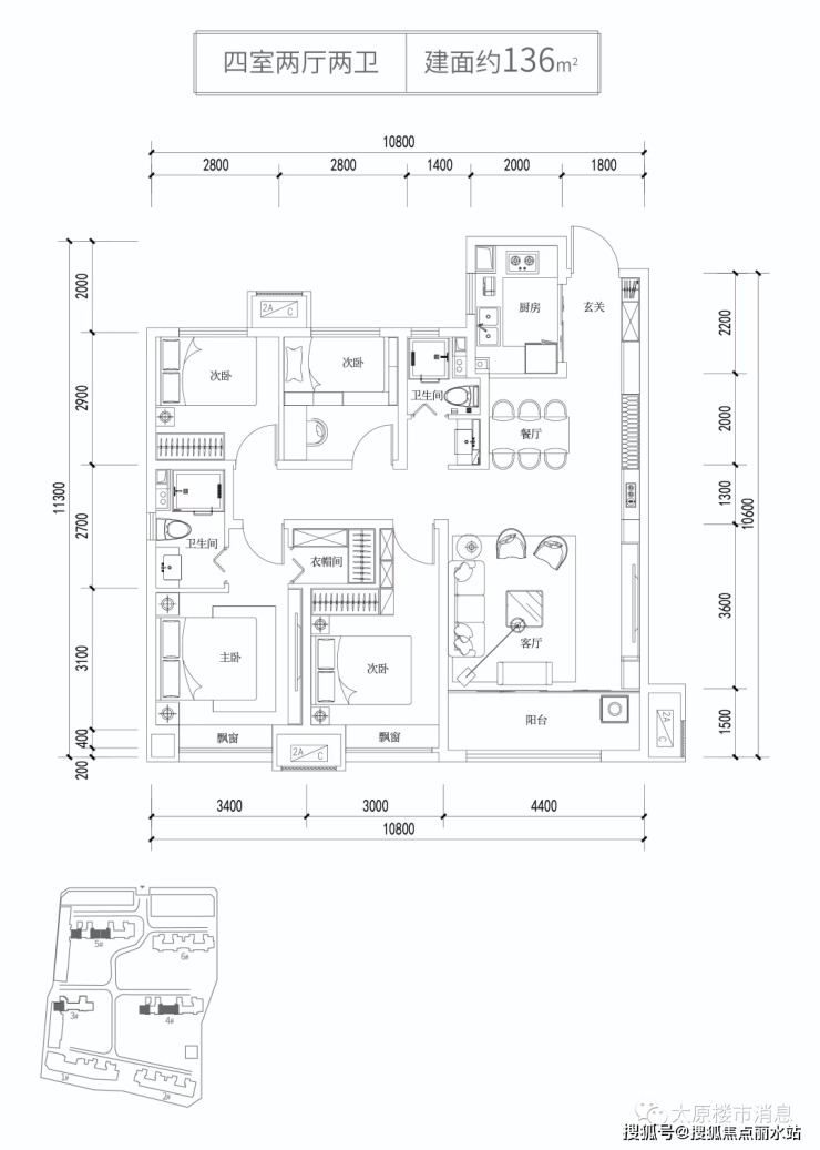
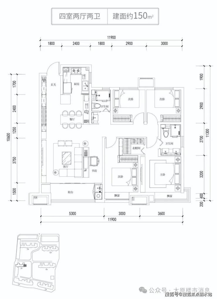
位于太原西中环旁的中铁诺德逸宸云著三期,加推最后一栋住宅楼,三号楼。户型有116平,136平和150平,毛坯,2025年8月底交,成交均价在12200到12600左右。所以,明年想要上山西省实验小学,山大附中万柏林校区的家长们,抓住最后一次机会了。


云著三期的购房业主子女,近期购房的,明年九月份可以顺利入学省实验小学万柏林第一校区和山大附中万柏林校区。小学一年级正常报名,二到六年级学校配合转学工作。初中一年级,明年六七月,正常报名。
云著三期的三号楼,楼间距大,采光好。三个户型,都是南北大通透,方方正正的。小区出门,就可以二百米到小学,八百米到山大附中。
【诺德逸宸云著三期】
【位置】:西中环与西峪路交叉口路南300米
📢注意了🏠售楼部有人脸识别,提前联系我!
【属性】:70年产权住宅
【占地面积】:9.9万㎡
【建筑面积】:21.2万㎡
【容积率】:3.5
【绿化率】:35%
【朝向】:南北向
【物业】:中铁第一太平物业
煤气化片区业主们入住率很高,中铁云著的位置也相对很好。项目北侧为小学(挂牌为光华实验小学,省实验小学万柏林一校),离今年正式开学的山大附中万柏林校区,直线距离800米左右。

目前,中铁诺德逸宸云著一期二期已经顺利交付,三期最后一栋房源没有卖完。特惠房源还有一些,可以跟我实地考察一下,不要自己去售楼部,有人脸识别影响折扣审批。
煤气化板块,适合考虑改善类型新房,又同时要求小学中学品质较高的家庭。未来板块内及周边,教育,商业,交通,公园,医疗等资源配套齐全。板块内,华润清盘了,撤场不再开发新地块了。万达最后两楼栋,有88平两居和105平三居,期房2027年年交付。华侨城一期只剩下185平毛坯现房,和185平到280平的顶复,户型太大了。中铁诺德逸宸云著三期,是目前这个板块内,唯一的三居准现房项目。

太原诺德逸宸云著
太原诺德逸宸云著售楼处电话:400-8787-098转分机号6666【已认证】
太原诺德逸宸云著营销部电话:400-8787-098转分机号6666【已认证】
✨楼盘基本信息介绍,地址,户型,价格,位置,医疗教育,商业交通配套✨
声明:本文由入驻焦点开放平台的作者撰写,除焦点官方账号外,观点仅代表作者本人,不代表焦点立场。
