珑远万江翠珑湾(售楼处) 首页 - 珑远万江翠珑湾销售中心 -珑远万江翠珑湾 价格 - 地址 - 楼盘详情 - 配套 - 电话 - 交房时间 - 配套 - 电话 - 交房时间
扫描到手机,新闻随时看
扫一扫,用手机看文章
更加方便分享给朋友
🌈珑远万江翠珑湾售楼处电话☎️400-8787-098转接8999(售楼处)
🌈珑远万江翠珑湾营销中心电话:☎️400-8787-098转8999【营销中心】
🌈温馨提示:拨打400电话,听到嘀声后,输入分机号8999即可!万江文化底蕴浓厚,拥八大盛景。金鳌塔影,下坝灯影,鹭栖龙湾等,将滨江美景刻入城市建筑中。项目以十里汾溪绿水环抱概念融入,所处地段环绕“迎朝之水”、“环抱水”,与南面江岸呈玉带环腰之势,坐拥一城福脉。

【匠筑之脉】:三大园林主题,主城奢居大盘
建面约28万㎡城央江岸巨著,点板结合,Y字全南布局,通透无遮挡。“栖溪”“拂溪”“悦溪”三大主题园林,涵盖多种休闲娱乐、运动及商业活动空间。满足全龄段业主的居住生活需求。
栖溪-四大休闲空间:景观会客厅,漫生活散步道,全龄活动场所和阳光草坪

(图片仅为效果展示,园林打造以实际情况为准)
拂溪-三大运动空间:欢乐儿童乐园,健康乐环跑道,全龄双泳池;

(图片仅为效果展示,园林打造以实际情况为准)
悦溪 -两大商业空间:社区商业街区及商业活动广场

(图片仅为效果展示,园林打造以实际情况为准)
94-142㎡瞰江三四房,全南向排布,视野开阔,均为双阳台,方正实用,多面采光,成就进阶人居新封面。
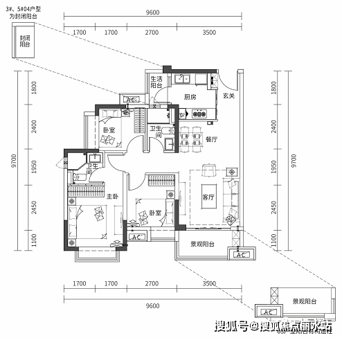
94㎡三房两厅两卫

三面朝南丨采光通风俱佳,生活满溢阳光与清风
双阳台设计丨容纳生活琐碎,俯瞰大美江景
客餐一体丨客餐厅连接双阳台,通透布局开阔空间
全卧飘窗丨奢享全卧飘窗设计,美好风景全面上映
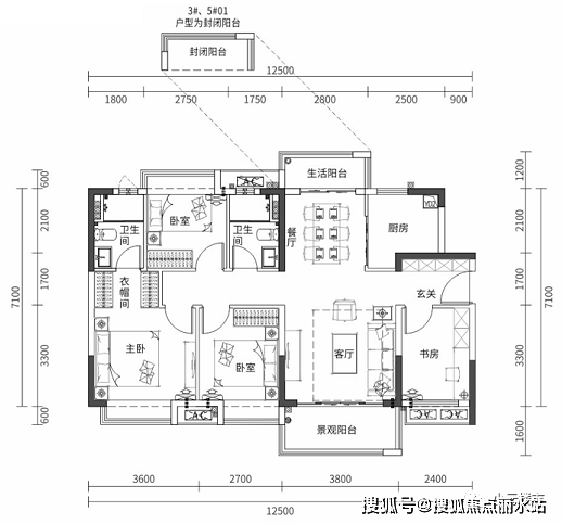
115㎡四房两厅两卫

🌈珑远万江翠珑湾售楼处电话☎️400-8787-098转接8999(售楼处)
🌈珑远万江翠珑湾营销中心电话:☎️400-8787-098转8999【营销中心】
🌈温馨提示:拨打400电话,听到嘀声后,输入分机号8999即可
声明:本文由入驻焦点开放平台的作者撰写,除焦点官方账号外,观点仅代表作者本人,不代表焦点立场。
