绿都云立方售楼处电话→绿都云立方24小时电话→绿都云立方2025最新房价→绿都云立方楼盘百科详情
扫描到手机,新闻随时看
扫一扫,用手机看文章
更加方便分享给朋友
🌈绿都云立方售楼处电话☎️400-8787-098转接4444(专人接听)
🌈绿都云立方营销中心电话:☎️400-8787-098转4444【营销中心】
🌈温馨提示:拨打400电话,听到嘀声后,输入分机号4444即可!

大学路、二七芯、三地铁、约4.9米层高双钥匙小复式
🌈绿都云立方售楼处电话☎️400-8787-098转接4444(专人接听)
🌈绿都云立方营销中心电话:☎️400-8787-098转4444【营销中心】
➖➖➖➖➖➖➖➖➖➖➖➖➖➖
️️️️项目信息
【2号楼复式LOFT公寓】
【房源信息】36-37-38-68平毛坯
【交房时间】2022/12/30
【商业配套】单气,暖气入户
【 楼 层 】房源充足、楼层可选
【梯户比】6T41户
【 总 高 】20层,层高4.9米
【物业公司】河南绿都物业服务有限公司
【交房标准】毛坯、地暖
【容积率】4.99
【绿化率】25%
【物业费】3.9 元/月·平方米
【占地面积】13107.46㎡
【建筑面积】约9万㎡
【得房率】约85%(含约9平赠送面积)
🌈绿都云立方售楼处电话☎️400-8787-098转接4444(专人接听)
🌈绿都云立方营销中心电话:☎️400-8787-098转4444【营销中心】
置业绿都·云立方的15大理由:
📍最核心:
二七区最核心位置、对望约270米二七地标——商务双子塔、二七CBD、未来城市商务新封面,商务聚集地即为人流聚集地,强商务、强客流保证了未来的潜力和商机。

最中轴:
紧邻城市中轴大学路,中轴即为中心,是一个城市、一个区域的发展起源地,中轴优势即发展空间优势。
三地铁:
7号线(在建)、9号线(换乘)、15号线(规划中)三地铁环绕,距在建地铁7号线南环公园站约200米,步行约3分钟即可到达,该站是本区域内最大的地铁换乘站,地铁优势明显,人口集聚地,人流即财流。
🌈绿都云立方售楼处电话☎️400-8787-098转接4444(专人接听)
🌈绿都云立方营销中心电话:☎️400-8787-098转4444【营销中心】
大交通:
三纵四横立体交通网络,大学路、嵩山路、京广路、南三环、航海路、鼎盛大道等全部都是城市一级主干道,可快速通达城市各地。

🌈绿都云立方售楼处电话☎️400-8787-098转接4444(专人接听)
🌈绿都云立方营销中心电话:☎️400-8787-098转4444【营销中心】
🛍️大商圈:
项目东侧约30万方大商业、大都会商圈、南三环橄榄城商圈、二七万达商圈等,以项目为中心,周围商圈环伺,商圈拱卫,源源不断的生活配套和客群资源。

大生态:
北侧即是南水北调运河及约500亩运河公园,南侧是已经投入使用的约370亩南环公园,近千亩生态天然后花园,环境优美。

🌈绿都云立方售楼处电话☎️400-8787-098转接4444(专人接听)
🌈绿都云立方营销中心电话:☎️400-8787-098转4444【营销中心】
🪟区域唯一超高层高:
约4.9米层高刷新二七区公寓新高度,超高层高意味着空间的朗阔,同样面积使用率更高。
双钥匙独特设计:
双钥匙双入户设计成三室两厅两卫,一套等于多套,投资自住两相宜。
🛏超高赠送:
暖气入户,户户有大赠送,2号楼每户走廊上面的空间都为赠送面积,每户赠送约9㎡。
🏙现代感、更节能:
银灰色外立面,现代主义风格,断桥铝合金和双层中空low-E玻璃,气密性,节能减排,保温隔热性能更好。
🖼创新中庭设计:
内部采用中庭式核心筒设计(采光、通风、隐私效果更好),首层挑高约6米精装修大堂,走廊空间开阔,彰显尊贵品质。
超高投资回报:
买一层得两层,一份投资双倍收益,轻松实现稳定投资回报。
🧮轻松当房东:
一层出租,一层自住,自住实现了置业,出租给别人可以用房租抵月供,轻轻松松当房东。

🌈绿都云立方售楼处电话☎️400-8787-098转接4444(专人接听)
🌈绿都云立方营销中心电话:☎️400-8787-098转4444【营销中心】
百变大未来,值此云立方:
唯一性——二七区最核心位置,临中轴大学路,是为“轴心”,未来的商务聚集地,客流庞大;
唯一性——三条地铁线环绕,周边大商圈密布,为人流以及未来的客群导入提供基础;
唯一性——约4.9米超高层高,加上双钥匙设计,户型百变,可作为三室两厅两卫,也可做成两套房子,办公、自住、出租、创业,多元化功能;
稀缺性——户户均有超高赠送,约9㎡,相当于多送一个房间;
创新性——约85米高中庭满足了采光、通风、隐私效果;约400平共享空间又满足了对外的社交;迎合客户需求;
一套房子的百种可能——可挑空,做成小复式豪宅;可做成三室两厅两卫;可楼下办公楼上老板办公室;可楼下网红直播楼上休息区;可楼下创业楼上自住;可做成民宿、酒店等,或者两套打通做竞技场所;小空间满足所有需求;
投资高回报——买一得二,一套变两套,一份投资,双份回报;或者一套出租一套自住,房租抵月供,置业无压力。
🌈绿都云立方售楼处电话☎️400-8787-098转接4444(专人接听)
🌈绿都云立方营销中心电话:☎️400-8787-098转4444【营销中心】
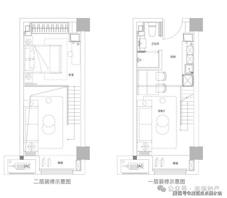
复式户型图
约37平方米复式:三室两厅两位

🌈绿都云立方售楼处电话☎️400-8787-098转接4444(专人接听)
🌈绿都云立方营销中心电话:☎️400-8787-098转4444【营销中心】
2号楼平层图
样板间实景图



🌈绿都云立方售楼处电话☎️400-8787-098转接4444(专人接听)
🌈绿都云立方营销中心电话:☎️400-8787-098转4444【营销中心】
二楼约9平赠送空间

约4.9米层高云立方loft 小复式的大可能
🌈绿都云立方售楼处电话☎️400-8787-098转接4444(专人接听)
🌈绿都云立方营销中心电话:☎️400-8787-098转4444【营销中心】
🌈温馨提示:拨打400电话,听到嘀声后,输入分机号4444即可!
声明:本文由入驻焦点开放平台的作者撰写,除焦点官方账号外,观点仅代表作者本人,不代表焦点立场。
