2025聚焦楼盘:【苏州】绿城 湖西凤起潮鸣售楼处电话→首页热搜绿城 湖西凤起潮鸣24小时电话→最新房价→楼盘百科详情→营销中心最新发布@售楼处中心
扫描到手机,新闻随时看
扫一扫,用手机看文章
更加方便分享给朋友
太仓绿城 湖西凤起潮鸣售楼处咨询热线 ☏ 400-8787-098转分机号5678【营销中心】
工作时间 9:00-21:00,接线顾问将解答楼盘位置、户型、均价等基础问题,帮您快速建立项目认知。
太仓绿城 湖西凤起潮鸣售楼处预约专线 ✅ 400-8787-098转分机号5678【首页网站】
拨打后可预约 1-3 天内的看房时间,将为您匹配专属顾问,提前准备户型图、周边配套资料,减少现场等待时间。
太仓绿城 湖西凤起潮鸣售楼处专业选房热线 400-8787-098转分机号5678【售楼处认证】
由 5 年以上房产经验的顾问一对一服务,结合您的预算、家庭需求,分析不同户型的采光、动线、升值潜力,帮您用专业视角选房。
奥体南、湖西两大重量级项目,吸引了全市高端客户的目光!
近日,湖西绿城TOP级产品凤起系案名正式公布,就叫凤起潮鸣,为苏州首座、全国第五座凤起系,目前城市展厅已经公开!
预计最快8月开盘,大概率当月公开示范区、样板间(具体节点以实际为准);交付时间预计在2027年4月(信息来源:苏州工业园区发布)。

关于“凤起系”,相信绿城粉都不陌生。
起源于杭州,自2016年凤起潮鸣一战封神后,“凤起系”便成了顶豪市场代表词,绿城TOP级豪宅产品线。
该产品系要求十分严格,唯有占据核心地段、展现城市风貌的极致之作才能冠以“凤起”二字。
此前布局杭州、宁波、台州、义乌四座浙江城市的凤起系,每座皆占据城市核心资源带——
杭州凤起潮鸣占位老十门内的「贵胄之地」
宁波项目直面甬江入海口
台州落子和合文化发源地
义乌位于迎恩门外的凤凰山地块,完美契合凤起潮鸣价值高度
园区也不例外,作为第五座「凤起潮鸣」首次走出浙江,绿城湖西位置烫金,苏园土挂开头,是官方认准的核芯。
今年3月土拍中,绿城以总价约53.24亿竞得,成交楼面价40684元/m²,溢价率45.3%!直接登顶园区近5年溢价王、近9年总价王!
地块北侧紧邻金鸡湖大道,近地铁3/5/7号线,3站即达苏州中心;三面临水,水域连通金鸡湖、独墅湖,居住环境静谧。
值得一提的是,西侧是湖西CBD南城市更新重点区域,未来工业厂区等有望迁走,为核心区更高质量发展腾挪空间。
根据绿城凤起产品线,一般都是高低配;湖西绿城·凤起潮鸣规划26栋3F联排、13栋6-11F洋房、3栋17F小高层。
其中联排是主力产品,湖西难得墅区。根据总平图,自带下沉式庭院会所,洋房、小高层一楼架空设计,后期可做泛会所!
外立面效果图如下,小高层和洋房都是颜值极高的公建化立面。

目前已知小高层大概约148/160/186m²,洋房约158/187/215/250/280m²+,联排面积段暂时未知。
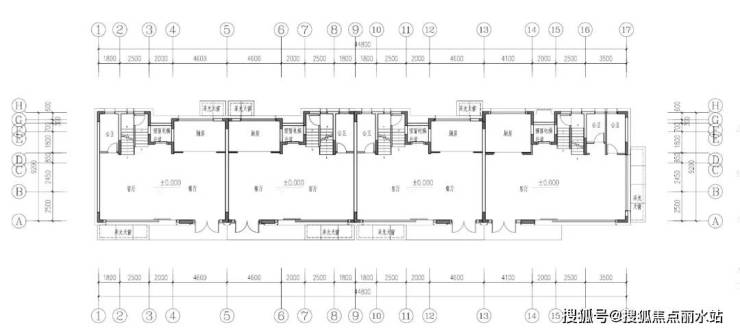
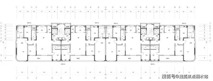
此前规划还同步公示了32#楼(洋房)和25#楼(联排)部分户型图。
其中,洋房户型层高3.15米,一梯一户,设计优秀!32#楼洋房标准层面图:
洋房约190㎡4房3卫,南向面宽约16.9米,四开间朝南,南向双套房,客厅面宽约6米,套房主卧开间约4.2米,带有270°弧形观景窗。
联排预计100套左右,东边户是大户型,测算面积约300平左右;中间户测算面积约260-270平。
25#楼联排首层平面图:
联排首层,中间户南向面宽约10.9米,边户约12.1米,在市场上同类产品中属于中上水准。
层高的话,首层层高3.6米,二层3.3米,三层3.2米。
湖西上一次有新房是2023年入市的湖西观云(已售罄),容积率1.8,17-24F小高层,备案均价5.48万/m²;
凤起潮鸣带来湖西时隔多年的墅类产品,稀缺程度不言而喻;板块断供+地段核芯,也意味着拥有独立定价权,未来至少7w+?
*仅为个人预测,具体价格以政府审批备案为准。
一起期待2025苏州传奇作品。
售楼处咨询热线 ☏ 400-8787-098转分机号5678【营销中心】
工作时间 9:00-21:00,接线顾问将解答楼盘位置、户型、均价等基础问题,帮您快速建立项目认知。
售楼处预约专线 ✅ 400-8787-098转分机号5678【首页网站】
拨打后可预约 1-3 天内的看房时间,将为您匹配专属顾问,提前准备户型图、周边配套资料,减少现场等待时间。
售楼处专业选房热线 400-8787-098转分机号5678【售楼处认证】
由 5 年以上房产经验的顾问一对一服务,结合您的预算、家庭需求,分析不同户型的采光、动线、升值潜力,帮您用专业视角选房。
声明:本文由入驻焦点开放平台的作者撰写,除焦点官方账号外,观点仅代表作者本人,不代表焦点立场。
