保利和光尘樾【售楼中心】 | 太原【保利和光尘樾】首页网站 |2025最新消息 /售楼处电话/地址/房价/楼盘简讯
扫描到手机,新闻随时看
扫一扫,用手机看文章
更加方便分享给朋友

加推10号楼!龙城大街,双学区,精装小高层,太原保利和光尘樾
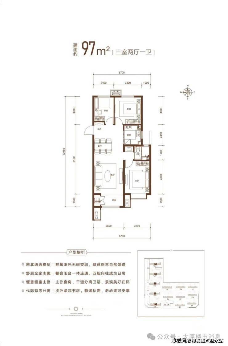
位于龙城大街东延的保利和光尘樾,今天加推楼王10号楼,已开启团购认筹排号。户型有97平和101平,精装修三居,2025年10月交付。均价10300左右一平,下个月会上涨2个点。签约配套了八一小学和小店一中,已经开学了,允许转学。旁边规划地铁三号线,准备开工建设。
十号楼的这两个户型,都是南北大通透,总高18层,楼间距大,采光好,公摊21%左右。低楼层有特价房源,更实惠划算。具体咨询我。
保利和光尘樾位于小店区,龙城大街东延板块。央企保利开发,小区环境好,物业服务好。家门口读完幼小初,网签即可入学。签约了八一小学和小店一中,硬件条件好,教学口碑好。。
除了上面两个户型,和光尘樾还有142平,总高11层洋房,现房在售,最后8套。
🌪️臻稀洋房最后8️⃣席 错过无
🌟央企实景现房 低密小洋房 🏡
🌟总高11层 2.0 容积率🌳
🌟超宽楼间距49m 采光无敌🌞
🌟一梯两户 双开门 公摊仅 19.6%🛗
🌟142m²三室两厅两卫 7.5m 超宽阳台🌸
优点:
1、央企保利开发建设,总高18层的小高层,准现房状态,无烂尾延期风险,今年十月交付。保利物业自持,服务口碑很好,一直在前三名。已交付一期二期,可以跟我实地考察后,对绿化,小区清洁度,物业服务水平等方面,大部分业主,满意度都很高。
2、签约了八一小学,小店一中,都已经建好,而且2023年9月已经开学。小学和中学,业主三代内,都可以直升,允许小学低年级转学或者直升初一初二,不需要落户。学校在小区旁,直线距离二百米内,上学放学接送或者自己回家都很方便。
3、总高18层的小高层,特批97平100平,户型设计很好,精装修,成交均价在9800到一万出头,2025年10月交付。公摊小,得房率高。小区内绿化率高,楼间距大,住着舒服。
4、小区容积率低,楼间距大,采光都很不错。小高层,97平到100平,北侧无连廊。其他部分户型,北侧有连廊,但是采用了玻璃幕墙,采光影响很小。
5、龙城大街旁,地铁三号线规划站点旁,2025年可能审批下来,然后立刻开工修建。出行龙城大街,东峰路等。到南站机场很近。小区沿街商业比较多,目前生活配套已经齐全。第二人民医院。
缺点:
1、龙城大街东延,往东是晋中市榆次区,公交线路比较少。出行主要靠开车,骑电动车。但是龙城大街,东峰路等市政道路,修得很宽,平坦,开车出行方便。未来,公交线路,地铁三号线的修建,都会带动这个区域的交通出行便利性。
2、附近没有大型商业体,周边待开发的土地比较多。交付的一期二期,沿街商铺开了很多,衣食住行基本满足业主要求。未来,这个区域会有大型商业体,配套会越来越好。
保利和光尘樾的小高层,总高18层,2025年十月交付,精装修,八九千,性价比高。物业自持,保利物业,后期服务好。小区园林设计好,功能区划分合理,健身器材和场地多。
声明:本文由入驻焦点开放平台的作者撰写,除焦点官方账号外,观点仅代表作者本人,不代表焦点立场。
