苏州首个玥系列——建屋·新棠玥售楼处电话→建屋·新棠玥售楼中心首页网站→楼盘百科详情→24小时电话
扫描到手机,新闻随时看
扫一扫,用手机看文章
更加方便分享给朋友
苏州首个玥系列——建屋·新棠玥
售楼处电话:400-8787-098转分机号5678【售楼处位置】
售楼处电话:400-8787-098转分机号5678【营销中心】
楼盘详情4008787098-转分机号5678(房价,价格,地址,户型图,交通,周边配套,备案价,楼盘详情,售楼处电话,售楼处地址,最新房源,最新价格,最新动态,最新进展等详情)
11栋13-17F的小高层
户型最大建面约225㎡
城市展厅即将公开,预计9月公开售楼处

2023年11月,斜港置业以约15亿元总价、22000元/㎡楼面价拿下苏地2023-WG-86号地块,即建屋·新棠玥。
该项目位于工业园区星塘街西、独墅湖大道北,占地约4万方,容积率1.7,紧邻片区内在售新盘保利珺华赋。

根据规划公示显示,该项目拟建11栋13-17F小高层,精装交付。外立面采用浅灰、中灰、银色等铝板,层高3.1米,高于最新规定。售楼处电话400-8787-098接通后输入5678【营销中心】

该项目还自带下沉式庭院会所,高端改善住宅的标准可见一斑!

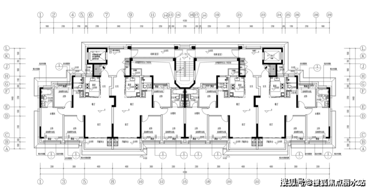
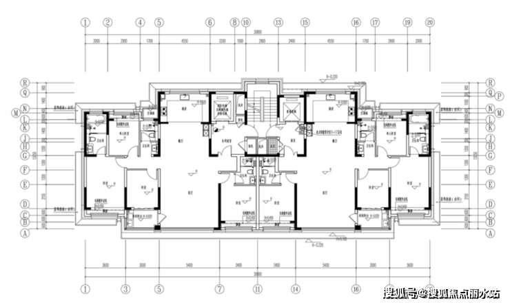
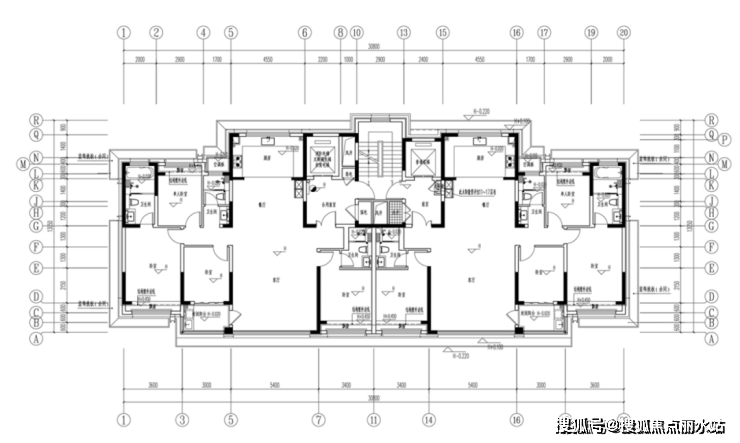
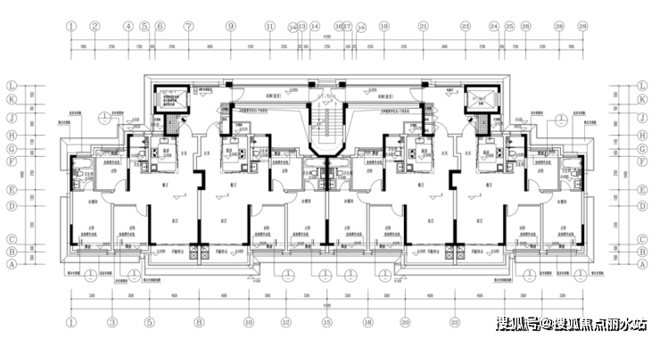
根据规划公布的1#、6#、10#的标准层平面示意图,可见项目上的3种户型设计。
10#14F小高层标准层平面图:
从平面图来看,采用2梯4户的设计,3房2厅2卫布局,3开间朝南;客厅开间约4米;两个朝南卧室,一个北向卧室,全屋飘窗,其中,南向主卧套房设计,满足一家三口居住需求。

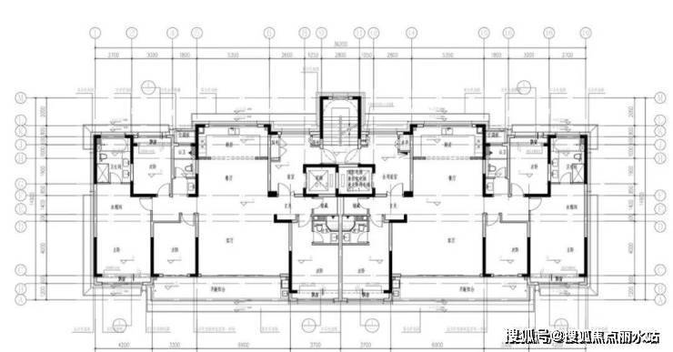
1#17F小高层标准层平面图(建面约175㎡):
该楼栋是2梯2户的设计,每户都有独立的入户玄关,户型采用4房2厅3卫的布局,4开间朝南,客厅开间约5.4米;三卧室朝南,其中两个套房卧室,可满足三代同堂的居住需求。

6#16F小高层标准层平面图(建面约215㎡):
该楼栋同样采用2梯2户的设计,户型也是4房2厅3卫的布局,与1#的区别在于,该户型为市面上比较流行的大横厅,客厅开间约6.9米,外接10.2米双联阳台,5开间朝南,南向双套房,有改善购房的需求者可以去看看。
地块规划要求—装修标准不低于2000元/㎡且不高于5000元/㎡,装修水准比较高。

从项目的地段来看,周边配套相对完善。
周边拥有文荟商业街、翰林缘邻里中心、独墅湖医院、独墅湖风景区等各类资源配套,可满足居民日常生活所需。
交通方面,除了独墅湖大道、星塘街等交通要道,西侧有轨交8号线,与3号线在线网中构成“组合环”。可以快速抵达苏州中心、圆融时代广场等园区高端生活配套。
教育方面,地块周边有苏州工业园区文景实验学校、苏州工业园区斜塘学校等。同时,毗邻大学城。
值得关注的是,根据园区用地最新规划调整,该项目斜对角将诞生6宗住宅用地,容积率≤1.8,未来很有可能将打造洋房、小高层产品。形成改善居住区。

苏州首个玥系列——建屋·新棠玥
售楼处电话:400-8787-098转分机号5678【售楼处位置】
售楼处电话:400-8787-098转分机号5678【营销中心】
楼盘详情4008787098-转分机号5678(房价,价格,地址,户型图,交通,周边配套,备案价,楼盘详情,售楼处电话,售楼处地址,最新房源,最新价格,最新动态,最新进展等详情)
声明:本文由入驻焦点开放平台的作者撰写,除焦点官方账号外,观点仅代表作者本人,不代表焦点立场。
