天创元萃西城壕(售楼处) 首页 - 武汉天创元萃西城壕销售中心 - 环境 - 户型 - 价格 - 地址 - 楼盘详情 - 配套 - 电话 - 交房时间 - 配套 - 电话 交房时间
扫描到手机,新闻随时看
扫一扫,用手机看文章
更加方便分享给朋友
天创元萃售楼处电话400-8787-098转接输入1818销售(已认证)
➢➢预约参观热线400-8787-098转接输入1818【售楼中心】
➢➢温馨提示——拨打400电话——听到嘀声后——输入分机号1818即可通话
➢➢楼盘基本信息介绍,地址,户型,价格,位置,医疗教育,商业交通配套➢➢网上售楼中心—匠心钜制-恭迎品鉴-欢迎来电咨询-预约一对一讲解-请提前联系售楼处销售进行登记
免责声明:本文如无意中侵犯了某方的知识产权,告之即删
天创元萃共规划了4栋10-13层的小高层住宅和少量社区底商。
项目总用地面积约1.18万方,总建筑面积约3.29万方,计容建筑面积约2.35万方,住宅建筑面积约2.09万方,容积率2.0,户数159户,机动车停车位170个,车位配比1∶1.07。
经济技术指标:
(规划局公示,后期或有调整)
项目地块不规整,西北角有加油站,东侧拟建复合变电站。北侧、西侧为主干道,东侧、东南侧、南侧为规划道路。1号楼和2号楼基本为南北朝向,3号楼和4号楼为南偏西朝向。楼间距约31-32米。
项目体量比较小,从平面图来看,1号楼1单元、3号楼1单元是非常罕见的1梯1户结构,其他单元均为2梯2户纯板楼结构。3、4号楼之间规划有水景,3号楼2单元首层架空。
目前,项目已经公布了建面约127平、142平户型,建面约172平户型还在审核中。
作为内环准四代住宅,据开发商介绍,项目户均得房率约110%以上,还不含电梯前室,优化后这么高的得房率,在全武汉三环内都非常罕见,在内环更是难找到!(优化后得房率来源于口头宣传,仅供参考,与实际存在差异,后期可能有调整,请以现场样板间和实体楼展示为准)
研究了一下优化空间,除了传统的阳台、飘窗外,还有花池、空调机位及少量设备平台等;而且每个户型带独立电梯前室,小面积也做到了四房三卫,确实做到了户型越级!
话不多说,赶紧上户型图。
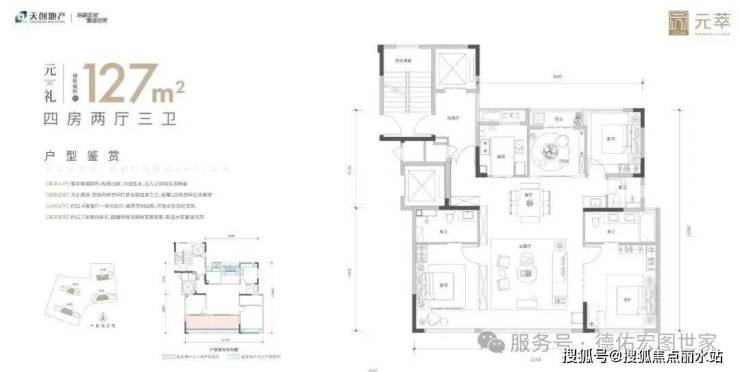
建面约127平,四房两厅三卫:
该户型位于2、3、4号楼单元连接处、1号楼2单元,南北通透,三开间朝南。
该户型带独立电梯前室,南向大阳台外带大花池,优化面积多;其它卧室及厨房均带飘窗,其中北向次卧还能实现双面飘窗优化,得房率高;北向X空间,有空调机位+设备平台优化空间,室内空间进一步拓展!因为本身小高层公摊很低,加之四代的高赠送,简直不得了。
建面约127平不仅做到了四房设计,还有三个卫生间,功能性更强,不过动静分区相对较弱。
不过,该户型有个套卫是暗房。整体来说,该户型设计比较好,在市面上,很有竞争力。
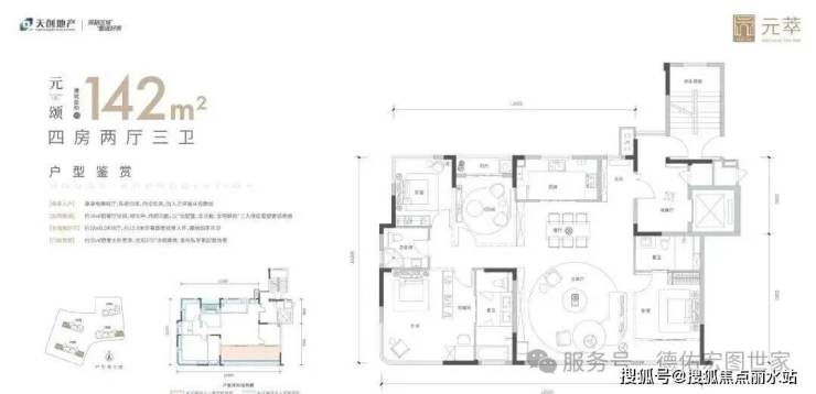
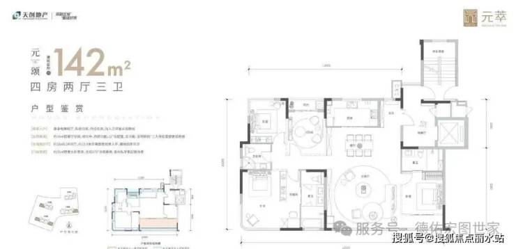
建面约142平,四房两厅三卫:
该户型为2、3、4号楼端头边户,南北通透,三面采光,三开间朝南。
该户型带独立电梯前室,南向超大阳台+大花池,优化面积多;其它房间均有飘窗优化空间,其中两个卧室还能实现双面飘窗优化空间;北向X空间也做到了飘窗+空调机位+设备平台等优化,室内空间大大提升!
该户型大开间、短进深,居住舒适度非常高;建面约142平四房设计,还带三个卫生间,功能性强;该产品可以作为终极改善置业,设计的也非常好。
从效果图来看,项目南侧采用了大面积玻璃栏板,转角大窗做成了弧形,颜值还是相当不错的。
项目南侧为学校,四至基本没啥高层遮挡,采光比较好。不过第二排的1、3号楼低楼层日照情况也比较一般。
价格分析:
预测价格并不高
可能会比较好卖,引爆市场
天创元萃所处武昌古城以及武昌滨江积玉桥片区,已经很多年没有新盘供应,潜在改善购房需求会比较大。
武昌滨江最高价武汉长江中心已是尾盘,带装修在3.5万+/平起,一般房源都能卖4万/平以上;更近积玉桥的联投中心现房准现房、带装修、毛坯房都有,目前价格仍然维持在4万+/平。
不过,片区内下半年即将迎来一波新盘潮,招商紫荆府、华发外滩玺等楼盘,也将与项目形成一定竞争关系!其中,华发外滩玺看江房源可能破4万元/平,项目纯小高层住区,与华发外滩玺形成差异化!所以,项目在片区内,仍然算是比较珍贵的产品,再加上体量小,只要价格合理,大概率不愁卖。
周边商品二手房小区也不多,且房龄普遍都超过10-15年。
项目附近的金都汉宫9月二手房挂牌均价约32000元/平,9月成交均价约286XX元/平;部分在售二手房挂牌单价约27XXX元/平,而且可以看江。
项目附近华润置地凤凰城9月二手房挂牌均价约24316元/平,9月成交均价约20728元/平;部分在售房源挂牌价约18XXX元/平。
与周边二手房相比,项目是纯小高层住区、准四代产品,有一定优势,据悉项目价格并不会很高。“武汉阿松”预测,根据市场行情、项目地段户型,如果不超过3万元/平,可能会比较有竞争力,而且因为房源不多,说不定还能日光!(价格仅为个人根据市场分析,不代表实际销售价格)
天创元萃售楼处电话400-8787-098转接输入1818销售(已认证)
➢➢预约参观热线400-8787-098转接输入1818【售楼中心】
➢➢温馨提示——拨打400电话——听到嘀声后——输入分机号1818即可通话
➢➢楼盘基本信息介绍,地址,户型,价格,位置,医疗教育,商业交通配套➢➢网上售楼中心—匠心钜制-恭迎品鉴-欢迎来电咨询-预约一对一讲解-请提前联系售楼处销售进行登记
免责声明:本文如无意中侵犯了某方的知识产权,告之即删
声明:本文由入驻焦点开放平台的作者撰写,除焦点官方账号外,观点仅代表作者本人,不代表焦点立场。
