(售楼部)石家庄长安润江壹号@售楼处电话-售楼中心-首页网站→楼盘详情→400咨询专线

丽水楼市 2025-10-14 16:39:48
用手机看
扫描到手机,新闻随时看

扫一扫,用手机看文章
更加方便分享给朋友

石家庄长安润江壹号项目售价15000-17000元/㎡,含多种户型,售楼处电话400-8787-098转6666,开发商为河北润江房地产。

石家庄长安润江壹号售楼处电话:400-8787-098转分机号6666【售楼处位置】

石家庄长安润江壹号售楼处电话:400-8787-098转分机号6666【营销中心】

楼盘详情4008787098-转分机号6666(房价,价格,地址,户型图,交通,周边配套,备案价,楼盘详情,售楼处电话,售楼处地址,最新房源,最新价格,最新动态,最新进展等详情)

【开发商】:河北润江房地产开发有限公司,本土黑马企业,本土房企NO 1

【项目规划】:占地91亩,4栋洋房(7层),9栋高层(17 -33层),1所幼儿园,1栋会所;容积率:2.5;绿化率:35%

【在售楼栋】:

1#号楼加推一室两室

一室48平,两室75-78平,

91/48/75/78/101/96

1#,3个单元,34层到顶。

1单元01门133三室11层顶,02门95平两室,12层以上是一梯一户。

2单元一梯两户,95平两室。

3单元两梯六户,01门95两室,02门101两室,双阳。03 门79平 04门 75平,05 门48平一室 ,06门90平两室,西面是03门04门05门06门,

1-24层是保障房。25-34层是商品房。

2#,11层到顶小高层,124 133平米,两梯两户,均价16000-17000

3#,3个单元,18层到顶。

两梯两户,中间四户124平,东西楼头133平。

一楼赠下跃面积同地上赠小院,中间30-40平楼头60-70平。一楼价位26000-27000元。

顶楼带平台140平左右。,110和80一起售两个房本顶层一共两户,价位24000元左右。

其他楼层15500左右。人华小学。23年6月交房。

6#、8#楼,22层,1梯2户,93㎡,两室两厅一卫;131㎡,三室两厅两卫;

10#楼,18 层,2梯2户,124㎡、131㎡,三室两厅两卫;

【楼盘价格】:均价15000-17000/平米

【贷款】按揭,公积金,组合。

【交房时间】:2023年6月

【交房标准】:毛坯

【车位配比】:1:1

【证件情况】:五证齐全

【物业费】:润江物业,2.8元/㎡,

【交通配套】:紧邻石家庄八纵干道之二体育大街、建华大街,丰收路路南,公交101/73/89/77/63路,规划2号线、4号线、5号线多地铁交汇

【教育配套】:石家庄市保利启新小学、北翟营小学、北京师范大学石家庄附属学校、石家庄市第二十一中,石家庄市第八十九中

【医疗配套】:石家庄市第四医院、河北省胸科医院、石家庄市中医院、河北省中医院

【商业配套】:保利商圈、奥北商圈、建华百货商圈、长安万达商圈、北国超市

【环境配套】:月季公园、人防公园、滹沱河公园三园环绕

【区位图】:

【项目鸟瞰图】:

一号楼3单元 平面图

【项目卖点】:

本土NO 1开发商,城市美学的布道者

城芯主场,一环之上,闹市中的繁华生活畅享

便捷交通,畅达全城

石门首家简约外立面,建筑中采用大量钢骨与墙幕玻璃的表现形式,石门首家光感美学住区

石门首家270°环幕阔景观景台,充分利用大面积露台与阳台的设计,以空中花园为特色,营造独特的垂直景观空间

小区内部配套齐全:豪配五星会所、社区自建公立幼儿园、全龄段儿童娱乐设施、老年活动中心

社区规划四大景观组团,每个组团含五大星空主题漫境区——星空漫步区、星空打卡区、星空互动娱乐平台、星空静谧花园、星空康体绿带等

园区内打造1200米星空主题慢跑道,并设置互动装置

园区内打造4000平米超大面积运动主题公园,设计风格融入星空主题和潮玩元素

润江星钻物业,超星级服务标准

【户型展示】:

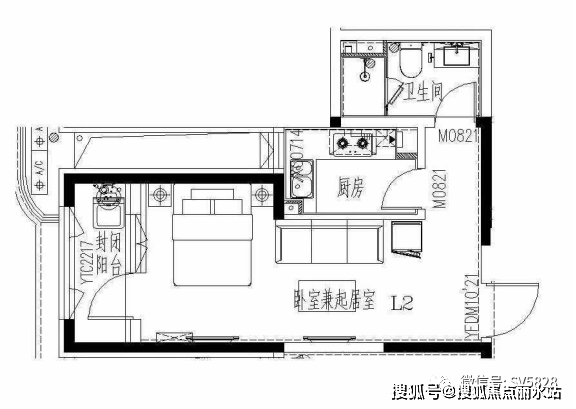
49平米,一室

79平米两居室

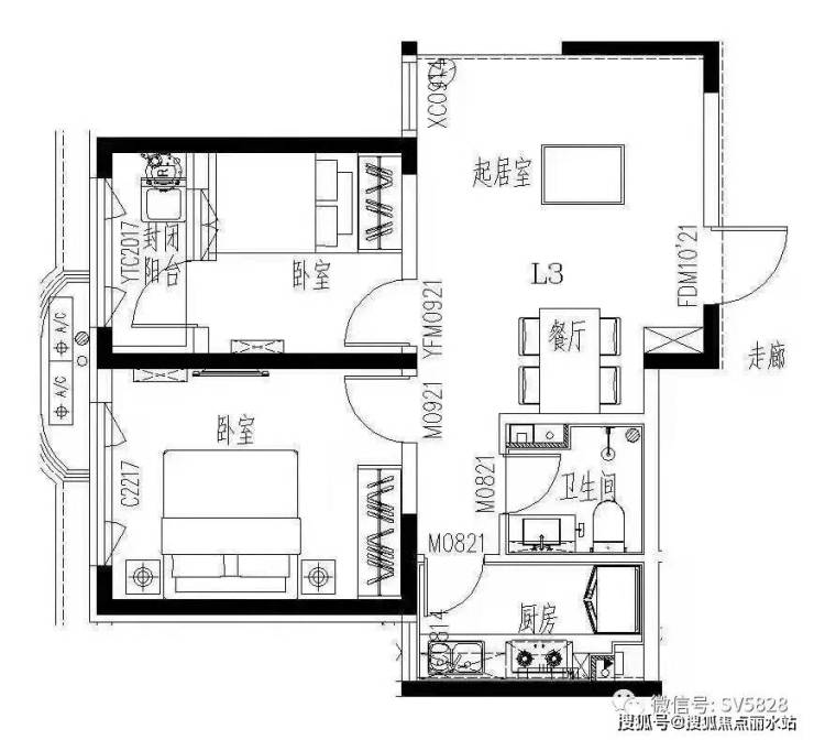
93㎡两居室

100平米两室可以改3室

124㎡三居室

131㎡三居室

133平米3室 3号楼

石家庄长安润江壹号售楼处电话:400-8787-098转分机号6666【售楼处位置】

石家庄长安润江壹号售楼处电话:400-8787-098转分机号6666【营销中心】

楼盘详情4008787098-转分机号6666(房价,价格,地址,户型图,交通,周边配套,备案价,楼盘详情,售楼处电话,售楼处地址,最新房源,最新价格,最新动态,最新进展等详情)

声明:本文由入驻焦点开放平台的作者撰写,除焦点官方账号外,观点仅代表作者本人,不代表焦点立场。