新蒲·朗晴别院售楼处电话→新蒲·朗晴别院24小时电话→新蒲·朗晴别院2025最新房价→新蒲·朗晴别院楼盘百科详情
扫描到手机,新闻随时看
扫一扫,用手机看文章
更加方便分享给朋友
🌈新蒲·朗晴别院售楼处电话☎️400-8787-098转接4444(专人接听)
🌈新蒲·朗晴别院营销中心电话:☎️400-8787-098转4444【营销中心】
🌈温馨提示:拨打400电话,听到嘀声后,输入分机号4444即可!
新蒲·朗晴别院➠洋房首开‼
二环内 地铁口 低密改善
航海路稀缺改善洋房大平层
👏🏻二环城芯➠改善首选!
👏🏻5号线地铁口30米
👏🏻实景准现房·8月底交付
👏🏻超低容积率仅2.54❗
🌺首开3号楼 1T2户 2个单元
✅洋房建面170-205㎡
‼️单价22700-24100元/㎡
‼️一楼带地下室32000元/㎡
🌳高层建面约:100-144㎡
🌳均价:15600-16300左右
‼️特价房13000元/㎡起
📍项目位置:中原区
🌈新蒲·朗晴别院售楼处电话☎️400-8787-098转接4444(专人接听)
🌈新蒲·朗晴别院营销中心电话:☎️400-8787-098转4444【营销中心】
🔵🔵🔵项目基础信息🔵🔵🔵
【占地面积】:12946.5㎡
【总建筑面积】:约5.5万㎡
【绿地率】:35%
【容积率】:2.54
【总楼栋】5栋
(2栋高层,3栋洋房,3号楼已开盘)
【梯户比和层高】
1号楼总高26层,一个单元 4T6
2号楼总高9层,1个单元 1T2
3号楼总层高6层,2个单元 1T2
【挑高】高层2.9米,洋房3米,地下室挑高3米
【总户数】:219户
【车位比】1:1.6
【交付】:2024.7.31毛坯交付
【首付】正常首付,可公积金可组合贷
【建筑风格】新中式建筑风格、1T2户,4T6户【景观】五重主题景观、环社区有氧跑道,超大儿童游乐区区【智能化】可视对讲、人脸识别、智能巡更、梯控、园区WIFI等
【物业】河南省新蒲置业有限公司
【物业费】2.98元/㎡/月
主城区洋房开售高层2.9米,洋房3米,地下室挑高3米
剩余房源梳理
87㎡在2号楼上,剩2楼3楼6楼,均价16000
100平在1号楼上,剩21层以上4楼以下,均价14600
116平在1号楼上,楼层还能挑选,均价15600
130平在1号楼上,剩5楼以下顶楼,均价16300
141平在1号楼上,剩2/4层,均价16300
144平在1号楼上,剩10楼以下,均价16300
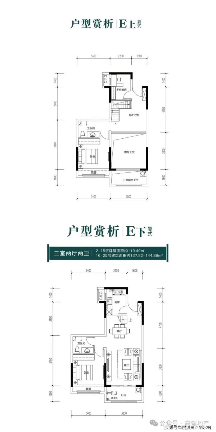
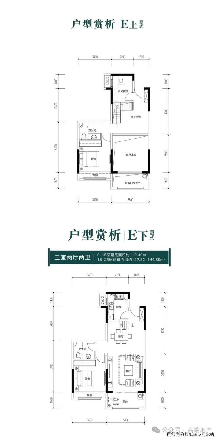
119/137-144平复式,在1号楼上,楼层可选,15楼以下客厅不算面积,是119平,15层以上客户算面积,是137-144平,均价16700-17700
特价房元/㎡起
3号楼洋房已开盘,直接认购,只有24套‼
面积170-205㎡,标准层均价22700-24100
一楼带地下室均价32000
🌈新蒲·朗晴别院售楼处电话☎️400-8787-098转接4444(专人接听)
🌈新蒲·朗晴别院营销中心电话:☎️400-8787-098转4444【营销中心】
开发商介绍➠➠➠新蒲集团
新蒲建设集团有限公司组建于1980年。2005年获得建筑工程施工总承包特级资质,同时拥有市政公用工程施工总承包特级资质,建筑行业(建筑工程)甲级设计资质,市政行业甲级设计资质,是施工设计“双特双甲”企业,具有钢结构、地基基础工程、消防设施工程、建筑装修装饰工程、建筑机电安装工程、城市及道路照明工程等专业承包壹级资质及境外工程承包和劳务合作经营权。是以建筑安装施工、市政公用工程施工、装配式部品部件生产、房地产开发、建筑市政设计、教育培训为主,融合建筑全产业链经营为一体的现代综合性建筑企业。
新蒲·朗晴别院➠藏境中原|大隐城芯
1. 择址|占据中原核心区域,享成熟配套
新蒲·朗晴别院项目择址航海路与工人路交汇处,地铁5号线后河芦站近在咫尺。中原万达繁华不息,升龙国际中心、航海路丹尼斯百货,华润万家、帝湖商业中心及万科星辰生活广场毗邻项目,无论是生活购物,还是休闲娱乐都可一站即达。
🌈新蒲·朗晴别院售楼处电话☎️400-8787-098转接4444(专人接听)
🌈新蒲·朗晴别院营销中心电话:☎️400-8787-098转4444【营销中心】
2. 资源|底蕴非凡 咫尺悦繁华
配套➠朗晴别院以繁华为芯,集萃一城交通、生态、商业、教育、医疗等核芯资源,匠造“繁华与自然同享”之境,让美好宜居触手可及
交通➠扼守二三四环线立体交通枢纽带,门口即是地铁号线(后河芦站),拥享/桐柏路/西三环/航海路等城多条市主干道,快速接驳全城繁华
🏖生态➠一湖一河一公园(帝湖、金水河、滨河公园),据中原城芯承西美发展之势
🏤商业➠中原万达、二七万达、升龙商业广场、帝湖百货、百姓商场等各大消费商圈环绕在侧
3. 世袭|至美规划,新中式恢宏巨筑
🌈新蒲·朗晴别院售楼处电话☎️400-8787-098转接4444(专人接听)
🌈新蒲·朗晴别院营销中心电话:☎️400-8787-098转4444【营销中心】
4、传承|文化底蕴
一站式全龄教育,中原区作为老城区,基础教育遥遥领先,朗晴别院项目周边教育资源更为丰富。划片航海西路小学,郑州七十三中
周边学校:慕贝格幼儿园,爱弥尔幼儿园,淮河路小学、航海西路小学、帝湖第一小学,外国语小学,齐礼闫小学,郑州市树人外国语中学、郑州七十三中、郑州师范学院第二附属中学、郑州市第二中学,郑州实验外国语中学……耳濡目染的人文氛围,与生俱来的芳华气质。
🌈新蒲·朗晴别院售楼处电话☎️400-8787-098转接4444(专人接听)
🌈新蒲·朗晴别院营销中心电话:☎️400-8787-098转4444【营销中心】
5、创新|绿色科技,被动式住宅先驱者朗晴别院洋房采用超低能耗被动式住宅,被动式房屋就是采用各种节能技术构造最佳的建筑围护结构,极大限度地提高保温隔热性能和气密性,使热传导损失最小化;通过技术手段尽可能实现室内舒适的热湿环境和采光环境;最大限度降低对主动式采暖和制冷系统的依赖。被动房四季的室温可维持在人体最适宜的18℃~24℃之间,且在雾霾等污染天气情况下,仍能保持室内空气清洁,具有高保温性、高气密性、高舒适度以及高
🌈新蒲·朗晴别院售楼处电话☎️400-8787-098转接4444(专人接听)
🌈新蒲·朗晴别院营销中心电话:☎️400-8787-098转4444【营销中心】
6. 空间|革新生活场域
高层产品建面约100-143㎡迭代新品
为美好再革新

🌈新蒲·朗晴别院售楼处电话☎️400-8787-098转接4444(专人接听)
🌈新蒲·朗晴别院营销中心电话:☎️400-8787-098转4444【营销中心】
1号楼E户型【复式】119.49-144.89㎡
🌈新蒲·朗晴别院售楼处电话☎️400-8787-098转接4444(专人接听)
🌈新蒲·朗晴别院营销中心电话:☎️400-8787-098转4444【营销中心】
洋房户型
中间户
边户
🌈新蒲·朗晴别院售楼处电话☎️400-8787-098转接4444(专人接听)
🌈新蒲·朗晴别院营销中心电话:☎️400-8787-098转4444【营销中心】
7. 服务|贴心服务,尊享人生
特聘专业物业管理公司,以现代化的安全管理模式和高标准的便捷服务渠道,打造亲情式物管服务,营造和谐,安全、舒适的社会生活,24小时全天候安保为您的生活保驾护航。
🌈新蒲·朗晴别院售楼处电话☎️400-8787-098转接4444(专人接听)
🌈新蒲·朗晴别院营销中心电话:☎️400-8787-098转4444【营销中心】
【建面144㎡4居】195.0-238.0万-分布于1号楼 ,4梯6户,层高2.90米,总楼层26F
【建面116㎡3居】138.0-160.0万-分布于1号楼 ,4梯6户,层高2.90米,总楼层26F
【建面130㎡3居】177.0-195.0万-分布于1号楼 ,4梯6户,层高2.90米,总楼层26F
【建面142㎡3居】182.0-191.0万-分布于1号楼 ,4梯6户,层高2.90米,总楼层26F
【建面119㎡3居】200.0-211.0万-分布于1号楼 ,4梯6户,层高2.90米,总楼层26F
【建面205㎡5居】472.0-697.0万-分布于3号楼 ,1梯2户,层高3.00米,总楼层6F
【建面186㎡5居】445.0-631.0万-分布于3号楼 ,1梯2户,层高3.00米,总楼层6F
【建面145㎡3居】168.0-256.0万-分布于1号楼 ,4梯6户,层高2.90米,总楼层26F
🌈新蒲·朗晴别院售楼处电话☎️400-8787-098转接4444(专人接听)
🌈新蒲·朗晴别院营销中心电话:☎️400-8787-098转4444【营销中心】
🌈温馨提示:拨打400电话,听到嘀声后,输入分机号4444即可!
声明:本文由入驻焦点开放平台的作者撰写,除焦点官方账号外,观点仅代表作者本人,不代表焦点立场。
