武汉华侨城·红坊售楼处电话→华侨城·红坊售楼中心首页网站→华侨城·红坊楼盘百科详情→24小时电话
扫描到手机,新闻随时看
扫一扫,用手机看文章
更加方便分享给朋友
武汉华侨城·红坊售楼处电话:400-8787-098转分机号5678【售楼处位置】
武汉华侨城·红坊售楼处电话:400-8787-098转分机号5678【营销中心】
武汉华侨城·红坊楼盘详情4008787098-转分机号5678(房价,价格,地址,户型图,交通,周边配套,备案价,楼盘详情,售楼处电话,售楼处地址,最新房源,最新价格,最新动态,最新进展等详情)
华侨城红坊|云囍公馆项目效果图
华侨城红坊|云囍公馆项目区位图
华侨城红坊总体体量很大,云囍公馆只是其中一个楼盘
项目详情
物业类别普通住宅 大平层 洋房 购物中心
参考价格
洋房单价:20000元/平方米
楼盘概况单价: 20000元/平方米
项目特色洋房第四代住宅品牌地产江景地产
建筑类别板楼
装修状况毛坯
产权年限普通住宅产权70年
环线位置二至三环
开发商
武汉华滨置业有限公司楼盘地址
青山华侨城创意设计中心( 红钢三街22号)开盘时间2025年6月
交房时间2026年下半年售楼地址
华侨城创意设计中心预售许可
武房开预售[2025]164号
发证时间2025-06-13
占地面积
20973.18平方米建筑面积
35961.15平方米容积率
1.71
绿化率
30%
车位数量
暂无数据价格
起价20000元/平物业公司
华侨城物业(集团)有限公司武汉分公司物业费
住宅3.2元/月/平方米
📍 区位与交通售楼处电话400-8787-098接通后输入5678【营销中心】

华侨城红坊|云囍公馆区位地图
小区四周:出门即是地铁。
配套:周边学校、医疗、商业较为完善
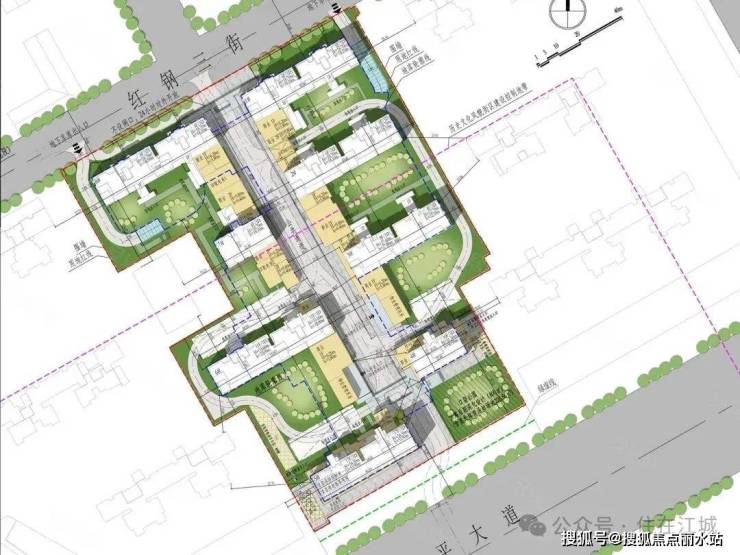
🏗 项目规模与规划
项目规划示意图
包含 8栋住宅、部分商业街区。
住宅有洋房、小高层
首期预售: 3#栋、4#栋、5#栋、6#栋
户型价格示例截图
四、 户型鉴赏
提示: 以下为部分户型图示意,具体以开发商最终交付为准。
武汉华侨城·红坊售楼处电话:400-8787-098转分机号5678【售楼处位置】
武汉华侨城·红坊售楼处电话:400-8787-098转分机号5678【营销中心】
武汉华侨城·红坊楼盘详情4008787098-转分机号5678(房价,价格,地址,户型图,交通,周边配套,备案价,楼盘详情,售楼处电话,售楼处地址,最新房源,最新价格,最新动态,最新进展等详情)返回搜狐,查看更多
声明:本文由入驻焦点开放平台的作者撰写,除焦点官方账号外,观点仅代表作者本人,不代表焦点立场。
