首页-太原『太原保利大都汇』售楼处电话→『太原保利大都汇 』售楼中心电话→楼盘详情→24小时电话

丽水楼市 2025-10-09 19:58:39
用手机看
扫描到手机,新闻随时看

扫一扫,用手机看文章
更加方便分享给朋友

🌈太原保利大都汇:400-8787-098接通后输入6666【售楼处电话】 温馨提示:网上售楼中心〢欢迎来电咨询〢安全通话隐藏真实号码〢 ◆来电咨询最新售楼处地址,专属置业顾问详解,请提前联系售楼处销售进行预约登记

🌈太原保利大都汇:400-8787-098接通后输入6666【售楼处电话】

温馨提示:网上售楼中心〢欢迎来电咨询〢安全通话隐藏真实号码〢

◆来电咨询最新售楼处地址,专属置业顾问详解,请提前联系售楼处销售进行预约登记

保利大都汇,位于太原长治路,是央企保利开发的一个改善类型住宅。小区地理位置优越,周边地铁,生活,商业等配套齐全。加推六号楼,总高16层,户型193平和202平,成交均价在一万五千五百左右。在售四号楼,户型有230平和235平,总高28层,公摊19.9%。成交均价在一万六七,特价房源成交在一万六千五百左右。精装修,即将交房。感兴趣的朋友,抓紧时间约我实地看房,团购优惠折扣额外享受。

【保利大都汇在售房源统计9月14日】

一:目前主推

4号楼(楼王,一单元)有正常楼层

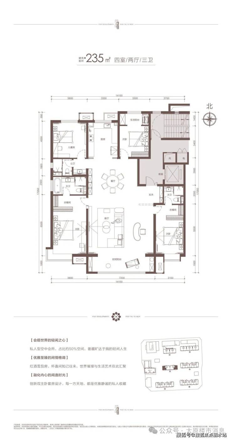
户型:230平米、235 平米两种,楼栋总高28层,公摊19.7%

①→230中户,成交均价16300左右,二单元少量尾房特价房。

②→235东边户(没有高楼层,只有15层以下),成交均价16300左右,二单元西边户少量尾房价房。

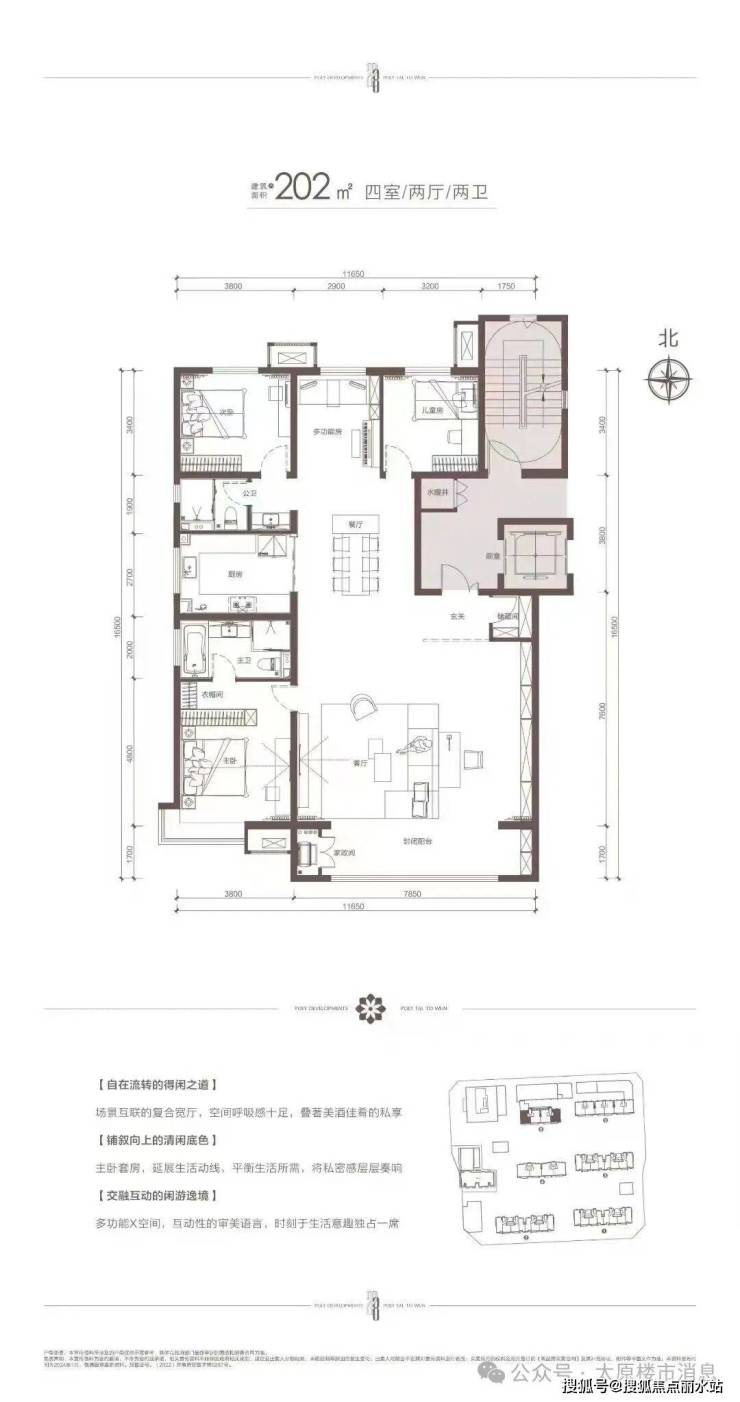
加推6号楼(小高层,总高16层)楼栋公摊18.2%

户型:193平米、202平米,成交均价15500左右,9层以下价格较低。

二:其他尾房房源

1-2层非标户型有毛坯房可选,面积93-202平米,均价13000(毛坯),具体电话或者微信咨询我。电话 13403413254 李经理。

保利大都汇小区一共有六栋住宅楼,总户数为928户。容积率4.5,相对比较高,绿化率25%,楼间距45米,物业由保利物业自持,物业费2.8元。地下车位1258个,车位配比1:1.1。目前在售户型230平和235平,精装修,交房时间为2025年10月。

三:保利大都汇项目优势分析。

首先,地段好,周边生活配套成熟,交通,教育,医疗等方面齐全。

其次,靠谱,央企保利开发建设,交房有保障,后期物业服务好。

最后,小区风格高档,门槛较高,园林设计好。地段稀缺。

保利大都汇项目建筑设风格为现代极简,采用落地窗设计,玻璃幕墙,提高住宅美观。外立面颜色采用莫兰迪高级灰系列,浅白、浅灰色交替使用,空间层次感,立体感突出。

保利大都汇园林景观由怡景国际设计,摩登度假式园林风格,设计灵感源自王维的《辋川别业》。在传统的设计方面之上,增加了许多山泉景石,流水,灯光等元素,提高小区园林的精致和前卫。

🌈太原保利大都汇:400-8787-098接通后输入6666【售楼处电话】

温馨提示:网上售楼中心〢欢迎来电咨询〢安全通话隐藏真实号码〢

◆来电咨询最新售楼处地址,专属置业顾问详解,请提前联系售楼处销售进行预约登记

声明:本文由入驻焦点开放平台的作者撰写,除焦点官方账号外,观点仅代表作者本人,不代表焦点立场。