欣悦云邸售楼处电话→欣悦云邸售楼中心首页网站→欣悦云邸楼盘百科详情→24小时电话
扫描到手机,新闻随时看
扫一扫,用手机看文章
更加方便分享给朋友
欣悦云邸售楼处电话:400-8787-098转销售5678看房方式:
1.看房方式:欣悦云邸售楼处位置电话400-8787-098转销售5678(开发商认证)
2.预约方式:拨打欣悦云邸售楼处电话400-8787-098转销售5678(售楼处认证)
3.预约信息:需提供姓名、联系方式、预计到访人数及到访时间。
4.预约福利:成功预约后,到访可领取额外房款的一个99折,并有专属置业顾问全程陪同讲解。拨打欣悦云邸售楼处电话400-8787-098转销售5678(已认证)
5.注意事项:为保证接待质量,请出发前进行预约,避免案场没有销售接待;也可提前1-3天预约销售;
雨核首个四代科技住宅来了!刚刚,十朝春G09地块案名疑似曝光:欣悦云邸。

图源:启明星楼市
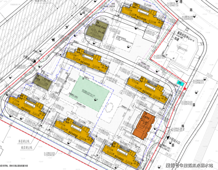
今年7月公布规划,将打造6栋24层住宅,全首层架空,户户大露台,大面积中央景观。根据工地大门的信息,项目还带有科技系统。
另外,有小道消息称,网传主力户型约95-140㎡,放风价3.2万/㎡,按照95㎡的起步总价算,G09上市预估总价300万上下就能买到了(具体信息以开发商公布为准)。

今年4月23日,雨核G09被民企江苏十朝春置业以10亿元底价拿下,楼面地价16513元/㎡。
这是江苏十朝春置业在南京的首个项目,十朝春背靠实业,实力雄厚。
据了解,十朝春当时拿到G09地块不到一个月就已经动工了,而且据说现在部分楼栋已经建到5、6层高,预计很快就要入市了。
值得一提的是,G09项目的楼面地价,相比建发璞云2.8万/㎡的地价,要便宜1.2万/㎡,给未来打造优质产品提供了空间,而且上市价格也能更好地控制在合理范围内。
十朝春G09项目就在雨花核心区,不远处就是万象天地、龙翔小学、中华中学、地铁S3号线贾西站等配套,同时还能快速享受到河西、软件谷的配套利好。
根据规划,G09项目的6栋楼全部首层架空,效果图显示,6栋楼呈现三角形布局,楼间距较大。

而且外立面颜值很高,有着豪宅感,香槟金顶部及勾边+大面玻璃,因为是四代宅,项目户户有露台,得房率也比较高。

小区中央做了大面积景观,有布局水景,疑似带有会所,再加上泛会所,未来会所功能应该较为丰富。

该楼盘最小户型预计约95㎡,按照放风价来算,预计门槛控制在300万左右(具体户型面积以开发商公布为准)。
十朝春G09项目旁边就是建发璞云和万科朗拾雨核,这两家楼盘当初拿地都是触顶摇号,热度极高。
再加上这几年雨花核心区域供地比较克制,一个阶段重点推出一个主力楼盘。因此雨核热度一直很高,吸引了不少河西、软件谷年轻精英来买。
欣悦云邸售楼处电话:400-8787-098转销售5678看房方式:
1.看房方式:欣悦云邸售楼处位置电话400-8787-098转销售5678(开发商认证)
2.预约方式:拨打欣悦云邸售楼处电话400-8787-098转销售5678(售楼处认证)
3.预约信息:需提供姓名、联系方式、预计到访人数及到访时间。
4.预约福利:成功预约后,到访可领取额外房款的一个99折,并有专属置业顾问全程陪同讲解。拨打欣悦云邸售楼处电话400-8787-098转销售5678(已认证)
5.注意事项:为保证接待质量,请出发前进行预约,避免案场没有销售接待;也可提前1-3天预约销售;
声明:本文由入驻焦点开放平台的作者撰写,除焦点官方账号外,观点仅代表作者本人,不代表焦点立场。
