南京北谷·翰文府售楼处电话→南京北谷·翰文府24小时电话→南京北谷·翰文府2025最新房价→南京北谷·翰文府楼盘百科详情
扫描到手机,新闻随时看
扫一扫,用手机看文章
更加方便分享给朋友
🌈南京北谷·翰文府售楼处电话☎️400-8787-098转接4444(专人接听)
🌈南京北谷·翰文府营销中心电话:☎️400-8787-098转4444【营销中心】
🌈温馨提示:拨打400电话,听到嘀声后,输入分机号4444即可!
刚刚,鼓楼龙江的纯新盘——北谷·翰文府规划曝光,最新户型图及效果图同步曝光。
据悉,项目将打造2栋16-17层小高层,户型建面约135m²、155m²全四房,只有60套房!
从最新的效果图来看,项目为四代宅产品,户户有露台、且带有多飘窗设计。

项目规划图——
根据最新规划,翰文府将打造2栋16-17F小高层,还有1F的沿街底商。其中:
1#号楼,总高16F,首层为架空层;
2#号楼,总高17F,首层及二层为架空层。

🌈南京北谷·翰文府售楼处电话☎️400-8787-098转接4444(专人接听)
🌈南京北谷·翰文府营销中心电话:☎️400-8787-098转4444【营销中心】
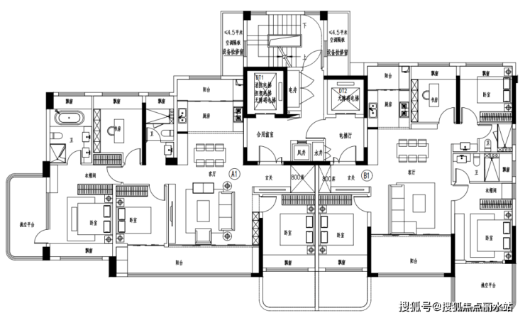
项目户型图——(最终以开发商公布为准)
最新消息,翰文府共有3种户型图,建面约135㎡(2种户型)、155㎡四房两厅两卫;
建面约155㎡4房2厅2卫A1(位于1、2号楼)
四开间朝南,三卧室朝南;
多飘窗设计,南北双阳台;
主卧套房连接超大露台,主卫配备浴缸、双台盆等。
建面约135㎡4房2厅2卫B1(位于2号楼)
三开间朝南,两卧室朝南;
主卧套房设计,同时连接超大露台;
南北次卧均有飘窗,北侧还可延伸空间,让空间利用最大化。
建面约135㎡4房2厅2卫C1(位于1号楼)
南向三开间、三卧室朝南;
客餐厅厨房一体,连通东侧大阳台设计;
主卧套房设计,带有主卫、衣帽间、大露台。

(注:户型示意图非最终稿,持续优化中)

(注:户型示意图非最终稿,持续优化中)
🌈南京北谷·翰文府售楼处电话☎️400-8787-098转接4444(专人接听)
🌈南京北谷·翰文府营销中心电话:☎️400-8787-098转4444【营销中心】
项目效果图——
从效果图上来看,翰文府首层带有部分底部商业,整体建筑立面为石材、铝板金属、大面积玻璃结合打造。



🌈南京北谷·翰文府售楼处电话☎️400-8787-098转接4444(专人接听)
🌈南京北谷·翰文府营销中心电话:☎️400-8787-098转4444【营销中心】
周边配套——
翰文府位于河西北&龙江南交界处,既能享受龙江老城区的烟火气,又能近距离接触河西新城的繁华。
北谷·翰文府航拍实景图
值得关注的是,项目周边有着十分显著的名校教育资源优势,紧邻金陵汇文学校;
距离地铁13号线乐山路站约700米(规划),距9号线江东门站不足800米(在建);
周边还有建邺吾悦广场、河西万达、金鹰世界等商业。
🌈南京北谷·翰文府售楼处电话☎️400-8787-098转接4444(专人接听)
🌈南京北谷·翰文府营销中心电话:☎️400-8787-098转4444【营销中心】
🌈温馨提示:拨打400电话,听到嘀声后,输入分机号4444即可!
声明:本文由入驻焦点开放平台的作者撰写,除焦点官方账号外,观点仅代表作者本人,不代表焦点立场。
