苏州晋墅(售楼处) 首页 - 晋墅销售中心 - 环境 - 户型 - 价格 - 地址 - 星和晋墅楼盘详情 - 配套 - 电话 - 交房时间 - 配套 - 电话 - 交房时间
扫描到手机,新闻随时看
扫一扫,用手机看文章
更加方便分享给朋友
🏡苏州晋墅售楼处电话:400-8787-098输入分机号4444【营销中心】
🏡苏州晋墅售楼处位置:400-8787-098输入分机号4444【官方电话】
🏡房价特价信息丨优惠政策丨详细解答丨在售房源丨在售户型图丨项目介绍丨周边配套丨VR看房丨楼盘图丨沙盘图丨位置图丨配套图丨售楼处地址丨足不出户丨销售1V1讲解 如有问题欢迎来电咨询,可预约销售人员,专业一对一热情服务,让您用专业眼光去买房
刚刚!
双湖全新一代顶豪项目
晋墅继约7000方会所+实景样板间公开之后
项目迎来最新消息
三批次房源马上加推
加推楼栋如下,位于30/42幢230/290/350㎡洋房和约400-450-520-700㎡别墅上新,想买的千万别错过!
晋墅所呈现的是一种与国际接轨的高级审美,来几张实景图感受一下——


🏡苏州晋墅售楼处电话:400-8787-098输入分机号4444【营销中心】
🏡苏州晋墅售楼处位置:400-8787-098输入分机号4444【官方电话】
晋墅首开实景都尚未出炉,其套均都要2000w+的56套洋房,却实现了100%的售罄,一举开创了今年苏州楼市的先河。二期房源也一并热销,仅剩几套洋房产品。可见市场对其的认可度有多高。
1、星合作为新加坡企业,一贯不执着于规模,但追求慢工出细活,在苏州已有多个豪宅样本,买房人认可度较高。
2、星合旗下,不止有做地产开发的星合置地,还有星合家居、晋合物业、星合商业、星合文化,做到了家居、物业、商业、文化领域的全覆盖——他的参考标往往是世界级度假酒店调性,这个实力是一般房企模仿不来的。

3、地段好、产品好,1.02超低容积率+双湖绝版地段湖景+新加坡顶奢血统,注定会掀起巨浪!
地段上,整个项目位于荣域花园西,出门即独墅湖和金鸡湖双湖的优越资源配套;这一片还是苏州名副其实的富人别墅区,10万+豪宅林立,真正出则繁华尽揽入则静谧独享。
🏡苏州晋墅售楼处电话:400-8787-098输入分机号4444【营销中心】
🏡苏州晋墅售楼处位置:400-8787-098输入分机号4444【官方电话】
产品上延续星合控股“酒店式住宅”基因,由新加坡SCDA建筑设计事务所、八荒设计(室内)、TROP(景观)三大顶级团队操刀,打造下沉式庭院会所、入户风雨连廊等,完全就是国际顶尖设计水准的即视感!
其中,会所占地约7000方,涵盖恒温游泳池、健身房、瑜伽房、羽毛球场、匹克球场、VIP棋牌、亲子阅读空间、儿童乐园等丰富业态。
🏡苏州晋墅售楼处电话:400-8787-098输入分机号4444【营销中心】
🏡苏州晋墅售楼处位置:400-8787-098输入分机号4444【官方电话】
建筑外立面由SCDA新加坡世界级建筑设计事务所操刀,用去风格化的永恒叙事风格打破传统建筑的刻板印象,非常国际范!
洋房立面效果图如下,以银白色为主色调,瓷纹釉面干挂陶板+用高精度铝合金型材+金属铝板格栅+大面积全落地高反水晶灰玻璃的组合!问鼎苏州豪宅序列TOP!
值得一提的是,均价18.9万/平的上海融创壹号院用的也是陶板立面。
🏡苏州晋墅售楼处电话:400-8787-098输入分机号4444【营销中心】
🏡苏州晋墅售楼处位置:400-8787-098输入分机号4444【官方电话】
室内装标更是豪到没朋友!嘉格纳+美诺+利勃海尔十件套,前所未见,问鼎双湖!
德国嘉格纳五件套:抽油烟机、燃气灶、洗碗机、蒸箱、烤箱;
德国美诺洗烘套装:洗衣机+烘干机;
瑞士利勃海尔三件套:冷藏室、冷冻室、专业酒柜;
户型方面也非常超前,以两款洋房户型为例——
230㎡4房3卫、超2米大进深阳台、新加坡经典全屋收纳、超大横厅、约5米面宽主卧、超90%得房率…
🏡苏州晋墅售楼处电话:400-8787-098输入分机号4444【营销中心】
🏡苏州晋墅售楼处位置:400-8787-098输入分机号4444【官方电话】
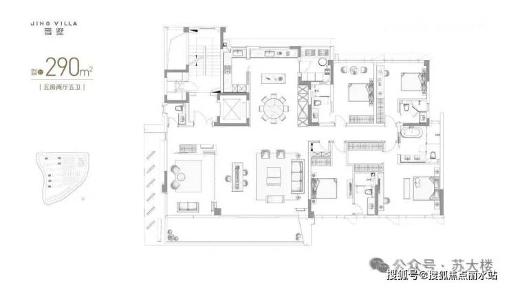
290㎡户型,拥有21米巨幕面宽,全屋5房5卫,4个套房+保姆房+半开放式书房;阳台面宽超11米,类露台使用体验;全屋得房率更是达到约90%!
🏡苏州晋墅售楼处电话:400-8787-098输入分机号4444【营销中心】
🏡苏州晋墅售楼处位置:400-8787-098输入分机号4444【官方电话】
全盘别墅仅约96套,建面约415-455-525㎡,全系大开间,二批次会拿出来14套。
层高非常优秀,首层达到3.8m,二层3.4m,三层3.9m(玫瑰园联排层高3.7-3.3-3.2m)。
🏡苏州晋墅售楼处电话:400-8787-098输入分机号4444【营销中心】
🏡苏州晋墅售楼处位置:400-8787-098输入分机号4444【官方电话】
🏡房价特价信息丨优惠政策丨详细解答丨在售房源丨在售户型图丨项目介绍丨周边配套丨VR看房丨楼盘图丨沙盘图丨位置图丨配套图丨售楼处地址丨足不出户丨销售1V1讲解 如有问题欢迎来电咨询,可预约销售人员,专业一对一热情服务,让您用专业眼光去买房
声明:本文由入驻焦点开放平台的作者撰写,除焦点官方账号外,观点仅代表作者本人,不代表焦点立场。
