全网热搜:苏州旭辉建管Z40号地块售楼处电话/ 旭辉建管Z40号地块在售户型图/ 苏州旭辉建管Z40号地块项目售楼处电话/地址
扫描到手机,新闻随时看
扫一扫,用手机看文章
更加方便分享给朋友
旭辉建管Z40号地块售楼处电话:400-8787-098接通后输入4444【售楼处位置】
旭辉建管Z40号地块售楼处电话:400-8787-098接通后输入4444【营销中心】
楼盘详情400-8787-098接通后输入4444(房价,价格,地址,户型图,交通,周边配套,备案价,楼盘详情,售楼处电话,售楼处地址,最新房源,最新价格,最新动态,最新进展等详情)
最新猛料!很多人都在盯的近园区旭辉别墅——旭辉建管Z40号地块终于要开啦!
项目位于大红盘四季听澜南侧,与湖西仅隔着一套星济隧道+星港街北延,是名副其实的近园区项目!
产品更是惊艳!容积率低至1.01,规划3F联排+4F叠墅的纯墅区,其中联排约220/260㎡、叠加约143/160㎡,仅276户。
户型也非常优秀,层高3.2-3.4米,院子约50-200㎡,并且可以定制围墙+门头;上下叠都有地下室、顶层有阳光房框架…赠送惊人!
公区方面,板块首座宋风纯墅区,配建高端会所,带高规格恒温泳池、私宴厅…
旭辉建管Z40号地块售楼处电话:400-8787-098接通后输入4444【售楼处位置】
旭辉建管Z40号地块售楼处电话:400-8787-098接通后输入4444【营销中心】
根据爆料:项目本周末将开放城市展厅,十一国庆开放临时售楼处,十月底开盘!
首开全联排+楼王楼栋,面积约202/260㎡;价格的话,参考四季听澜,联排预计700万起,叠加预计390万起。
(注:价格仅为猜测,具体以官方备案为准,不排除首开有优惠)
下面我们直接来看产品。
Z40号地块由旭辉建管代建,此前旭辉建管已经在相城落地了好几个创新产品,比如溪前雅居、四代宅蠡棠森屿等都是叫好又叫座!
轮到此次Z40号地块,同样值得期待。

旭辉建管Z40号地块售楼处电话:400-8787-098接通后输入4444【售楼处位置】
旭辉建管Z40号地块售楼处电话:400-8787-098接通后输入4444【营销中心】
首先业态上,联排+叠加的纯墅区规划,决定了圈层极致纯粹。
其次,产品上,打造当代新宋风美学院墅,自带高端会所,设置有泳池,私宴厅等配套;会所就在小区北大门,未来也是业主的归家大堂。
效果图,具体以实际交付为准
旭辉建管Z40号地块售楼处电话:400-8787-098接通后输入4444【售楼处位置】
旭辉建管Z40号地块售楼处电话:400-8787-098接通后输入4444【营销中心】
外立面延续传统宋式建筑的重檐、撺帘杆等元素,融入现代视觉手法,搭配大面积玻璃,豪宅感强烈!
效果图,具体以实际交付为准
旭辉建管Z40号地块售楼处电话:400-8787-098接通后输入4444【售楼处位置】
旭辉建管Z40号地块售楼处电话:400-8787-098接通后输入4444【营销中心】
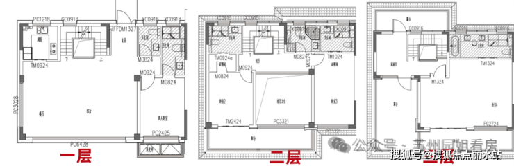
联排与下叠户型已经曝光,超多赠送空间,将产品价值发挥到极致!
先看联排边户,面积约260㎡,地上3层+地下1层设计;地下室挑高约5米;地上3层,5房6卫,且为全明卫;
赠送面积很多,包括花园、阳台、露台、挑空等部分;

屋顶甚至还预留了阳光房框架。

旭辉建管Z40号地块售楼处电话:400-8787-098接通后输入4444【售楼处位置】
旭辉建管Z40号地块售楼处电话:400-8787-098接通后输入4444【营销中心】
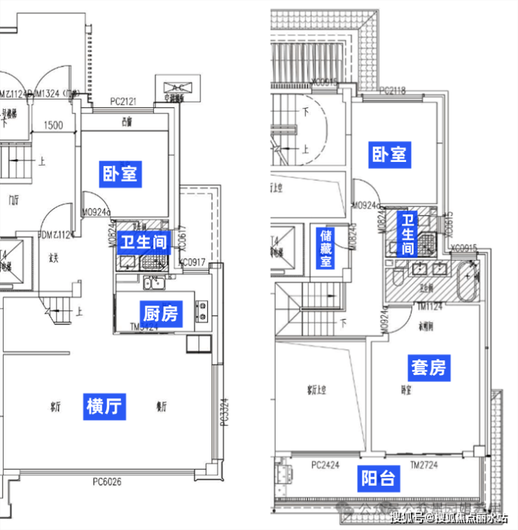
叠墅是4层真叠墅,分上下两叠,均带地下室,同样有大面积的挑空赠送!
目前仅公示了约160㎡下叠,经改造可做4房3卫。

旭辉建管Z40号地块售楼处电话:400-8787-098接通后输入4444【售楼处位置】
旭辉建管Z40号地块售楼处电话:400-8787-098接通后输入4444【营销中心】
项目地段上,位于相城太平街道,周边毗邻天然水系,坐拥多所优质学府,涵盖幼儿园至大学,已经形成一条完整而卓越的教育链。
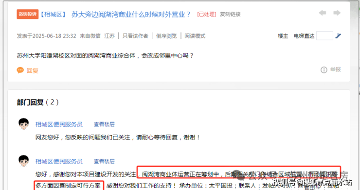
一路之隔的阅湖湾商业也传来好好消息,据官方回复,商业体运营正在筹划中,相关部门正结合区域位置、市场需求等制定可行方案!

旭辉建管Z40号地块售楼处电话:400-8787-098接通后输入4444【售楼处位置】
旭辉建管Z40号地块售楼处电话:400-8787-098接通后输入4444【营销中心】
交通条件更是优秀,区域内有多条快速路畅达各大核心区;近地铁8号线,6站直达湖东时代广场;

旭辉建管Z40号地块售楼处电话:400-8787-098接通后输入4444【售楼处位置】
旭辉建管Z40号地块售楼处电话:400-8787-098接通后输入4444【营销中心】
此外,约2个红绿灯即可进在建的星济隧道,预计2027年建成通车,这意味着等到项目交付,一脚油门即可直达湖西CBD,真正一步园区!
旭辉建管Z40号地块售楼处电话:400-8787-098接通后输入4444【售楼处位置】
旭辉建管Z40号地块售楼处电话:400-8787-098接通后输入4444【营销中心】
目前项目放风价:联排预计700万起,叠加预计390万起,还有超多附加值赠送~(注:价格仅为猜测,具体以官方备案为准)
这个价格,对比南侧千万总价的别墅组团,优势十分明显!地缘及园区外溢改善客户可以重点盯一下这个盘,热度不会低。
最新提醒!项目十月底就开盘了,首推202/260㎡联排,感兴趣的朋友可以趁着国庆去看看~
旭辉建管Z40号地块售楼处电话:400-8787-098接通后输入4444【售楼处位置】
旭辉建管Z40号地块售楼处电话:400-8787-098接通后输入4444【营销中心】
楼盘详情400-8787-098接通后输入4444(房价,价格,地址,户型图,交通,周边配套,备案价,楼盘详情,售楼处电话,售楼处地址,最新房源,最新价格,最新动态,最新进展等详情)
声明:本文由入驻焦点开放平台的作者撰写,除焦点官方账号外,观点仅代表作者本人,不代表焦点立场。
