项目简介@太原【太原山钢铭著】楼盘详情-首页网站-楼盘户型-售楼处电话

丽水楼市 2025-10-19 10:06:00
用手机看
扫描到手机,新闻随时看

扫一扫,用手机看文章
更加方便分享给朋友

太原山钢铭著☎️售楼中心热线:400-8787-098转接分机号6666【已认证】✨ ✨楼盘基本信息介绍,地址,户型,价格,位置,医疗教育,商业交通配套✨ ✨全网预约通道,来电预约即可享开发商内部团购优惠!✨

太原山钢铭著☎️售楼中心热线:400-8787-098转接分机号6666【已认证】✨

✨楼盘基本信息介绍,地址,户型,价格,位置,医疗教育,商业交通配套✨

✨全网预约通道,来电预约即可享开发商内部团购优惠!✨

千亿国企山钢 铭著科技人居

【基础信息】

仅合作:1#,2#,3#,7#,8#号楼

项目名称:山钢铭著

项目备案名:山钢龙城一品

开发商:山西莱钢绿建置业有限公司

物业管理公司:山东信莱物业管理有限公司

占地面积:13万方

建筑面积:48.37万方

容积率:3.45

绿化率:35%

总户数:2758

规模:总占地195亩

项目规划:分南北两区开发,北区8栋,南区13栋

建筑风格:德国包豪斯现代主义

产品类型:洋房 小高层 高层

车位比例:1:1.13

户型区间:建面约83-148平米

首付比例:20%

公摊:17%-28%

交房时间:1#8#2023年12月31日

2#3#7# 2024年7月20日

交付标准:精装交房

产权年限:70年

价格:一房一价

【项目介绍】

山钢铭著,位于太原南城正核心——龙城大街。项目西邻地铁2号线嘉节站和公交维保站,出行通畅快捷;北望龙城公园,是南城最大的市立公园;往东不远处是太原新五中,全省升学率前三;周边山西白求恩医院,是全省规模最大、功能最全、标准最高的现代化综合医院。

承袭山钢集团绿色科技基因,山钢铭著以钢结构装配式建筑,为城市带来智慧健康人居。项目建筑采用钢框架——中心支撑结构体系,工程施工速度快、精度高、高效节约资源,且具有“安全”“抗震” ″毫米级智造 ″3大核心优势。

山钢铭著设计建面约83-148㎡户型产品,以适幼级健康标准打造“恒温、恒湿、恒氧、恒洁、恒静”的五恒科技系统,让室内四季如春、湿润不燥、无尘、无噪音。此外,室内还配备智能家居控制系统,智能灯光、智能窗帘等设备设施。

山钢铭著实体精装样板间已经对外开放,精装标准为1800-2200元/㎡,目前成交均价14200元/㎡。

【自身配套】

教育配套:

配备有幼儿园(签约童乐幼儿园)小学和初中,九年一贯制教育服务,开学在即(出校门就是家门,解决父母接送孩子上下学的烦恼,每天多睡半小时)

商业配套:配有4.4万平米高端休闲社区商业

【园林配套】:根据不同主题分别布置童梦乐园、多功能康体设施,雨水花园、户外会客厅、艺术长廊等分区。

【周边配套】

商业配套:北美N1、北美新天地、天美新天地、茂业百货、王府井、美特好超市

公园配套:龙城公园(直线距离300米)

医院配套:山西白求恩医院、(直线距离一公里)中铁十七局医院(直线距离2公里)

学校配套:

小学和初中:自建,等待签约文件

初中:太原新五中,太原市第三实验小学等名校

交通配套:地铁2号线、太原南站、武宿机场56路、906路、 877路、13路

【山钢铭著价值点】

1.国企背景,隶属于山东省国资委独资直管

2.山西第一个钢结构装配式智能精装体系

3.山西首个五恒科技住区——恒湿、恒温、恒氧、恒洁、恒静

4.紧邻地铁,2号线嘉节站距本项目仅200余米

5.太原新五中(学区),直线距离2公里

6.公园环抱,距南城最大的公园——龙城公园仅300余米

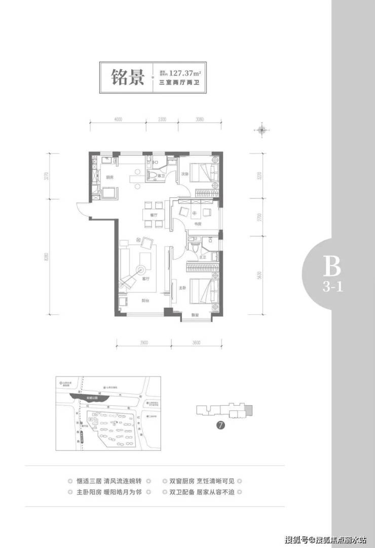
【户型图】

建面约104.48-148.25㎡

三室两厅两卫

建面约140.65-147.5㎡

四室两厅两卫

太原山钢铭著☎️售楼中心热线:400-8787-098转接分机号6666【已认证】✨

✨楼盘基本信息介绍,地址,户型,价格,位置,医疗教育,商业交通配套✨

✨全网预约通道,来电预约即可享开发商内部团购优惠!✨

声明:本文由入驻焦点开放平台的作者撰写,除焦点官方账号外,观点仅代表作者本人,不代表焦点立场。