2025最新资讯-苏州【天麒澜轩】售楼部电话-最新动态-天麒澜轩户型面积/房价-配套
扫描到手机,新闻随时看
扫一扫,用手机看文章
更加方便分享给朋友
🌈苏州天麒澜轩售楼处电话☎️400-8787-098转接4444(专人接听)
🌈苏州天麒澜轩营销中心电话:☎️400-8787-098转4444【营销中心】
🌈温馨提示:拨打400电话,听到嘀声后,输入分机号4444即可!
同年9月底规划出炉!容积率2.0,拟建14幢13-17F小高层,其中13F的只有一幢,大部分是17F。
总套数833套,体量不小;户型面积段首次曝光,主力建面约110m²、120m²、138m²3大户型。
图源“苏高新集团”,2024年12月发布
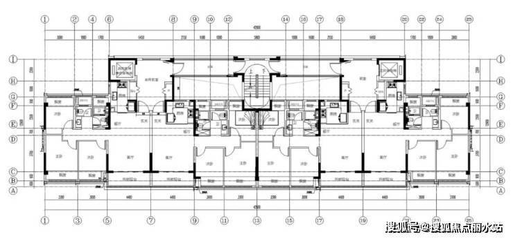
正式户型图暂未出炉!此前规划公示了2#标准层平面图如下,2梯4户,层高达到约3.1米。
户型设计非常有意思,3房+1.5卫,双马桶配置,十分罕见;
餐客厅开间约4.4米,主卧开间约3.3米,其余次卧开间约3米,加上3个大飘窗赠送,提高得房率的同时大大增加采光;
朝南约4.4米开敞阳台,加上约3.1米层高,整个户型的尺度感非常在线。
根据拍地要求,地块内住宅户型面积不小于100平方米,装标不低于1500元/㎡。
值得一提的是,天麒澜轩近期还成功入选了苏州市智能建造试点项目。
未来将为业主带来更智能、便捷、安全的居住体验,引流居住新潮流!

天麒澜轩位于高新区浒墅关经开区(镇)羊柯柜路西、王宴岭路南,西侧即苏州体育训练基地,北侧近有轨电车1号线。

🌈苏州天麒澜轩售楼处电话☎️400-8787-098转接4444(专人接听)
🌈苏州天麒澜轩营销中心电话:☎️400-8787-098转4444【营销中心】
🌈温馨提示:拨打400电话,听到嘀声后,输入分机号4444即可!
声明:本文由入驻焦点开放平台的作者撰写,除焦点官方账号外,观点仅代表作者本人,不代表焦点立场。
