星河·湖西源启售楼处电话→星河·湖西源启售楼中心首页网站→星河·湖西源启楼盘百科详情→24小时电话
扫描到手机,新闻随时看
扫一扫,用手机看文章
更加方便分享给朋友
星河·湖西源启售楼处电话:400-8787-098转分机号5678【售楼处位置】
星河·湖西源启售楼处电话:400-8787-098转分机号5678【营销中心】
星河·湖西源启楼盘详情4008787098-转分机号5678(房价,价格,地址,户型图,交通,周边配套,备案价,楼盘详情,售楼处电话,售楼处地址,最新房源,最新价格,最新动态,最新进展等详情)
独墅湖西星河Z13地块项目案名正式曝光!就叫星河·湖西源启!
项目位于独墅湖西核芯地段,容积率仅1.25,拟建22栋4F叠加+2栋11F四代宅洋房,其中洋房约143㎡,叠加约167/188㎡。
产品也相当惊艳,配有下沉式会所庭院,四代宅采用首层架空设计,下叠配有地下室,并通过多连廊贯穿,实现无风雨归家等等。
项目预计最快1月底首开,价格的话,可以参考附近龙湖九里璟园洋房3.2w,地缘及近园区改善客户可以提前准备起来了!
售楼处电话400-8787-098接通后输入5678【营销中心】
星河·湖西源启,前身为苏地2025-WG-Z13号地块。
今年7月土拍中,苏州星鸿(星河&天鸿伟业)以总价约6.72亿竞得,成交楼面价14400元/㎡。

容积率仅1.25,是郭巷难得低密地块;根据规划,拟建24幢住宅,包括22栋4F叠加+2栋11F洋房!其中洋房为四代宅。
鸟瞰效果图,以实际交付为准

根据总平面,分别在东、西、北三侧设置有出入口;北侧林家潭路是主出入口。
更加惊喜的是,项目所有楼栋首层全架空设计,其中叠加首层“地上架空车库”,洋房首层架空打造多功能主题泛会所,强化社区功能。
并且打造多连廊贯穿,真正实现无风雨归家!


规划平面图,以实际交付为准
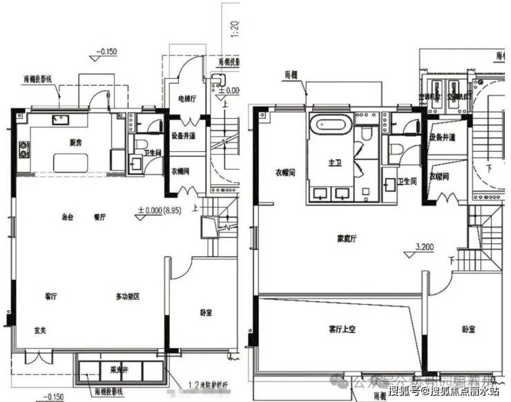
户型同步公示!据爆料,叠加建面约160-180㎡,洋房建面约141㎡,都是改善大户型。
洋房建面约143㎡4房2卫,4开间朝南,整体南向开间约14.5米,客厅开间约5m,主卧套房,北向生活阳台,分奇、偶数层,区别主要在于空中庭院。

户型过程稿,以最终官方公示为准
7#为4F叠加,下叠建面约180㎡左右,南北双入户,6.7m超大方厅,全卧室朝南设计;二层挑空赠送面积超大。
户型过程稿,以最终官方公示为准
另据拍地要求:洋房装修交付,装标不低于2000元/㎡。

星河·湖西源启位于吴中区郭巷街道林家潭路南侧、通达路东侧,就在龙湖·九里璟园南侧。
地铁位置不错,出门7号线,正宗地铁盘;附近有郭巷实小、苏大附属尹山湖中学等;商业依赖尹山湖的歌林公园等,地铁6站可达苏州中心。
区位示意图
根据官方规划,该地块南侧还有一宗拟出让宅地,未来居住氛围会更加浓厚。
再往南侧是即将重磅升级的郭巷老街片区,打造集文化、休闲、运动、商业等多元业态于一体的文旅街区,势必将带动周边区域的高质量发展。
星河·湖西源启售楼处电话:400-8787-098转分机号5678【售楼处位置】
星河·湖西源启售楼处电话:400-8787-098转分机号5678【营销中心】
星河·湖西源启楼盘详情4008787098-转分机号5678(房价,价格,地址,户型图,交通,周边配套,备案价,楼盘详情,售楼处电话,售楼处地址,最新房源,最新价格,最新动态,最新进展等详情)
声明:本文由入驻焦点开放平台的作者撰写,除焦点官方账号外,观点仅代表作者本人,不代表焦点立场。
