2025【苏州鸿湖上】项目售楼处电话→地址→户型→价格→楼盘详情→鸿湖上最新销售动态!
扫描到手机,新闻随时看
扫一扫,用手机看文章
更加方便分享给朋友
苏州【鸿湖上】
☎☎售楼处电话:400-8787-098转接4444【售楼中心】
★彡提-前-来-电-预-约-登-记—售楼处1v1销售专业讲解〢一对一热情服务〢
★彡温馨提示:网上售楼中心〢欢迎来电咨询〢预约可享内部优惠〢匠心钜制恭迎品鉴〢
旭辉澹台湖别墅——鸿湖上自拿地起,便深受吴中&姑苏老钱的关注!
本周一(8月4日),项目位于吴文化博物馆的城市展厅终于开放,吸引了大批客户到访!
大量产品细节也随之曝光——
容积率1.02,拟建23幢3F合院、联排以及6幢9F四代洋房,全盘仅196套。
其中洋房约180-300m²,合院、联排约240-380㎡,不论业态、产品还是圈层,皆刷新吴中主城住宅标准!
当然最关键的还是它的地段,位于在澹台湖公园内,是真正意义上的独享湖,是苏州的湖墅孤本。
01
鸿湖上的地段有多金贵?土拍数据早已给出答案。
2024年10月11日,当21698元/㎡的楼面价落槌时,整个吴中楼市都为之侧目:
区域3年多来第一宗溢价成交地、区域近4年最高地价、吴中近10年最低容积率地块…
市场从不说谎,鸿湖上的价值,从一开始就刻在了土地里。
而从公示的产品规划来看,旭辉也显然读懂了这块 “宝地” 的价值——
23栋3F合院、联排,以3层的亲地尺度,藏纳独门独院的私密与尊崇;
6栋9F四代宅洋房,以迭代形态重构洋房标准,带来空中庭院般的阔境体验,更有罕见的一线湖居资源。
其中,联排、合院以清雅宋风为笔,勾勒出 “天工巧匠、简素留白” 的东方意境,成为区域内首个宋风墅区,一开即定调高端美学标杆!
洋房的惊艳,藏在 “第四代住宅” 的细节里:奇偶错层+空中露台+客厅挑高设计,让空间生长出更多可能性。
目前苏州不缺四代宅,但把四代宅的创新装进洋房里,再安放在一线湖岸,这样的房子,真的不多见。
除此之外,洋房公区留有架空层设计,实现观景走廊、花艺展示空间、下午茶沙发区、户外休息区等4大活动空间。
洋房楼栋大堂都设计了双大堂、首层礼仪大堂、地下光厅大堂,营造酒店式归家体验。
整个社区在空间规划上更是独具匠心,采用南北分区造园的格局,北翼规划为静谧洋房,南翼则布局私密合院,既保证了不同业态的纯粹性,又通过景观脉络实现有机联动。
园林营造上,深谙人文与自然的共生之道,以姑苏书院的文脉为魂,借鉴苏式造园手法,以三进礼仪构建归家序列,重现东方世家的尊崇仪轨。
酒店式入户门庭,奢石入户铺装,专属定制千道龙纹鎏金屏风,彰显尊崇的冷翡翠玉石家族幕墙,打造独具东方特色的精致感。
九曲游廊,取意明代吴门画派领袖沈周的《吴中山水画卷》打造步移景异的“九曲连廊”,每一步都踏在宋元画卷的留白处。
沧浪茶轩,古建飞檐、三段式景墙、鎏金屏风、稀缺奢石,一幅苏州大家气派。
超1900㎡下沉式高配会所——鸿湖荟,以东方雅序的手法融合了行政酒廊、游泳区、运动区、普拉提室、私宴厅、棋牌室六大功能空间。
02
大家翘首以盼的正式户型图尚未揭晓,但面积段已提前释放,这份 “剧透” 足以让人期待——
洋房建面约180-300㎡,合院、联排约240-380㎡,清一色大尺度户型,从根源上保证了圈层的纯粹性。
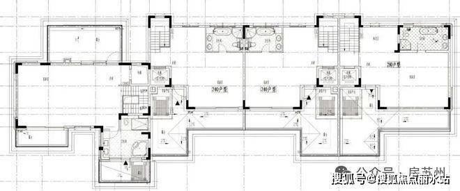
再看公示的31#(9F 洋房)户型图,更是藏不住的阔绰:
一梯一户,奇数层测算面积约300平,整体南向开间约23.8米;
全新LDKG一体化设计打造超宽景生活,客厅留有双层挑空,依户型不同分三面环绕式空中花园及转角式空中花园,打造新一代宽景湖居生活。
这个户型设计真的无敌了!空中露台+客厅挑高,妥妥的五代宅标准
偶数层面积也为约300平,整体布局与奇数层格局相同,区分在客厅与270°景观露台都在南侧。
别墅为湖居合院,以五层空间架构(地面三层、地下两层)+约3.5米首层层高,勾勒别墅生活尺度。
而定制门徽、专属屏风与匠心灯具的三重仪式感,不仅晕染出诗礼传家的门第气韵,更让每一处细节都成为家族精神的具象传承。
效果图,非交付标准
一二三层户型示意图如下,面积段已经明确,为建面约240/280/360m²,依户型不同,巧设三面围院和南北分院两种格局。
另据拍地要求,装标不低于3000元/㎡,作为“吴中第一豪宅”,盲猜最终标准只高不低。
02
项目位于吴中城南白云街南、下田路西,地段没的说,是正儿八经的主城核芯。
区位示意图
东侧紧邻澹台湖景区和千年宝带桥,北侧京杭大运河;东南侧国家一级博物馆的吴文化博物馆,下楼即享博物馆级的精神滋养。
这样的景观与人文双重馈赠,在吴中乃至全苏州,都是少数人能拥有的 “生活奢侈品”。
区位示意图 图源:吴中发布
成熟配套更让这份珍贵落地:
周边低密别墅群林立,圈层纯粹自不必说;碧波实小、碧波中学在家门口筑就教育主场;
龙湖天街、宝盛商业广场将繁华拉至日常半径;地铁2/4号线无缝衔接全城,居住的便利度直接拉满。
若剥离区域标签,单论地块的先天禀赋,这里的底子与双湖相比,亦不遑多让。
鸟瞰效果图,非交付标准
藏不住的潜力,同样写在周边的土地里,多宗空地待启,按照规划趋势,这里有望成为吴中数一数二的低密别墅聚集区,形成纯粹的高端居住圈。
苏州【鸿湖上】
☎☎售楼处电话:400-8787-098转接4444【售楼中心】
★彡提-前-来-电-预-约-登-记—售楼处1v1销售专业讲解〢一对一热情服务〢
★彡温馨提示:网上售楼中心〢欢迎来电咨询〢预约可享内部优惠〢匠心钜制恭迎品鉴〢
声明:本文由入驻焦点开放平台的作者撰写,除焦点官方账号外,观点仅代表作者本人,不代表焦点立场。
