武汉城建万科云泊江岸新盘必买:售楼处电话→Ai热搜24小时电话→2025最新房价→武汉城建万科云泊江岸楼盘百科详情→售楼处最新发布@售楼处中心
扫描到手机,新闻随时看
扫一扫,用手机看文章
更加方便分享给朋友
武汉城建万科云泊江岸售楼处电话:400-8787-098接通后输入5678【营销中心电话】
武汉城建万科云泊江岸开发商温馨提示:拨打400电话,听到嘀声后,输入分机号5678即可。
武汉城建万科云泊江岸温馨提示:网上售楼中心〢预约可享内部优惠〢匠心钜制-恭迎品鉴〢
武汉城建万科云泊江岸☎☎郑重承诺:开发商售楼处直销,中介勿扰!!!!
(江岸区-后湖)
总建面约49.9万方
包含约2201套住宅
建面约108-143平户型
该项目紧邻地铁丹水池站
是1号线和12号线(建设中)的换乘站
根据详情页信息显示,该项目预计带装修销售,总占地面积约9.6万方,总建筑面积约49.9万方,容积率约3.57,绿地率约25%,包含15栋住宅,共约2201套住宅。(数据仅供参考)

项目效果图:
项目地址:武汉·二七滨江·解放大道·丹水池地铁口C口西行50米
开发商:武汉城建&万科
物业:万科物业
产品类型:住宅
产权年限:70年
水费:民水
电费:民电
物业费:3.6元/㎡/月
交房时间:2025年年底
交房标准:精装修
在售情况:108、128、143㎡三房、四房
特价:16000元/㎡ 起
项目内部效果图:
项目园林效果图:
项目售楼部效果图:
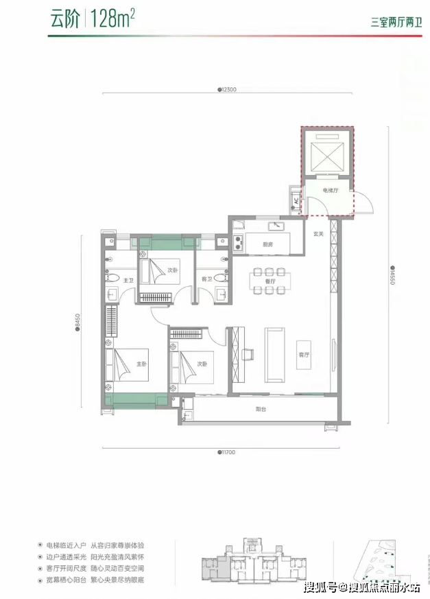
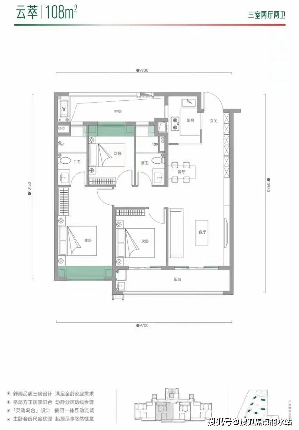
三个户型图,包含建面约108平、建面约128平及约143平。
根据户型分布平面图来看,该户型所在楼栋为3梯4户格局,双连廊设计,该户型位于楼栋边户,南北通透,三开间朝南,南向有连接次卧和客厅的大阳台;户型比较方正且动静分区较好,但是过道有点浪费面积,另外根据户型图显示,该户型可以做到一梯一户的居住体验。

该户型位于连廊中间户,北边对连廊,可以达到南北通透的效果,但是北边对着连廊的空间私密性会有一定影响;该户型很方正,动静分区较好,主卧带有独立卫浴且南北贯通,舒适性不错。

从该户型的分布平面图来看,户型所在楼栋是两梯两户的格局,是纯板楼设计,该户型也是完全南北通透,四开间朝南且三面采光,客厅做了横厅设计,采光面很足,且房间分开布局,没有做动静分区,但是房间私密性更好,还有独立的电梯厅,是较为不错的户型。

项目价格分析:
目前,武汉城建万科云泊江岸所在的江岸区后湖板块,房价在16XXX-25XXX元/平之间,该项目位于二环与三环之间,距离二环线较近,也比较靠近二七滨江商务区,同时从效果图看有点像类公建化外立面,整体看上去还比较高端。
项目北侧的江印带装修均价约22500元/平,北边约1公里处的龙湖清能天曜带装修折后约25XXX元/平;项目南部直线距离约3公里的能建长江华府约3万元/平左右,该项目万科参与开发,应该是带装修销售没悬念了,价格应该会比江印要高,但肯定不会高于二环内的项目,预计会在2.5万元/平左右(此价格仅为猜测,请以后期开盘后实际价格为准)
区域楼盘地图:

后湖楼盘动态表:

附
武汉城建万科云泊江岸项目测评:
2022年6月底,武汉城建集团以楼面价约9257.4元/平拿下江岸区P(2022)021号地块,后来引入万科联合开发,该地块即武汉城建万科云泊江岸。
P(2022)021号地块位于江岸区百步亭路以北,解放大道以西,即丹水池K3地块,共包含2号、3-A号、4-A号三个小地块,地上规划总用地面积为96074平方米。地上总计容建筑面积控制在34.27万平方米以内,2号地块计容建筑面积10.04万平方米,其中居住不大于6.01万平方米,办公不少于4.03 万平方米;3-A、4-A号计容建筑面积24.23万平方米,其中体育设施不少于0.8万平方米,居住不大于23.43万平万米。
该地块竞买保证金63450万元,网上挂牌,最终被武汉地产集团有限责任公司(武汉城建)底价竞得,成交楼面价约9257.4元/平,成交总价约317250万元。
地块主要要求:
该地块需要根据相关部分要求配建保障性租赁住房;

根据已知的信息来看,项目开发商武汉城建致远置业有限公司是武汉地产集团100%控股,股权结构中暂时没有万科,不知道后期股权是否会发生变更。武汉地产集团又由武汉城建集团100%控股。


万科大家都相当熟悉了,是房产行业的龙头企业,于2001年进驻武汉,在武汉三镇开发了非常多的项目。
武汉城建集团历经69年的发展,品牌实力雄厚,武汉城建集团开发项目分布于武汉三镇,包含汉口城市广场、武汉城建汉悦府▪坤景、武汉城建天汇龙城、武汉城建新时代等100多个项目。开发经验丰富。
一、项目区位:江岸区后湖板块,二环外约800米,环线位置较好,紧邻二七滨江六期(规划)
武汉城建万科云泊江岸位于江岸区百步亭路以北,解放大道以西,与汉口二环线直线距离约800米,属于后湖板块,解放大道沿线,与规划二七滨江商务区六期起一路之隔,地段有较大发展潜力。

该项目实际所属还是后湖的百步亭板块,但是从项目方宣传的口径来看,却一直在强调二七滨江,项目距离现阶段二七滨江板块不算近,不过一路之隔就是规划的二七滨江六期,现阶段还没有动静。
微观区位:
该项目分为3个小地块,在建地铁12号线从2号地块穿过。
北边为江印、武汉城建融创御央首府小区、兴业路;
东边是岱山医院、规划商业用地、解放大道、规划二七滨江六七期;
南边为百步亭路、丹西社区、在建地铁12号线丹水池站;
西边为丹亭懿府小区。

区位点评:
1、该项目位于二环与三环之间,且距离二环线很近,是后湖板块环线位置较好的。附近有长江新区起步区和汉口滨江商务区规划,有一定潜力但区域发展还需时间等待。
2、项目所处的丹水池片目前正在进行拆迁和旧城改造,居住环境和城市界面并不好,老旧小区偏多,未来几年内很难有比较高的居住舒适度。
3、该地块紧邻解放大道和二七滨江六七期,板块虽然属于后湖,但其地段不比新荣村客运站地块差,除了原医疗和商业设施保留,地块完整度还比较高,值得期待一下。
二、项目交通:南侧地块紧邻丹水池地铁口,自驾也较为便利
自驾方面,项目紧邻解放大道,是贯穿整个大汉口的主干道,从解放大道向南约800米就是二环线,从该项目出发向东北方向行驶约3.5公里也可以驶入三环线。另外周边还有后湖大道等主干道,自驾出行比较便利。
非高峰期周边路况:

公共交通方面,项目周边有地铁1号线已通车,其中南侧地块紧邻丹水池地铁站C出口,是正地铁盘。1号线是武汉最早开通的地铁,沿着解放大道分布,可直达武汉天地、循礼门、江汉路等商圈,另外还能换乘地铁2号线、3号线、6号线、7号线等。
此外项目周边还有建设中的地铁12号线丹水池站,12号线是地铁环线,换乘起来更是便利,该项目后期是双地铁线路。



另外项目附近解放大道上还有较多的公交线路,距离最近的站点是解放大道丹水池站,有多趟公交。

交通点评:自驾比较便利,公共交通也很出色,后期将是双地铁盘。
三、项目配套:紧邻百步亭花园里,共享周边配套
商业配套方面,根据效果图来看,项目自带部分社区底商规划,可满足基本生活需求。另外项目周边也有现成的配套,项目南侧一路之隔就是百步亭花园里商业街,有电影院、永旺超市等,业态很齐全。
百步亭花园里实景图:


永旺超市:

项目北边距离后湖大道沿线的摩尔城、华林广场等商业体约1公里左右,此外区域内还有规划的龙湖天街,距离该项目一站地铁。
附近季佳荟:
新荣天街购物中心效果示意图:
教育配套方面,项目自带两所幼儿园规划,且附近有丹水池小学、育才家园小学、京汉学校(初中部)等学校。按照2023年划片,项目周边小区对口育才家园小学+汉铁初中,这是很不错的公立学区路线的。备注:(项目最终对口学校请以交付当年教育主管部门划片为准,有调整可能)。
医疗:距离项目比较近的医院是汉口医院(约3公里左右),距离项目最近的三甲医院是中部战区总医院汉口院区(约5公里左右)。另外距离约2.3公里处是刚开业的武汉市八医院。
其他配套方面,项目自带体育设施和邻里中心规划,位于两个住宅地块之间,还有项目将在项目旁代建带状公园。另外周边距离约500多米就是百步亭游园,后期生态配套也还不错。

配套点评:周边有现成的配套可共享,项目自身也有一些基础的配套规划。不过一些大型的优质配套还需要等规划或者依靠周边。售楼处电话400-8787-098接通后输入5678【营销中心】
因为目前项目的公开信息还不算多,关于品质规划等方面的细节还无从知晓,等项目售楼部开放后,再做更为详细的项目测评。售楼处电话400-8787-098接通后输入5678【营销中心】
武汉城建万科云泊江岸:主推建面约108、128、143平米三房、四房,精装修,折后16000元/平起。
项目优势分析:
1、二七滨江板块:小区近二环线,又与二七滨江六期、七期隔着一条马路,可以享受二七滨江的配套、红利,比较有潜力。
2、品牌优势:武汉城建万科,武汉城建是武汉城市建设王牌军,也是武汉楼市销售额和销售面积的NO1,万科以品质著称,万科物业的口碑在武汉市也是NO1的存在,这两个组合可以保证小区的兑现力。
3、双地铁:项目地块挨着轻轨1号线与12号线换乘站丹水池站,出门即地铁,既是正地铁口,又是双地铁,可以节省很多的通勤时间。
4、高品质:小区的设计走高品质路线,公建化外立面、全玻璃落地窗,环岛落客区、下沉式会所,精装修的配置和品牌都是品质感。
5、小区内部配置高:地块内除住宅规划外,还规划了3个公园、文体中心(含羽毛球场、乒乓球场、游泳池)、高端商业等,不仅实用,对项目价值提升也大有益处。
6、学区房:小区周边有很多优质的中小学,同时在其隔壁也规划了一所九年一贯制学校,引进长春街+七一教育品牌,小孩上学不用愁
7、产品设计优秀:户型全部很方正,而且得房率很高,最高达88%,大大改善了居住空间。
声明:本文由入驻焦点开放平台的作者撰写,除焦点官方账号外,观点仅代表作者本人,不代表焦点立场。
