苏州绿城凤栖东方(售楼处) 首页 -绿城凤栖东方 销售中心 - 环境 - 户型 - 价格 - 地址 - 楼盘详情 - 配套 - 电话 - 交房时间 - 配套 - 电话 - 交房时间
扫描到手机,新闻随时看
扫一扫,用手机看文章
更加方便分享给朋友
🏡苏州绿城凤栖东方售楼处电话:400-8787-098输入分机号4444【营销中心】
🏡苏州绿城凤栖东方售楼处位置:400-8787-098输入分机号4444【官方电话】
🏡房价特价信息丨优惠政策丨详细解答丨在售房源丨在售户型图丨项目介绍丨周边配套丨VR看房丨楼盘图丨沙盘图丨位置图丨配套图丨售楼处地址丨足不出户丨销售1V1讲解 如有问题欢迎来电咨询,可预约销售人员,专业一对一热情服务,让您用专业眼光去买房
占据一线独墅湖景,地块东侧为独墅湖,南侧正面独墅湖市政公园,属于独墅湖西岸沿线仅剩的为数不多的沿湖景观地块。
周围以低密墅区为主,北侧紧靠正荣国领小区,西侧一路之隔为泰禾金尊府。
根据规划公示显示,产品也是十分稀缺,该占地面积约2.6万㎡,地块容积率仅1.02,是板块稀缺的低密别墅地块,且含商业,其住宅更低密。
拟建16幢住宅,其中13幢为3F联排;3幢5F叠加,超大的尺度空间,期待值直接拉满。
🏡苏州绿城凤栖东方售楼处电话:400-8787-098输入分机号4444【营销中心】
🏡苏州绿城凤栖东方售楼处位置:400-8787-098输入分机号4444【官方电话】
叠加产品为5F,下叠为1-2层,上叠为3-4-5层,且层层递进式露台,上叠顶层还有整层露台空间设计,使用率相当高。
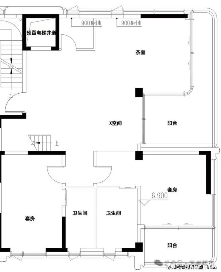
叠加户型方面,根据14#3层的平面图来看,分为中间户,和边户,两个面积,并且上叠首层为静区,与下叠2F静区相连,互不打扰。
上叠,三开间朝南,三个套房,其中南向两个套房,主卧套房连接南向阳台。
🏡苏州绿城凤栖东方售楼处电话:400-8787-098输入分机号4444【营销中心】
🏡苏州绿城凤栖东方售楼处位置:400-8787-098输入分机号4444【官方电话】
上叠东边户,四开间朝南,南向双套房,主卧套房连接阳台,此外,为东侧瞰湖预留了独立阳台,侧边阳台大大提高了室内采光和与自然的接触度。
🏡苏州绿城凤栖东方售楼处电话:400-8787-098输入分机号4444【营销中心】
🏡苏州绿城凤栖东方售楼处位置:400-8787-098输入分机号4444【官方电话】
联排为3F,根据8#公示的平面图来看,分为中间户和边户两个户型。2层带阳台,3层带大露台,全套房设计,实现家庭平权。
根据出让要求,300㎡≤商业建筑面积≤500㎡,住宅总层数6层以上的需装修交付,装标不低于3000元/㎡,总户数不大于200户。
土拍回顾——
独墅湖西商住用地,由瀚泽和发、河南泛悦底价拿下,成交总价4.87亿元,成交楼面价17901元/㎡。
🏡苏州绿城凤栖东方售楼处电话:400-8787-098输入分机号4444【营销中心】
🏡苏州绿城凤栖东方售楼处位置:400-8787-098输入分机号4444【官方电话】
除了生态景观资源之外,地块周边配套齐全,能满足日常生活所需。
交通配套方面:地块南侧100米即为轨交2号线独墅湖南站,北侧独墅湖南隧道已经通车,无论公共交通还是自驾都非常便利!
教育配套方面:尹山湖实验小学,苏大附属尹山湖中学,教育资源相对一般。
商业配套方面:尹山湖商业广场、长申购物广场、歌林公园等,可满足日常生活,同时距苏州中心仅15分钟车程。
🏡苏州绿城凤栖东方售楼处电话:400-8787-098输入分机号4444【营销中心】
🏡苏州绿城凤栖东方售楼处位置:400-8787-098输入分机号4444【官方电话】
🏡房价特价信息丨优惠政策丨详细解答丨在售房源丨在售户型图丨项目介绍丨周边配套丨VR看房丨楼盘图丨沙盘图丨位置图丨配套图丨售楼处地址丨足不出户丨销售1V1讲解 如有问题欢迎来电咨询,可预约销售人员,专业一对一热情服务,让您用专业眼光去买房
声明:本文由入驻焦点开放平台的作者撰写,除焦点官方账号外,观点仅代表作者本人,不代表焦点立场。
