全网热搜:绍兴元垄·泓庐售楼处电话/ 元垄·泓庐在售户型图/ 绍兴元垄·泓庐项目售楼处电话/地址
扫描到手机,新闻随时看
扫一扫,用手机看文章
更加方便分享给朋友
元垄·泓庐售楼处电话:400-8787-098接通后输入4444【售楼处位置】
元垄·泓庐售楼处电话:400-8787-098接通后输入4444【营销中心】
楼盘详情400-8787-098接通后输入4444(房价,价格,地址,户型图,交通,周边配套,备案价,楼盘详情,售楼处电话,售楼处地址,最新房源,最新价格,最新动态,最新进展等详情)
绍兴改善置业“窗口期”,又一低密项目,规划公示!
近日,绍兴市自然资源和规划局发布了《越城区DHP-01-A-03-05地块(则水牌A8地块)建设项目方案规划公示》。
该项目,就是绍兴曾经的“地王”(原祥生则水牌7-2地块),现在的元垄·泓庐项目。

元垄·泓庐售楼处电话:400-8787-098接通后输入4444【售楼处位置】
元垄·泓庐售楼处电话:400-8787-098接通后输入4444【营销中心】
元垄·泓庐位于迪荡北,平江北路以西,棠颂和鸣院以南。

区位图 仅供参考
元垄·泓庐售楼处电话:400-8787-098接通后输入4444【售楼处位置】
元垄·泓庐售楼处电话:400-8787-098接通后输入4444【营销中心】
项目东、南、西三面环水,自然条件优越。
1.5公里内,坐拥有越东路高架、山会高架两条高架路。
周边还有旭辉CMALL、绍兴市人民医院、市妇保院、绍兴市妇幼保健医院、蔬果批发市场、凤林小学等配套,可以说是集合了城市资源和自然资源于一身。
目前,泓庐所在片区内,在售低密产品库存已经不多,项目此时出炉,也为有意在该片区置业的购房者提供一个新的选择。
元垄·泓庐效果图
值得一提的是,泓庐的拿地价仅约 8139 元/㎡,相比一路之隔的棠颂和鸣院(拿地楼面价20524元/㎡,封顶总价+1.26万㎡配建)低了不少。
更低的拿地成本价,也为后期售卖赢得了更多先机。
元垄·泓庐售楼处电话:400-8787-098接通后输入4444【售楼处位置】
元垄·泓庐售楼处电话:400-8787-098接通后输入4444【营销中心】
根据规划,元垄·泓庐项目的容积率仅约1.02,拟建8幢8F的洋房、53幢3F层的排屋。
具体规划如下:1-47#、49-54# 为排屋,56-63# 为洋房。
元垄·泓庐规划图
元垄·泓庐售楼处电话:400-8787-098接通后输入4444【售楼处位置】
元垄·泓庐售楼处电话:400-8787-098接通后输入4444【营销中心】
项目多数为多联排(三联排及以上)。
结合规划图和小编拿到的一手资料可以知道,排屋产品采用了中式的“坡屋顶”和“挑檐”。
这样的设计不仅让建筑风格与周边环境更加协调统一,也可以为三楼阳台和一楼提供雨天活动的半室外空间。
元垄·泓庐效果图
另外,排屋产品南面采用了大面积的玻璃,在增强建筑通透感和时尚感的同时,也能更大限度的引光入室,让室内空间更显明亮开阔。
元垄·泓庐效果图
元垄·泓庐售楼处电话:400-8787-098接通后输入4444【售楼处位置】
元垄·泓庐售楼处电话:400-8787-098接通后输入4444【营销中心】
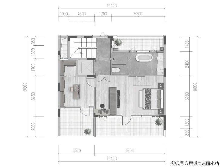
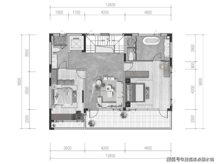
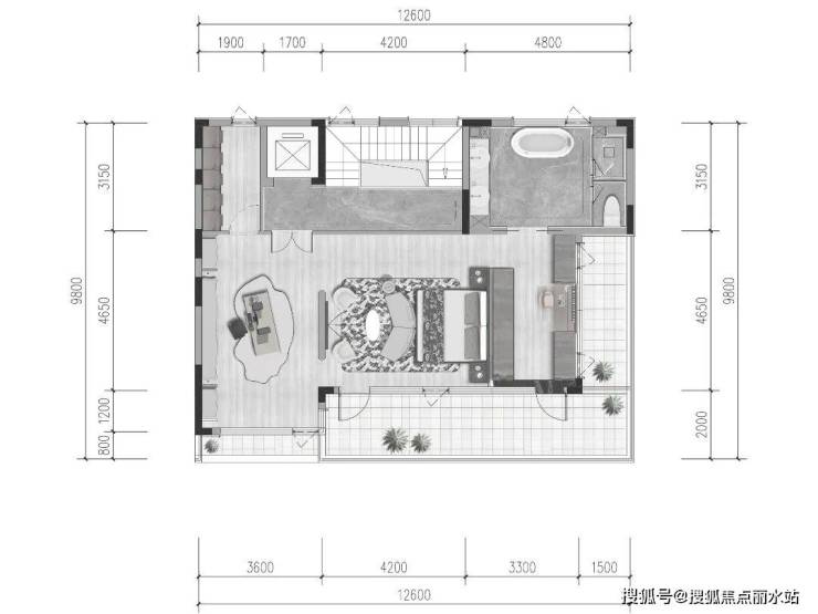
据悉,元垄·泓庐的洋房建面约128-138㎡,排屋建面约230-600㎡(面宽约9-16.4米)。
其中,建面约255㎡和323㎡的排屋户型基本定稿。
建面约255㎡户型,南北带花园,可满足种花、种菜、户外宴请等需求。
三层还有南北3阳台,既可以满足日常洗衣晾晒的需求,也可以满足男女主人赏花赏月的浪漫需求。
元垄·泓庐售楼处电话:400-8787-098接通后输入4444【售楼处位置】
元垄·泓庐售楼处电话:400-8787-098接通后输入4444【营销中心】
建面约323㎡的排屋户型,则是三面带花园,让业主更“用的出”。
二层带有一大一小2个阳台,让二层次卧也能拥有更好的居住体验(如雨天开窗通风等)。
三层则带有“L型”的阳台,在景观视野方面更有优势。
目前,元垄·泓庐云寰会客厅已经开放(地址:越城平江路2号3#),预计今年年内首开。
那么,你觉得元垄·泓庐的首发价格会是多少?
元垄·泓庐售楼处电话:400-8787-098接通后输入4444【售楼处位置】
元垄·泓庐售楼处电话:400-8787-098接通后输入4444【营销中心】
楼盘详情400-8787-098接通后输入4444(房价,价格,地址,户型图,交通,周边配套,备案价,楼盘详情,售楼处电话,售楼处地址,最新房源,最新价格,最新动态,最新进展等详情)
声明:本文由入驻焦点开放平台的作者撰写,除焦点官方账号外,观点仅代表作者本人,不代表焦点立场。
