郭巷星河13号地块项目【首发】售楼处电话// 星河Z13地块欢迎您// 苏州星鸿(星河&天鸿伟业)开发商权威发布
扫描到手机,新闻随时看
扫一扫,用手机看文章
更加方便分享给朋友
🌈苏州郭巷星河13号地块项目售楼处电话☎️400-8787-098转接4444(专人接听)
🌈苏州郭巷星河13号地块项目营销中心电话:☎️400-8787-098转4444【营销中心】
🌈温馨提示:拨打400电话,听到嘀声后,输入分机号4444即可!
好消息!近园区又一别墅盘要上新了!
近日,吴中郭巷星河Z13地块爆出新动作,案名马上发布,最快预计1月底首开!
🌈苏州郭巷星河13号地块项目售楼处电话☎️400-8787-098转接4444(专人接听)
🌈苏州郭巷星河13号地块项目营销中心电话:☎️400-8787-098转4444【营销中心】
项目位于独墅湖西核心地段,容积率仅1.25,拟建4F叠加+四代宅洋房。
网传洋房约143㎡,叠加约160-180㎡,面积段非常友好。
产品也相当惊艳,据悉将采用首层架空+地上车库创新设计,地缘及近园区改善客户可以提前关注起来!
至于价格,附近龙湖九里璟园洋房3.2w,可以参考。
星河Z13号地块,即苏地2025-WG-Z13号地块。
今年7月土拍中,苏州星鸿(星河&天鸿伟业)以底价6.72亿拿下,成交楼面价14400元/㎡。

🌈苏州郭巷星河13号地块项目售楼处电话☎️400-8787-098转接4444(专人接听)
🌈苏州郭巷星河13号地块项目营销中心电话:☎️400-8787-098转4444【营销中心】
容积率仅1.25,是郭巷难得低密地块;根据规划,拟建24幢住宅,包括22栋4F叠加+2栋11F洋房!其中洋房为四代宅。

🌈苏州郭巷星河13号地块项目售楼处电话☎️400-8787-098转接4444(专人接听)
🌈苏州郭巷星河13号地块项目营销中心电话:☎️400-8787-098转4444【营销中心】
根据总平面,分别在东、西、北三侧设置有出入口;北侧林家潭路是主出入口。
更加惊喜的是,项目所有楼栋首层全架空设计,其中叠加首层“地上架空车库”,洋房首层架空打造多功能主题泛会所,强化社区功能。
并且打造多连廊贯穿,真正实现无风雨归家!


🌈苏州郭巷星河13号地块项目售楼处电话☎️400-8787-098转接4444(专人接听)
🌈苏州郭巷星河13号地块项目营销中心电话:☎️400-8787-098转4444【营销中心】
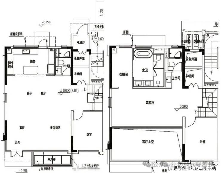
户型同步公示!据爆料,叠加建面约160-180㎡,洋房建面约141㎡,都是改善大户型。
洋房建面约143㎡4房2卫,4开间朝南,整体南向开间约14.5米,客厅开间约5m,主卧套房,北向生活阳台,分奇、偶数层,区别主要在于空中庭院。

7#为4F叠加,下叠建面约180㎡左右,南北双入户,6.7m超大方厅,全卧室朝南设计;二层挑空赠送面积超大。
🌈苏州郭巷星河13号地块项目售楼处电话☎️400-8787-098转接4444(专人接听)
🌈苏州郭巷星河13号地块项目营销中心电话:☎️400-8787-098转4444【营销中心】
根据拍地要求:洋房装修交付,装标不低于2000元/㎡;
星河Z13号地块位于吴中区郭巷街道林家潭路南侧、通达路东侧,就在龙湖·九里璟园南侧。
地铁位置不错,出门7号线,正宗地铁盘;附近有郭巷实小、苏大附属尹山湖中学等;商业依赖尹山湖的歌林公园等,地铁6站可达苏州中心。
🌈苏州郭巷星河13号地块项目售楼处电话☎️400-8787-098转接4444(专人接听)
🌈苏州郭巷星河13号地块项目营销中心电话:☎️400-8787-098转4444【营销中心】
目前来看周边仅龙湖尾盘,居住氛围一般;不过根据官方规划,该地块南侧还有一宗拟出让宅地,未来居住氛围会更加浓厚。
再往南侧是即将重磅升级的郭巷老街片区,打造集文化、休闲、运动、商业等多元业态于一体的文旅街区,势必将带动周边区域的高质量发展。
作为区域“首个”低密别墅盘,吴中第二个底层全架空,这块地看点还是非常多的!
案名马上揭晓,预计最快1月底首开,想在近园区改善的朋友可以关注↓↓↓
🌈苏州郭巷星河13号地块项目售楼处电话☎️400-8787-098转接4444(专人接听)
🌈苏州郭巷星河13号地块项目营销中心电话:☎️400-8787-098转4444【营销中心】
🌈温馨提示:拨打400电话,听到嘀声后,输入分机号4444即可!
声明:本文由入驻焦点开放平台的作者撰写,除焦点官方账号外,观点仅代表作者本人,不代表焦点立场。
