武汉千禧城售楼处电话→武汉千禧城售楼中心首页网站→武汉千禧城楼盘百科详情→24小时电话

丽水楼市 2025-10-14 04:30:00
用手机看
扫描到手机,新闻随时看

扫一扫,用手机看文章
更加方便分享给朋友

🏡武汉千禧城售楼处电话:400-8787-098输入分机号4444【营销中心】 🏡武汉千禧城售楼处位置:400-8787-098输入分机号4444【官方电话】 🏡房价特价信息丨优惠政策丨详细解答丨在售房源丨在售户型图丨项目介绍丨周边配套丨VR看房丨楼盘图丨沙盘图丨位置

🏡武汉千禧城售楼处电话:400-8787-098输入分机号4444【营销中心】

🏡武汉千禧城售楼处位置:400-8787-098输入分机号4444【官方电话】

🏡房价特价信息丨优惠政策丨详细解答丨在售房源丨在售户型图丨项目介绍丨周边配套丨VR看房丨楼盘图丨沙盘图丨位置图丨配套图丨售楼处地址丨足不出户丨销售1V1讲解 如有问题欢迎来电咨询,可预约销售人员,专业一对一热情服务,让您用专业眼光去买房

千禧城占地面积约18.9万方,总建面约94万方,容积率4.5,总户数6800户。共包含6个地块,目前K2、K3、K6已交房,K1未推出、K4规划未公示,在推的为K5地块。

K5地块占地面积约1.5万方,总建面约9.35万方,容积率4.98,共528户,机动车停车位682个。K5地块22号楼已交房,21号楼预计2024年交房。

🏡武汉千禧城售楼处电话:400-8787-098输入分机号4444【营销中心】

🏡武汉千禧城售楼处位置:400-8787-098输入分机号4444【官方电话】

区位配套

千禧城位于古田三路与解放大道交汇处以北,在楼市划分中属于古田板块,行政划分属于硚口区。项目距离二环线约2公里,距离三环线约3.5公里,环线位置属于2.5环。千禧城售楼处电话:400-6520-118转接9999。

🏡武汉千禧城售楼处电话:400-8787-098输入分机号4444【营销中心】

🏡武汉千禧城售楼处位置:400-8787-098输入分机号4444【官方电话】

古田板块靠近解放大道沿线发展较早,配套比较齐全。

商业上,项目规划了约30万方自持商业,包含商业街、影院、书店、艺术中心等目前艺术中心、千禧城商业街部分已经投入运营中。

小区距离解放大道中百仓储约700米,凯德广场西城约1.2公里。另外1号线哈可以直达宜家商圈、武广商圈等,项目的商业配套还是相当丰富的。区域内还规划有龙湖天街,就在古田二路与长丰大道交汇处,距离项目也不远。

🏡武汉千禧城售楼处电话:400-8787-098输入分机号4444【营销中心】

🏡武汉千禧城售楼处位置:400-8787-098输入分机号4444【官方电话】

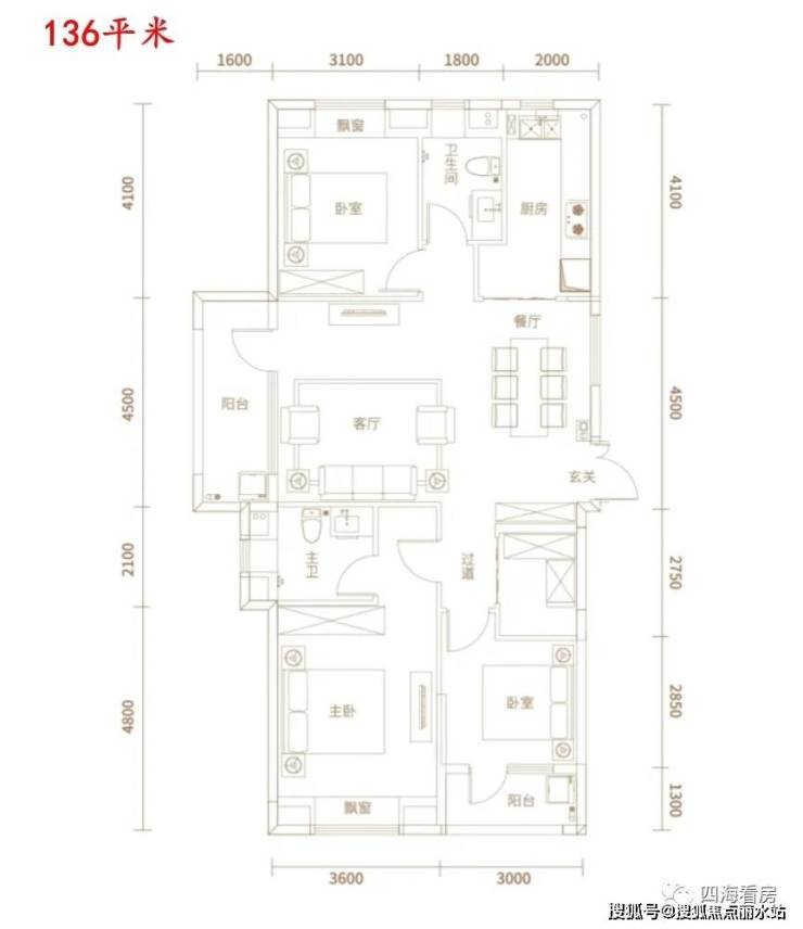
户型图展示:

千禧城:主推建面约118-136-141平米精装修房源,价格区间在16000元/平。

🏡武汉千禧城售楼处电话:400-8787-098输入分机号4444【营销中心】

🏡武汉千禧城售楼处位置:400-8787-098输入分机号4444【官方电话】

🏡房价特价信息丨优惠政策丨详细解答丨在售房源丨在售户型图丨项目介绍丨周边配套丨VR看房丨楼盘图丨沙盘图丨位置图丨配套图丨售楼处地址丨足不出户丨销售1V1讲解 如有问题欢迎来电咨询,可预约销售人员,专业一对一热情服务,让您用专业眼光去买房

声明:本文由入驻焦点开放平台的作者撰写,除焦点官方账号外,观点仅代表作者本人,不代表焦点立场。