2025最新网站武汉【武汉城建·电建·幸福时代大家】售楼处欢迎您|楼盘详情-样板间/价格/户型-停车位-容积率-小区环境-售楼处地址-定位 -【预约电话】

丽水楼市 2025-09-29 01:57:02
用手机看
扫描到手机,新闻随时看

扫一扫,用手机看文章
更加方便分享给朋友

武汉(城建·电建·幸福时代大家) 售楼中心24小时电话:400-8787-098转接5555。 致电售楼处了解更多信息,安全通话隐藏真实号码,请放心使用 网上售楼中心——欢迎来电咨询〢——匠心钜制恭迎品鉴!

武汉(城建·电建·幸福时代大家)

售楼中心24小时电话:400-8787-098转接5555。

致电售楼处了解更多信息,安全通话隐藏真实号码,请放心使用

网上售楼中心——欢迎来电咨询〢——匠心钜制恭迎品鉴!

少量88平户型特价房源,优惠提前锁定

楼盘聚焦:

1、小户型新品上线,总价低至125万起

幸福时代大家K1地块27号楼已取证,目前可直接认购,主推建面约88、119平毛坯房源。

其中的88平户型为项目K1地块面世以来的最小户型(前期K1地块最小112平)。

起步户型面积的下调,直接意味着项目入手门槛的下降,加上楼市整体价格的回调,幸福时代大家的总价门槛也由K1地块初入市时的190万+下调到了现在的约125万起(3号房中上楼层单价约1.48万,5-6楼总价约128万左右)。

现在这个门槛对于刚需群体也十分友好了。

并且,就整个后湖来看,区域内的小户型产品本身也相对稀少。

拥有90平以内小面积产品的,一个是幸福时代大家本次推出的88平户型,另外就是星河2049星里城有少量81平的户型,美联城观有少量的77、80平小户型,其余包括天曜、云泊江岸、滨江云城、留香园等在内的项目,起步户型基本都在100平以上。

三个小户型项目中,美联城观的单价相对高一些,星河2049星里城的单价最低,幸福时代大家居中,幸福时代大家的位置以及配套又比星河2049更齐全一点,结合这几点来看,在后湖如果想选个小户型产品,幸福时代大家88平这个新品户型可以优先考虑。

2、新品户型有所升级,位于19层小高层楼栋内

幸福时代大家K1地块共包含12栋住宅,20、25号楼为17层,27号楼为19层,23号楼为26层,17号楼为27层,26号楼为32层,16、18、19、21、22号楼为33层,15号楼为34层。

前期已推出了22、26号楼,本次加推的是27号楼。

售楼处电话:400-8787-098转接5555。

27号楼总高只有19层,另外20、25号楼总高为17层,这三栋是K1地块内总高最矮的三栋楼,便于区分,我们暂且叫做小高层,其余楼栋都是总高26-34层的高层超高层。

相对来说,总高更低,27号楼的居住舒适度也更高。

另外,27号楼位于整个地块的最南面,没有太多遮挡,南面的马路属于小区地块分割路,车流量没有那么大,整体环境还算比较安静;预计2026年交付。

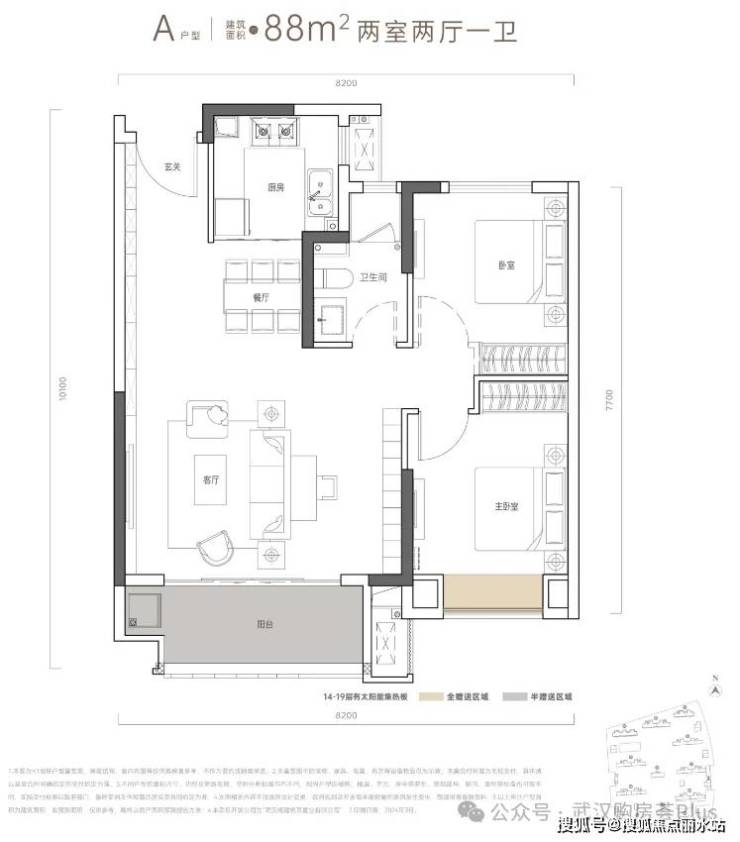
27号楼主打88、119平两个户型,其中88平是中间户,119平是边户,只有一个单元,两梯四户布局,公摊约24%左右,优化后得房率约82%。

27号楼建面约88平户型

售楼处电话:400-8787-098转接5555。

动静分区设计,最大变化是阳台进深有所加大,变相增加了拓展面积。

整个南向面宽约8.2米,这个尺度还不错,客厅部分可以稍加改造,变身为2+1房,不过对比现在准四代住宅88平做三房的户型,功能性上还是略微逊色一筹。

27号楼建面约119平户型

售楼处电话:400-8787-098转接5555。

119平的边户,整个南向面宽约10米,这个尺度还比较亮眼,并且对比88平户型,119平的户型飘窗更多,可拓展空间也更大一点。

但119平户型的价格就要高一截了,均价在16500左右,甚至比项目在售的130/140平左右户型还要高,一套中间楼层119平户型的总价基本可以换一套130平左右户型,相对来说性价比要低一些。

所以,同总价选119平还是130平?那就看个人喜好了。

更多项目户型,点击下图查看

售楼处电话:400-8787-098转接5555。

3、容积率在区域内相对低一点,公区有很大提升

幸福时代大家K1地块容积率约3.36,虽然绝对值不算低,不过在后湖板块内来说,算相对较低的。

另外,作为项目的收官地块,也是最新推出的地块,K1地块对比前期的K2K3K4地块在品质上也有明显升级。

K1地块酒店式环岛落客区,规划有超五万方园林,以“两轴一环六庭院”布局,打造了建面约6800平、5000平南北两大中央花园。

售楼处电话:400-8787-098转接5555。

项目将贯通南北中央花园的泛会所规划为半开放花园式泛会所,并根据不同年龄段的需求,规划了儿童天地、长者空间、健身空间、社交空间四大主题。

售楼处电话:400-8787-098转接5555。

其中部分也做了实景呈现,从现场来看,对比前期品质确实有明显上升。

售楼处电话:400-8787-098转接5555。

售楼处电话:400-8787-098转接5555。

售楼处电话:400-8787-098转接5555。

公区/架空层实景

4、百万方大盘,自带学校

幸福时代整个盘的体量约107万方,是非常大的。

2020年首开,2022年首次交付,截至目前,K2、K3、K4地块均已推出并交付,并且也基本已清盘了,业主超过7200+户

点击下图,查看项目配套航拍

售楼处电话:400-8787-098转接5555。

自身的配套也已经十分完善了。

不仅有自带商业,还自带有2所幼儿园以及一所小学。

U13教育用地(规划建设中)签署协议引入“育才系”小学并已奠基

售楼处电话:400-8787-098转接5555。

目前官网已公示了学校报规的效果图

售楼处电话:400-8787-098转接5555。

售楼处电话:400-8787-098转接5555。

不过,小学具体的开学时间目前尚不太明确(也有传言说2026年开学)

售楼处电话:400-8787-098转接5555。

整体来说,幸福时代大家在后湖算是一个比较不错的选择。

自身的体量比较大,隔壁就是龙湖天街,一墙之隔,绝大多数配套都是共享,一个均价2.5万左右,一个只要1.5-1.6万左右,价格差足够大,这对于项目后期的二手交易也是有好处的。

而且,项目目前的88平小户型产品比较有优势,单价以及总价在后湖板块都算比较低的,利好年轻刚需群体(户型设计较项目前期有所改进,但不能与现在的四代、准四代产品相比,得房率上也逊色一截)。

并且还有自带的学校、商业,自身配套也不错,K1地块较前期品质也有所上升,没有明显缺点,综合性价比还不错。

售楼处电话:400-8787-098转接5555。

楼盘全方位测评

一、楼盘基础数据!

幸福时代由武汉城建集团·统建公司联合武汉百步亭安居公司于2013年摘牌竞得,项目规划总用地面积24.04万方,总建筑面积107.5万方,计容面积80.6万方。

幸福时代一、二、三、四期建面近50万方,已经交房。

幸福时代大家是项目的五期产品,住宅部分由K1、K2、K3、K4四个地块组成,总建筑面积约50万方,由20多栋高层、一所小学、两所品牌幼儿园、一所卫生服务中心及商业街组成。

售楼处电话:400-8787-098转接5555。

售楼处电话:400-8787-098转接5555。

幸福时代项目总体量约有100万方,其中有约50万的一期到四期已经交房,幸福时代·大家是项目的五期产品,总建筑面积约50万方,由K1、K2、K3、K4四个地块组成。

△幸福时代大家鸟瞰图

其中,K2和K4地块已经全部售罄,2023年上半年K2地块(体量约16万方)9、10、11、12、13#交付。

售楼处电话:400-8787-098转接5555。

售楼处电话:400-8787-098转接5555。

售楼处电话:400-8787-098转接5555。

售楼处电话:400-8787-098转接5555。

售楼处电话:400-8787-098转接5555。

售楼处电话:400-8787-098转接5555。

具体交付情况,可以查看小妹前期交付探访:《雨中实探!后湖神盘交付!少见弧形外立面!中式园林挺惊艳!》

K3地块所有楼栋已经推出,2023年11月24日,K3项目顺利竣备。

售楼处电话:400-8787-098转接5555。

售楼处电话:400-8787-098转接5555。

售楼处电话:400-8787-098转接5555。

售楼处电话:400-8787-098转接5555。

售楼处电话:400-8787-098转接5555。

售楼处电话:400-8787-098转接5555。

K1地块用地面积约6.89万方,容积率约3.36,总建面约30.77万方,计容建面约23.16万方。

其中住宅建面约22.87万方,共1795户(包含3户为保障性租赁住房),商品住宅户均面积约124平,地下机动停车位2307个地下车位,车位配比约1:1.28。

售楼处电话:400-8787-098转接5555。

售楼处电话:400-8787-098转接5555。

售楼处电话:400-8787-098转接5555。

售楼处电话:400-8787-098转接5555。

K1地块效果图

K1地块共12栋楼,有三栋为17-19层的小高层,其他均为高层。

15#34F,16、18、19、21、22#33F;

17#27F,20、25#17F,23#26F,26#32F,27#19F。

目前楼盘表只公布了5栋住宅楼信息。

售楼处电话:400-8787-098转接5555。

售楼处电话:400-8787-098转接5555。

售楼处电话:400-8787-098转接5555。

二、交通区位配套!

区位:

幸福时代大家项目位于幸福街和百步亭路的交汇处,从地理位置上来看,处于三环内的后湖板块。

售楼处电话:400-8787-098转接5555。

这个区域地处三环内,且就百步亭这个项目来说,本身就靠近二环线;上了二环后无论是去汉阳、青山还是武昌都很快,下桥就到了;周边配套比较成熟,重点的幼儿园、小学、初中、高中都有,像菜场、大型的超市也不少,满足日常基本需求也没问题;再者本身离武汉天地商圈也不远,沿解放大道直走就是。

区位点评:后湖这个区域,特别是百步亭这边,经过这么多年的开发发展,各项配套已经越来越成熟,现在已经形成了一个居住氛围比较好的大片区;从性价比的角度来说,这片区域算是想在三环内买房的刚需的一个可选项;该有的配套都有,去武昌汉口中心通达性都合适,相较下来有性价比优势在。

项目交通情况:

售楼处电话:400-8787-098转接5555。

自驾:幸福时代·大家东侧为主干道解放大道,沿着解放大道向西南再行驶约2.5公里左右可以驶入二环线;项目从幸福街出发转建设大道延长线转和谐大道转金桥大道就可以上三环线了;

售楼处电话:400-8787-098转接5555。

项目离二环三环都不远,无论是对汉口还是武昌徐东这边有通勤需求的,都可以覆盖到;

地铁:项目周边有地铁1号线新荣站、阳逻线新荣客运站(地铁新荣客运站与新荣站站内换乘建设工作已启动前期招标,未来可从新荣客运站进入地铁站后步行前往地铁1号线)、阳逻线百步亭花园路站。

售楼处电话:400-8787-098转接5555。

从新荣客运站向东两站至后湖大道站可换乘地铁3号线。

售楼处电话:400-8787-098转接5555。

项目距离21号线新荣村客运站和百步亭花园站距离差不多,均约800米左右,步行可达。

售楼处电话:400-8787-098转接5555。

公交:项目门口有后湖大道十大家村公交站,有多条公交线路,可坐公交车直接换乘地铁1号线和3号线,非常方便。

售楼处电话:400-8787-098转接5555。

生活配套:

项目的正对面就是一个华林广场,算是一个小型商业体,里面有个生活超市,覆盖的客群主要是附近几个小区的居民和汉铁高中的学生;

另外,项目出门过一个十字马路,有一个摩尔城,也是一个地缘性商业体,里面有中百仓储和电影城;小妹去这两个商业体里面转了一下,发现里面的快餐餐饮商家特别多,之后如果住这附近,吃饭肯定是不愁的;

另外在距离项目步行一公里的地方有一个季佳荟和幸福时代商业街,除了有肯德基麦当劳,还有一个盒马鲜生,从这覆盖距离来看,幸福时代大家应该也是妥妥的盒区房了;

上述几个都是步行可达的商业体,如果选择自驾,还可以去附近的汉口城市广场或者稍微远一点的武汉天地壹方这些,开过去差不多都在十几分钟;

售楼处电话:400-8787-098转接5555。

售楼处电话:400-8787-098转接5555。

项目东侧,也就是原来的新荣客运站位置,将落地武汉第7座龙湖天街。龙湖新荣天街,建面约15万方,规划地上五层,地下一层,预计2024年开业。

售楼处电话:400-8787-098转接5555。

龙湖新荣天街效果图

教育:项目U13教育用地已签署协议引入“育才系”小学,距离项目最近的小学育才可立小学,直线距离约700米;项目自建两所优质幼儿园。

售楼处电话:400-8787-098转接5555。

项目西侧紧邻省重点高中汉铁高中,周边育才可立小学、育才实验小学、育才家园小学、育才怡康小学、汉铁初中、第二初级中学岱山校区。

售楼处电话:400-8787-098转接5555。

另外,据最新消息,武汉市第二初级中学岱山校区规划迁办校区已基本完成新规划选址的调整工作,新选址规划位于和谐大道和安居路交汇处,后期,从幸福时代大家前往该学校会更近一点。

医疗:距离项目最近大型三甲公立医院是中部战区总医院汉口医院,距离约6.5公里,当然项目也可以到解放大道沿线的协和医院和同济医院就医,项目K2地块北侧有一个约7000㎡卫生服务中心。

武汉(城建·电建·幸福时代大家)

售楼中心24小时电话:400-8787-098转接5555。

致电售楼处了解更多信息,安全通话隐藏真实号码,请放心使用

网上售楼中心——欢迎来电咨询〢——匠心钜制恭迎品鉴!

声明:本文由入驻焦点开放平台的作者撰写,除焦点官方账号外,观点仅代表作者本人,不代表焦点立场。