南京江海和鸣售楼处电话→南京江海和鸣售楼中心首页网站→南京江海和鸣楼盘百科详情→24小时电话
扫描到手机,新闻随时看
扫一扫,用手机看文章
更加方便分享给朋友
南京江海和鸣售楼处电话:400-8787-098转分机号5678【售楼处位置】
南京江海和鸣售楼处电话:400-8787-098转分机号5678【营销中心】
南京江海和鸣楼盘详情4008787098-转分机号5678(房价,价格,地址,户型图,交通,周边配套,备案价,楼盘详情,售楼处电话,售楼处地址,最新房源,最新价格,最新动态,最新进展等详情)
江核有七家四代宅上市,今天给大家分享江海和鸣,我觉得这个小区还是非常不错的~
江北核心区虽然是一个内循环的板块,但是目前的配套不足以支撑这么多人,所以很多人还是住在江北在江南上班;
地铁是一个城市提供人口最畅通的流通方式,是其他交通工具不能比的,在江南上班的朋友,在江北置业,一定会首选过江地铁沿线的房子,离得越近,优势越大,除非地铁沿线的房子没有符合自己要求的房子,才会退而求其次考虑其他小区;
江核目前有且仅有一条过江地铁,即10号线,所以我们看到10号地铁沿线的住宅,流通性好,每个月的成交排行榜打开一看就一清二楚;
目前江北核心区在建的第二条过江地铁,即4号地铁二期,大概2026-2027年开通,过江直接到鼓楼新街口,同理4号地铁沿线的房子,流通性好;售楼处电话400-8787-098接通后输入5678【营销中心】
4号地铁、10号地铁等过江地铁,在通过11号地铁窜连起来,过江地铁沿线的住宅,不仅辐射江南的客群,又能辐射整个江北的客群,流通性好,价值高;
江海和鸣坐落在四号线沿线,距离过江的第一站江北市民中心站800米,如下图所示:

定山大街为江北CBD的中央大道主轴线,城市配套资源都分配在其两侧,而四号地铁二期就建在定山大街上,四号地铁二期穿过的是金融中心和地下城的中心位置,江海和鸣位于定山大街以南,紧挨着金融中心,可以说是江北宇宙中心的C位;
地下城除了4号线,还有13号线、15号线、以及在建的11号线,四条地铁交汇,地下城有全国最大的集中性商业,地上是产业金融办公区,这个位置就是江北的交通换乘中心,人口交汇中心;

四号线到南京北站,南京北站+江北CBD+新街口CBD,不仅江南江北双主城无缝链接,而且通过高铁城市与城市之间的沟通效率大幅提升,就问你这样的位置怎么样?

在看看周围的配套,北边是图书馆、美术馆、全民健身中心、飞龙丽景公园,南边靠近长江有市民中心、国际会议中心、扬子江生态公园等,晚上可以选择江边散步,也可以选择在飞龙丽景公园运动,里面有两个大小运动场,还可以大小孩去图书馆美术馆,周末在长江边扎个帐篷,这是你们想要的生活吗?
比如青奥研创园的乐创汇广场,每个周末或者每天晚上人都非常多,CBD这边会更大,是一个公园,里面还建了两个运动场;
长江边还可以散步,骑行等~
江海和鸣紧挨着滨江路,到长江仅仅300米,一线江景房,在配上四代宅的L型露台,观江效果无敌哈
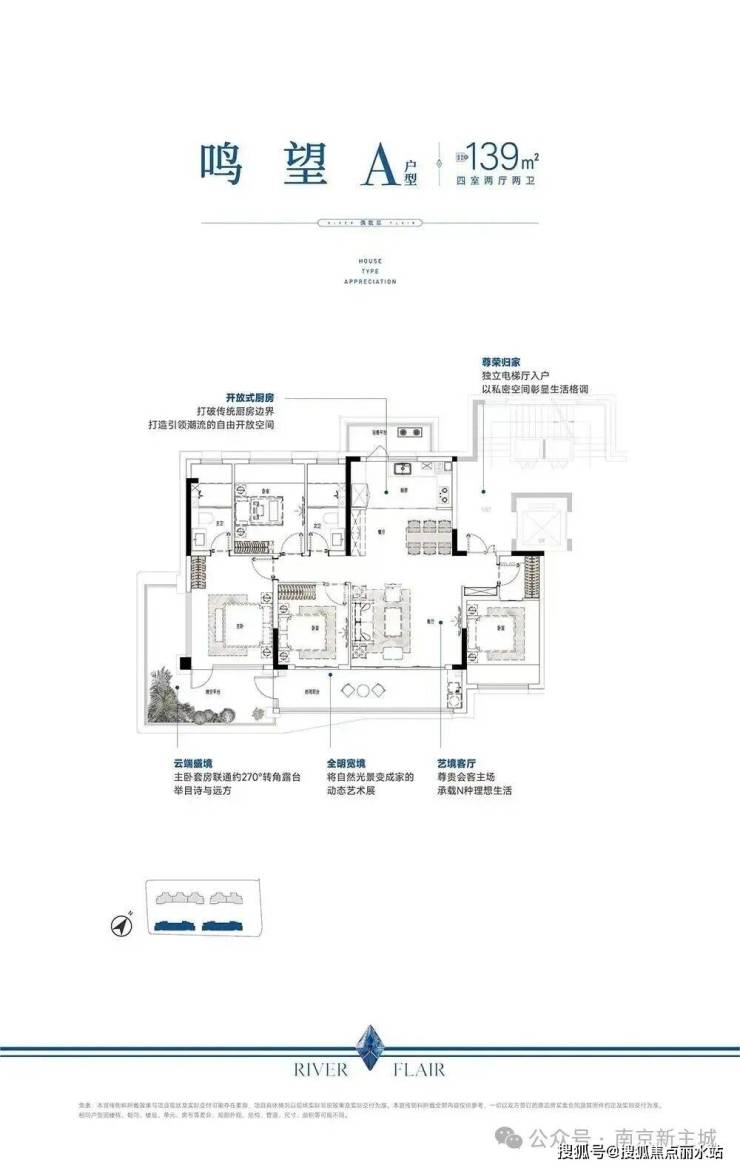
小区规划4栋住宅,南边两栋7层洋房,北边两栋17层小高层(无连廊),洋房全是139平四室两卫,小高层全是120平三室两卫,如下图所示:
户型图如下所示:
南京江海和鸣售楼处电话:400-8787-098转分机号5678【售楼处位置】
南京江海和鸣售楼处电话:400-8787-098转分机号5678【营销中心】
南京江海和鸣楼盘详情4008787098-转分机号5678(房价,价格,地址,户型图,交通,周边配套,备案价,楼盘详情,售楼处电话,售楼处地址,最新房源,最新价格,最新动态,最新进展等详情)
声明:本文由入驻焦点开放平台的作者撰写,除焦点官方账号外,观点仅代表作者本人,不代表焦点立场。
