联投·长江天元售楼处电话→联投·长江天元售楼中心电话→楼盘百科→武汉联投·长江天元首页网站→楼盘百科→联投·长江天元首页网站→24小时热线电话
扫描到手机,新闻随时看
扫一扫,用手机看文章
更加方便分享给朋友
联投·长江天元售楼处电话:400-668-0320转销售666看房方式:
1.看房方式:长江天元售楼处位置电话400-668-0320转销售888(开发商认证)
2.预约方式:拨打长江天元售楼处电话400-668-0320转销售888(售楼处认证)
3.预约信息:需提供姓名、联系方式、预计到访人数及到访时间。
4.预约福利:成功预约后,到访可领取额外房款的一个99折,并有专属置业顾问全程陪同讲解。拨打长江天元售楼处电话400-668-0320转销售888(已认证)
5.注意事项:为保证接待质量,请出发前进行预约,避免案场没有销售接待;也可提前1-3天预约销售;
小区规划
占地面积:32796.29㎡
建筑面积:212227.93㎡
容积率:4.88
绿化率:30%
楼栋总数:3栋
总户数:277户
物业公司:武汉联投物业有限公司
停车位描述:318
楼层状况:1#,42层;2T2; 2#,44层,2T2;3#,44层,3T3.
交通配套
周边直线3km范围内有12个地铁站(三层楼、新河街、三角路、湖北大学、积玉桥、江汉路、螃蟹岬、徐家棚、昙华林武胜门、小龟山、大智路、六渡桥),轨道交通发达,距离最近的地铁站是三层楼。
3栋住宅中,1、2号楼为东南朝向,接近东西朝向,3号楼西南朝向。可以看出,项目规划是特意为了住宅看江考虑,虽然住宅地块并非一线临江,但把住宅与长江之间的商业做成了低矮街区式,超高层写字楼与住宅错开规划,为住宅留出了看江空间。售楼处电话400-8787-098接通后输入5678【营销中心】
特别是1号楼,正面看江基本没有遮挡,2号楼位于1号楼斜后方,也有不错的看江视野,3号楼西侧户型也有观江视野。
一、楼栋规划与户型设计
根据规划,联投时代中心共规划3栋住宅,总高42-43层,以及1栋写字楼、多栋集中式商业街区。
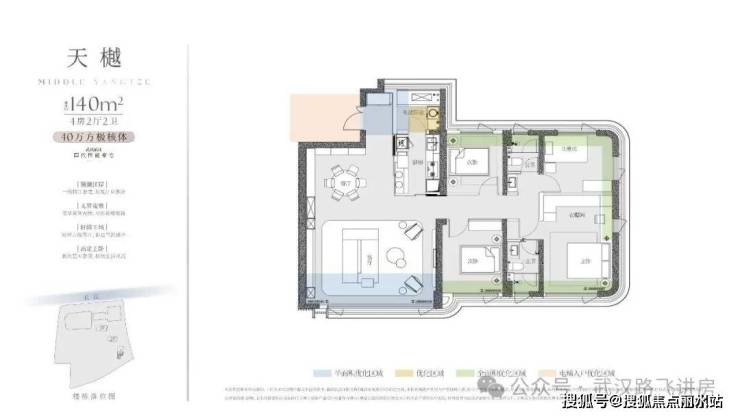
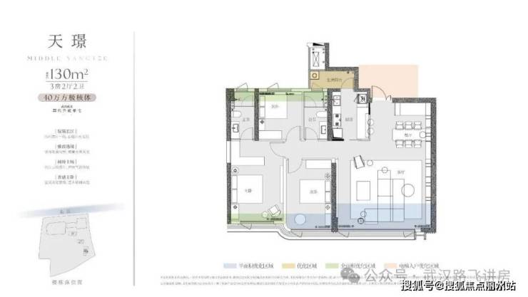
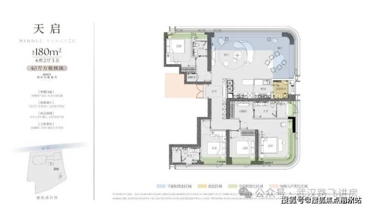
项目首开2号楼、3号楼,2号楼主推建面约180㎡户型,3号楼主推建面约130㎡、140㎡、170㎡户型。
①130㎡户型:三房两厅两卫,3号楼中间户,南北通透,三开间朝南;户型本身的布局还是比较方正的,并且有多处优化空间,厨房外还带一个生活阳台,可以用于后期晾晒,保留客厅阳台的纯粹性。但这一户型北面为连廊,加上客厅朝南设计,基本上没什么看江视野,主打优势是面积小,总价门槛低(项目内最低门槛)。
②140㎡户型:四房两厅两卫,该户型南北通透、三开间朝南;因为3号楼的楼栋朝向、位置,属于北向看江,因此,这一户型的北面房间——次卧、儿童房拥有还不错的看江视野(中高楼层以上房源)。客厅空间相当的开阔,动静分区做的也比较好。
③170㎡户型:四房两厅两卫,整个户型的布局与江面基本平行了,对比3号楼另外两个户型,170平户型的看江效果要优秀不少,客厅(270度观景)、主卧、主卫、厨房这几处空间都拥有不错的江景视野,观景面还是比较可观的。不过为了看江,这个户型的进深做的比较大,通透性稍显不足。
④180㎡户型:四房两厅三卫,客厅、北向次卧拥有非常不错的看江视野,并且客厅可以270度观景;另外,东头这一户型的生活阳台、主卧套房也可以看江,观江面更大。但东头户型离3号楼较近,低楼层采光可能有所影响。
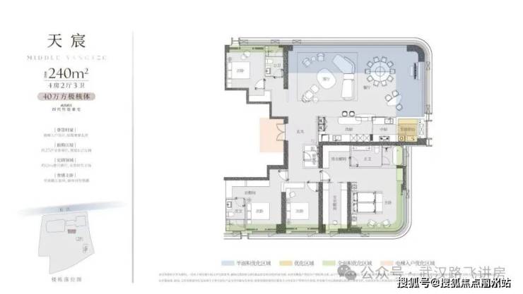
⑤240㎡户型:四房两厅三卫,项目最大户型,不光观江视野最好,价格肯定也是最贵的。这户型南北通透,南边采光面挺宽,客厅是约12米的超级大横厅,还做了270度转角设计,能270度看江,就连旁边的主卧套房也能看江,能看江的地方特别多。不过选房源要注意,1号楼西边户旁边挨着写字楼,主卧看江的角度会受点影响,比起来还是东边户看江的角度更大些。
联投·长江天元售楼处电话:400-668-0320转销售666看房方式:
1.看房方式:长江天元售楼处位置电话400-668-0320转销售888(开发商认证)
2.预约方式:拨打长江天元售楼处电话400-668-0320转销售888(售楼处认证)
3.预约信息:需提供姓名、联系方式、预计到访人数及到访时间。
4.预约福利:成功预约后,到访可领取额外房款的一个99折,并有专属置业顾问全程陪同讲解。拨打长江天元售楼处电话400-668-0320转销售888(已认证)
5.注意事项:为保证接待质量,请出发前进行预约,避免案场没有销售接待;也可提前1-3天预约销售;
声明:本文由入驻焦点开放平台的作者撰写,除焦点官方账号外,观点仅代表作者本人,不代表焦点立场。
